東京都荒川区荒川3丁目(西日暮里駅)の賃貸:物件詳細
				
					
					
				
														
	
		
			
				| 交通 所在地
 | 駅徒歩 | 賃料 管理費等
 | 敷金/保証金 礼金
 | 間取り 面積
 | 物件種目 築年月
 | 
		
		
			
								| JR山手線/西日暮里
												  東京都荒川区荒川3丁目 | 15分 | 22.2万円 10,000円 | 1ヶ月 / なし 1ヶ月 | 2LDK 59.68m² | 賃貸マンション 2001年1月(築24年10ヶ月)
																				 | 
						
				|  常時ゴミ出し可能、角部屋、南向き、振分、二人入居可、24時間セキュリティー、2面採光、24時間換気システム、IT重説対応物件、保証人不要
 | 
					
	
		
		
		
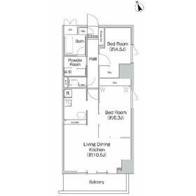
					| 間取図 間取り | 外観 外観 | 
		
		| 
				
										<
										
						>
							 その他の画像 | 
				
 
	
		
			
																			          | 交通 | JR山手線 西日暮里駅 徒歩15分 | 
|---|
| その他の交通 | 東京メトロ千代田線 町屋駅 徒歩8分 JR常磐線 三河島駅 徒歩5分 | 
|---|
			
				| 所在地 | 東京都荒川区荒川3丁目 | 
			
				| 物件種目 | 賃貸マンション | 
		
		
			
				| 賃料 | 22.2万円 | 管理費等 | 10,000円 | 
			
				| 敷金 / 保証金 | 1ヶ月 / なし | 礼金 | 1ヶ月 | 
			
				| 敷引 | - | 保証金償却 | - | 
			
				| その他一時金 | なし、鍵交換代等:36,300円~ | 保険等 | 要 | 
						
				| 維持費等 | - | クレジットカード決済 | 初期費用可 賃料可 | 
					
		
			
				| 間取り | 2LDK(LDK10.5、洋6.3、洋4.5) | 専有面積 | 59.68m² | 
			
				| 築年月 | 2001年1月(築24年10ヶ月) | 階建 / 階 | 地上12階地下1階建 / 6階 | 
			
				| 建物構造 | SRC | 総戸数 | - | 
			
				| 主要採光面 | 南 | 駐車場 | - | 
			
				| バイク置き場 | - | 駐輪場 | 有 | 
			
				| 建物名・部屋番号 | プライムアーバン町屋サウスコート | ペット | - | 
			
	| アピールポイント | ▼こちらの物件は定休日や営業時間外も含め、お時間が取りにくい方でも柔軟にご対応させて頂きます▼初期費用やお家賃などの交渉等は当然頑張らせて頂きますが、審査などの不安点も含めその他ご要望がございましたら何なりとお申し付け下さいませ▼他社様の物件も含め一都三県エリア関係なくまとめてご紹介等可▼事業用不動産(店舗・事務所etc..)や法人契約もご対応可能になります▼ご予約・ご相談等は、公式ライン(無料通話有)でのご連絡も可能でございます▼現地集合現地解散Ok◎▼ | 
			
				| リフォーム履歴 | ■その他:2025年10月 表層リフォーム済♪
 ※実施年月は最も古い履歴を表示
 | 
			
				| リノベーション履歴 | - | 
			
				| 備考 | 
																	賃貸保証等:加入要(初回総賃料の40% 月/800円)
											管理形態/管理員の勤務形態:-/-
 IT重説対応物件
 ▼ご予約・ご相談等は、公式ライン(無料通話有)でのご連絡も可能でございます▼お家賃・初期費用や審査などの交渉等は当然頑張らせて頂きますが、その他ご要望等ございましたら何なりとお申し付け下さいませ▼他社様の物件も含め一都三県エリア関係なくまとめてご紹介等も可能になります▼事業用不動産(店舗・事務所etc..)や法人契約もご対応可能になります▼現地集合現地解散Ok◎▼
 ▼初期費用クレジット決済・分割対応可能▼オンライン内見・契約等対応可▼
 | 
		
				
		
		| エネルギー消費性能 | - | 
	
		| 断熱性能 | - | 
	
		| 目安光熱費 | - | 
	
		
									
				| バス・トイレ | バス・トイレ別、浴室乾燥機、オートバス、追焚機能、シャワー付洗面化粧台、洗面所独立、洗面所、洗面台、シャワー、温水洗浄便座、トイレ | 
						
				| キッチン | カウンターキッチン、システムキッチン、2口コンロ、ガスコンロ可、グリル | 
						
				| セキュリティー | オートロック、防犯カメラ | 
						
				| 収納 | 全居室収納、収納スペース、クローゼット、シューズボックス | 
						
				| 設備・サービス | 室内洗濯機置場、洗濯機置場、都市ガス給湯、給湯、全居室フローリング、フローリング、都市ガス、エアコン、冷房、ダウンライト | 
						
				| TV・通信 | インターネット対応、光ファイバー、ケーブルTV、CS、BS端子 | 
						
				| その他 | 宅配BOX、バルコニー、駐輪場、エレベーター | 
					
		
			
				| 契約期間 | 2年 | 現況 | 空家 | 
			
				| 条件等 | - | 入居可能時期 | 相談 | 
						
				| 更新料 | 新賃料 1ヶ月 | 物件番号 | 1157309116 | 
			
				| 情報公開日 | 2025年10月28日 | 次回更新予定日 | 2025年11月11日 | 
						
				| ケータイ用バーコード | 
					
					
						
							スマートフォンでこの物件を見るスマートフォンからもこの物件をご覧になれます。 | 
					
	 
	 									※「-」と表示されている項目については、情報提供会社にご確認ください。
						
	
			
			
			
				
					
						
							| 周辺施設 | ウィラサクレックムエタイジム | 
						
							| 距離 | 185m | 写真を見る | 
					
				
			 
		 
					
			
				
					
						
							| 周辺施設 | maruetsu(マルエツ) 西日暮里店 | 
						
							| 距離 | 311m | 写真を見る | 
					
				
			 
		 
		 
		 									
												
					
					  ここから簡単にお問い合わせをすることができます。
(SSLでの暗号化での送信を希望されるお客さまは
													こちら
											  よりお問い合わせください)
					  
					
						
						
					
					お問い合わせを行う前に
「個人情報の取り扱いについて」を必ずお読みください。
「個人情報の取り扱いについて」に同意いただいた場合は「上記にご同意の上 確認画面へ進む」のボタンをクリックしてください。 
						個人情報の取り扱いについて
						皆さまが送付された個人情報はアットホーム(株)のサーバを経由し、お問い合わせ先の不動産会社にメールまたはFAXにて転送されるためアットホーム(株)にも保管されます。アットホーム(株)で保管された個人情報の取り扱いについては、【こちら】をご覧ください。
						また、本画面でご記入いただいた個人情報は、お問い合わせ先の不動産会社でも保管します。 お問い合わせ先の不動産会社が保管する個人情報の取り扱いについては、不動産会社に直接お問い合わせください。
					 
				 
				
														
				  
				  
					| 東京都知事免許(1)第107790号 | 
|---|
| 交通:東武伊勢崎線/浅草駅 徒歩1分東京都台東区花川戸1丁目11-4 NWビル5階TEL:03-5246-3402FAX:03-5246-3403所属団体:(公社)全日本不動産協会会員(公社)首都圏不動産公正取引協議会加盟
 取引態様:仲介 00272476
 | 
							  
								スマートフォンでこの不動産会社を見る
 | 
					  
					 
				 
							
						
												
			
					
- 提携サイト等より掲載されている物件情報につきましては、不動産会社詳細情報にリンクされていないものがあります。
- 物件に関するお問合せは、物件詳細ページの「情報提供会社」に表示されている不動産会社へ直接お願いいたします。
- 間取図は、現況を優先させていただきます。
- 映像は物件の一部を撮影したものです。物件の契約にあたっての最終判断はご自身の判断に基づいて行ってください。
- 仲介手数料について 
アットホームは物件情報の適正化に努めております。
内容に誤りがある場合にはこちらへご連絡ください。