東京都目黒区下目黒3丁目(不動前駅)の賃貸:物件詳細
交通 所在地 |
駅徒歩 |
賃料 管理費等 |
敷金/保証金 礼金 |
間取り 面積 |
物件種目 築年月 |
|
東急目黒線/不動前
東京都目黒区下目黒3丁目
|
9分
|
17.8万円
7,000円
|
なし / なし
1ヶ月
|
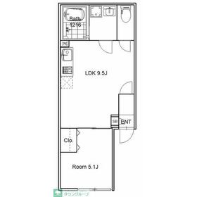
1LDK
34.25m²
|
賃貸マンション
2025年8月
|
角部屋、最上階、二人入居可、IT重説対応物件、保証人不要
|
|
間取図
|
外観
|
<
その他の画像
>
|
| 交通 | 東急目黒線 不動前駅 徒歩9分 |
|---|
| その他の交通 | 都営三田線 目黒駅 徒歩13分 東急目黒線 武蔵小山駅 徒歩17分 |
| 所在地 |
東京都目黒区下目黒3丁目
|
| 物件種目 |
賃貸マンション |
| 賃料 |
17.8万円 |
管理費等 |
7,000円 |
| 敷金 / 保証金 |
なし / なし |
礼金 |
1ヶ月 |
| 敷引 |
- |
保証金償却 |
- |
| その他一時金 |
入居者サポート:16,500円 |
保険等 |
要 2年 25,000円 |
| 維持費等 |
- |
| 間取り |
1LDK(洋室5.1帖) |
専有面積 |
34.25m² |
| 築年月 |
2025年8月
|
階建 / 階 |
地上3階地下1階建 / 3階 |
| 建物構造 |
RC |
総戸数 |
- |
| 主要採光面 |
南東 |
駐車場 |
無 |
| バイク置き場 |
無 |
駐輪場 |
無 |
| 建物名・部屋番号 |
ロータスコート目黒不動前 401 |
ペット |
-
|
| アピールポイント |
創業46周年・直営143店舗で展開・58,000戸超の自社管理物件を保有しております。2024年年間仲介件数全国4位の70376件・クレジットカード決済・初期費用分割払い対応可能!スマホでお部屋探し!ご自宅にいながらオンライン接客・オンライン面談。喜んで対応!
外国語対応・物件もより駅まで送迎可・初期費用のお見積りのみ見学のみ大歓迎です。お気軽にお問合せ下さい。
当店は仕事帰りに気軽に立ち寄れるよう夜7時まで営業しております。「お客様のために」がモットーです。ぜひお気軽にご来店下さい。案内時はスタッフが同行して周辺環境や駅からの距離を一緒に確認します。 |
| リフォーム履歴 |
- |
| リノベーション履歴 |
- |
| 備考 |
賃貸保証等:加入要(初回賃料総額の50%、月額保証料1.2%、引落手数料440円)
管理形態/管理員の勤務形態:-/-
IT重説対応物件
当社は創業46年東京23区を中心に首都圏エリアに特化した不動産賃貸仲介会社でございます。落ち着いた雰囲気の店内でゆったりとしたBGMと共にお部屋探しを楽しむことができます。どんな事でも構いません。『まずは貴方の理想をお聞かせ下さい。』当店スタッフは120%期待に応えます!是非お気軽にお問合せくださいませ。
|
| エネルギー消費性能 |
- |
| 断熱性能 |
- |
| 目安光熱費 |
- |
| バス・トイレ |
バス・トイレ別、浴室乾燥機、追焚機能、洗面所独立、洗面所、洗面台、シャワー、温水洗浄便座、トイレ |
| キッチン |
カウンターキッチン、システムキッチン、IHクッキングヒーター、2口コンロ |
| セキュリティー |
オートロック、モニター付インターホン |
| 収納 |
クローゼット、シューズボックス |
| 設備・サービス |
エアコン2台以上、室内洗濯機置場、都市ガス給湯、給湯、フローリング、室内物干し、都市ガス、エアコン |
| TV・通信 |
インターネット対応 |
| その他 |
宅配BOX |
| 契約期間 |
2年 |
現況 |
空家 |
| 条件等 |
- |
入居可能時期 |
即時 |
| 更新料 |
新賃料 1ヶ月 |
物件番号 |
1157347215 |
| 情報公開日 |
2025年10月27日 |
次回更新予定日 |
2025年11月10日 |
| ケータイ用バーコード |
- スマートフォンでこの物件を見る
- スマートフォンからもこの物件をご覧になれます。
|
※「-」と表示されている項目については、情報提供会社にご確認ください。
| 周辺施設 |
ファミリーマート伊豆屋下目黒三丁目店 |
| 距離 |
170m |
写真を見る |
| 周辺施設 |
スーパーオオゼキ |
| 距離 |
440m |
写真を見る |
| 周辺施設 |
ケイポートドラッグマート |
| 距離 |
580m |
写真を見る |
| 周辺施設 |
ドトールコーヒーショップ不動前店 |
| 距離 |
560m |
写真を見る |
| 周辺施設 |
無印良品アトレ目黒店 |
| 距離 |
980m |
写真を見る |
ここから簡単にお問い合わせをすることができます。
(SSLでの暗号化での送信を希望されるお客さまは
こちら
よりお問い合わせください)
お問い合わせを行う前に
「個人情報の取り扱いについて」を必ずお読みください。
「個人情報の取り扱いについて」に同意いただいた場合は「上記にご同意の上 確認画面へ進む」のボタンをクリックしてください。
個人情報の取り扱いについて
皆さまが送付された個人情報はアットホーム(株)のサーバを経由し、お問い合わせ先の不動産会社にメールまたはFAXにて転送されるためアットホーム(株)にも保管されます。アットホーム(株)で保管された個人情報の取り扱いについては、【こちら】をご覧ください。
また、本画面でご記入いただいた個人情報は、お問い合わせ先の不動産会社でも保管します。 お問い合わせ先の不動産会社が保管する個人情報の取り扱いについては、不動産会社に直接お問い合わせください。
国土交通大臣免許(1)第9926号 |
|---|
- 交通:
- JR山手線/恵比寿駅 徒歩2分
- 東京都渋谷区恵比寿1丁目7-12 LA CITY EBISU Ⅱ 3階
- TEL:
- 03-3440-2581
- FAX:
- 03-3440-2582
- 所属団体:
- 所属団体未加入会員
取引態様:仲介  - 00272301
|
- スマートフォンで
この不動産会社を見る

|
- 提携サイト等より掲載されている物件情報につきましては、不動産会社詳細情報にリンクされていないものがあります。
- 物件に関するお問合せは、物件詳細ページの「情報提供会社」に表示されている不動産会社へ直接お願いいたします。
- 間取図は、現況を優先させていただきます。
- 映像は物件の一部を撮影したものです。物件の契約にあたっての最終判断はご自身の判断に基づいて行ってください。
- 仲介手数料について

アットホームは物件情報の適正化に努めております。
内容に誤りがある場合にはこちらへご連絡ください。