大阪府大阪市西区靱本町2丁目(阿波座駅)の賃貸:物件詳細
交通 所在地 |
駅徒歩 |
賃料 管理費等 |
敷金/保証金 礼金 |
間取り 面積 |
物件種目 築年月 |
|
地下鉄中央線/阿波座
大阪府大阪市西区靱本町2丁目
|
5分
|
13.2万円
15,120円
|
なし / なし
13.2万円
|
1LDK
44.32m²
|
賃貸マンション
2008年2月(築18年4ヶ月)
|
分譲タイプ、常時ゴミ出し可能、角部屋、高齢者相談、二人入居可、24時間セキュリティー、24時間換気システム、閑静な住宅街、外観タイル張り、IT重説対応物件
|
|
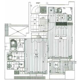
間取図
|
外観
|
<
その他の画像
>
|
|
|
| 交通 | 地下鉄中央線 阿波座駅 徒歩5分 |
|---|
| その他の交通 | 地下鉄御堂筋線 本町駅 徒歩7分 地下鉄長堀鶴見緑地線 西大橋駅 徒歩10分 |
| 所在地 |
大阪府大阪市西区靱本町2丁目
|
| 物件種目 |
賃貸マンション |
| 賃料 |
13.2万円 |
管理費等 |
15,120円 |
| 敷金 / 保証金 |
なし / なし |
礼金 |
13.2万円 |
| 敷引 |
- |
保証金償却 |
- |
| その他一時金 |
なし |
保険等 |
要 2年 20,000円 |
| 維持費等 |
- |
| 間取り |
1LDK(洋6.7、LDK10.7) |
専有面積 |
44.32m² |
| 築年月 |
2008年2月(築18年4ヶ月)
|
階建 / 階 |
11階建 / 10階 |
| 建物構造 |
SRC |
総戸数 |
- |
| 主要採光面 |
北 |
駐車場 |
- |
| バイク置き場 |
- |
駐輪場 |
有 |
| 建物名・部屋番号 |
リーガル靭公園南 |
ペット |
-
|
| アピールポイント |
収納はクロゼット・シューズボックスなど豊富なので、衣類や履き物の整理がしやすく便利です。共用部には宅配ボックス・ゴミ出し24時間OKなどが備わっておりとても充実しています。室内設備は洗面化粧台・浴室乾燥機などが揃っており、とても充実しています。エントランスと玄関の2つのロックで守られているので安全面に優れているオートロック機能があります。こちらは1LDKになります。通風良好でさわやかな暮らしを送れる物件となっております。バルコニー付きの物件です。魅力も多い賃貸物件はいかがでしょうか。インターネットをご利用いただけます。11階建てで街並みにも馴染んだ物件です。エアコン付きの物件なので、快適に生活できます。 |
| リフォーム履歴 |
- |
| リノベーション履歴 |
- |
| 備考 |
管理形態/管理員の勤務形態:-/巡回
IT重説対応物件、管理人巡回
物件のお問い合わせはSumoSumoまで♪♪
共用部には宅配ボックス・ゴミ出し24時間OKなど様々な設備やサービスが揃っているので便利です。建物のエントランスには安全性に優れているオートロック機能を備えております。室内設備は洗面所独立・浴室乾燥機などが揃っているので、快適に過ごしやすいお部屋になります。収納はシューズボックス・クロゼットなどが備え付けられているので、衣類や日用品の収納に重宝します。衛生的で扱いやすく、お料理がはかどるシステムキッチンがあります。今後BS加入予定なら、このBS対応物件が一押しとなっています。閑静な住宅地にあるマンションです。角部屋は隣り合う住戸が片側にしかないため、騒音トラブル防止になります。お部屋に関しての相談や引っ越し日の調整はお任せ下さいね。こちらは1LDKになります。11階建てのマンションを是非ご覧ください。
|
| エネルギー消費性能 |
- |
| 断熱性能 |
- |
| 目安光熱費 |
- |
| バス・トイレ |
バス・トイレ別、浴室乾燥機、追焚機能、高温差湯式、シャワー付洗面化粧台、洗面所独立、洗面所、洗面台、温水洗浄便座、トイレ |
| キッチン |
システムキッチン、独立型キッチン、3口以上コンロ、ガスコンロ可、グリル |
| セキュリティー |
オートロック、防犯カメラ |
| 収納 |
収納スペース、クローゼット、シューズボックス |
| 設備・サービス |
都市ガス給湯、給湯、フローリング、都市ガス、エアコン、冷房、人感センサー付照明 |
| TV・通信 |
インターネット対応、光ファイバー、CATVインターネット、ケーブルTV、CS、BS端子 |
| その他 |
宅配BOX、バルコニー、駐輪場、エレベーター |
| 契約期間 |
2年 |
現況 |
空家 |
| 条件等 |
- |
入居可能時期 |
即時 |
| 更新料 |
- |
物件番号 |
1157544722 |
| 情報公開日 |
2026年3月2日 |
次回更新予定日 |
2026年5月21日 |
| ケータイ用バーコード |
- スマートフォンでこの物件を見る
- スマートフォンからもこの物件をご覧になれます。
|
※「-」と表示されている項目については、情報提供会社にご確認ください。
| 周辺施設 |
セブンイレブン 大阪靱本町2丁目店 |
| 距離 |
191m |
写真を見る |
| 周辺施設 |
西警察署靭交番 |
| 距離 |
188m |
写真を見る |
| 周辺施設 |
ファミリーマート 西本町二丁目店 |
| 距離 |
315m |
写真を見る |
| 周辺施設 |
大阪西本町郵便局 |
| 距離 |
454m |
写真を見る |
| 周辺施設 |
スギ薬局 西本町店 |
| 距離 |
474m |
写真を見る |
| 周辺施設 |
ライフ阿波座駅前店 |
| 距離 |
558m |
写真を見る |
ここから簡単にお問い合わせをすることができます。
(SSLでの暗号化での送信を希望されるお客さまは
こちら
よりお問い合わせください)
お問い合わせを行う前に
「個人情報の取り扱いについて」を必ずお読みください。
「個人情報の取り扱いについて」に同意いただいた場合は「上記にご同意の上 確認画面へ進む」のボタンをクリックしてください。
個人情報の取り扱いについて
皆さまが送付された個人情報はアットホーム(株)のサーバを経由し、お問い合わせ先の不動産会社にメールまたはFAXにて転送されるためアットホーム(株)にも保管されます。アットホーム(株)で保管された個人情報の取り扱いについては、【こちら】をご覧ください。
また、本画面でご記入いただいた個人情報は、お問い合わせ先の不動産会社でも保管します。 お問い合わせ先の不動産会社が保管する個人情報の取り扱いについては、不動産会社に直接お問い合わせください。
大阪府知事免許(1)第62697号 |
|---|
- 交通:
- 地下鉄御堂筋線/心斎橋駅 徒歩3分
- 大阪府大阪市中央区南船場3丁目3-23 中和船場ビル102号
- TEL:
- 06-4400-6315
- FAX:
- 06-6258-3116
- 所属団体:
- (公社)全日本不動産協会会員(公社)近畿地区不動産公正取引協議会加盟
取引態様:仲介  - 50105934
|
- スマートフォンで
この不動産会社を見る

|
- 提携サイト等より掲載されている物件情報につきましては、不動産会社詳細情報にリンクされていないものがあります。
- 物件に関するお問合せは、物件詳細ページの「情報提供会社」に表示されている不動産会社へ直接お願いいたします。
- 間取図は、現況を優先させていただきます。
- 映像は物件の一部を撮影したものです。物件の契約にあたっての最終判断はご自身の判断に基づいて行ってください。
- 仲介手数料について

アットホームは物件情報の適正化に努めております。
内容に誤りがある場合にはこちらへご連絡ください。