東京都大田区西蒲田8丁目(蒲田駅)の賃貸:物件詳細
交通 所在地 |
駅徒歩 |
賃料 管理費等 |
敷金/保証金 礼金 |
間取り 面積 |
物件種目 築年月 |
|
東急池上線/蒲田
東京都大田区西蒲田8丁目
|
3分
|
14.4万円
10,000円
|
1ヶ月 / なし
1ヶ月
|
ワンルーム
27.61m²
|
賃貸マンション
2012年9月(築13年3ヶ月)
|
ペット相談、楽器相談、常時ゴミ出し可能、24時間セキュリティー、24時間換気システム、外観タイル張り
|
|
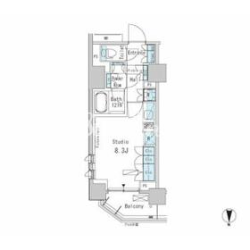
間取図
|
外観
|
<
その他の画像
>
|
| 交通 | 東急池上線 蒲田駅 徒歩3分 |
|---|
| その他の交通 | 東急池上線 蓮沼駅 徒歩10分 京急空港線 京急蒲田駅 徒歩17分 |
| 所在地 |
東京都大田区西蒲田8丁目
|
| 物件種目 |
賃貸マンション |
| 賃料 |
14.4万円 |
管理費等 |
10,000円 |
| 敷金 / 保証金 |
1ヶ月 / なし |
礼金 |
1ヶ月 |
| 敷引 |
- |
保証金償却 |
- |
| その他一時金 |
室内清掃費用:55,000円、鍵交換代等:16,500円~ |
保険等 |
要 |
| 維持費等 |
口座振替事務手数料:110円/月 |
| 間取り |
ワンルーム(洋室8.3帖) |
専有面積 |
27.61m² |
| 築年月 |
2012年9月(築13年3ヶ月)
|
階建 / 階 |
14階建 / 8階 |
| 建物構造 |
RC |
総戸数 |
- |
| 主要採光面 |
北 |
駐車場 |
無 |
| バイク置き場 |
- |
駐輪場 |
- |
| 建物名・部屋番号 |
801 |
ペット |
小型犬可・ 猫可 |
| アピールポイント |
蒲田駅徒歩3分 ペット飼育可 楽器相談可 オートロック 宅配ボックス 浴室乾燥機 ダブルロック |
| リフォーム履歴 |
- |
| リノベーション履歴 |
- |
| 備考 |
賃貸保証等:加入要(初回:総賃料等の50% 2年目以降:9600円 口座振替手数料:110円)
管理形態/管理員の勤務形態:-/巡回
管理人巡回
ペット可(小型犬or猫1匹迄 敷金1ヶ月積増)、楽器可(アップライトピアノ相談可)、火災保険加入要、1年未満の解約時総賃料1ヶ月分の違約金有
|
| エネルギー消費性能 |
- |
| 断熱性能 |
- |
| 目安光熱費 |
- |
| バス・トイレ |
バス・トイレ別、浴室乾燥機、オートバス、追焚機能、洗面所独立、洗面所、洗面台、シャワー、温水洗浄便座、トイレ |
| キッチン |
システムキッチン、独立型キッチン、2口コンロ、ガスコンロ付 |
| セキュリティー |
モニター付オートロック、オートロック、モニター付インターホン、ディンプルキー、ダブルロックドア、防犯カメラ |
| 収納 |
全居室収納、収納スペース、クローゼット、シューズボックス |
| 設備・サービス |
全居室エアコン、室内洗濯機置場、給湯、全居室フローリング、フローリング、都市ガス、エアコン、暖房、冷房、人感センサー付照明、照明器具 |
| TV・通信 |
インターネット対応、光ファイバー、CATVインターネット、ケーブルTV、CS、BS端子 |
| その他 |
宅配BOX、バルコニー、エレベーター |
| 契約期間 |
2年 |
現況 |
居住中 |
| 条件等 |
- |
入居可能時期 |
2025年12月上旬予定 |
| 更新料 |
新賃料 1ヶ月 |
物件番号 |
1157647715 |
| 情報公開日 |
2025年10月27日 |
次回更新予定日 |
2025年11月10日 |
| ケータイ用バーコード |
- スマートフォンでこの物件を見る
- スマートフォンからもこの物件をご覧になれます。
|
※「-」と表示されている項目については、情報提供会社にご確認ください。
| 周辺施設 |
蒲田駅(東急電鉄 池上線) |
| 距離 |
220m |
写真を見る |
| 周辺施設 |
社会医療法人財団仁医会牧田総合病院 |
| 距離 |
160m |
ここから簡単にお問い合わせをすることができます。
(SSLでの暗号化での送信を希望されるお客さまは
こちら
よりお問い合わせください)
お問い合わせを行う前に
「個人情報の取り扱いについて」を必ずお読みください。
「個人情報の取り扱いについて」に同意いただいた場合は「上記にご同意の上 確認画面へ進む」のボタンをクリックしてください。
個人情報の取り扱いについて
皆さまが送付された個人情報はアットホーム(株)のサーバを経由し、お問い合わせ先の不動産会社にメールまたはFAXにて転送されるためアットホーム(株)にも保管されます。アットホーム(株)で保管された個人情報の取り扱いについては、【こちら】をご覧ください。
また、本画面でご記入いただいた個人情報は、お問い合わせ先の不動産会社でも保管します。 お問い合わせ先の不動産会社が保管する個人情報の取り扱いについては、不動産会社に直接お問い合わせください。
東京都知事免許(6)第76891号 |
|---|
- 交通:
- 東京メトロ有楽町線/豊洲駅 徒歩2分
- 東京都江東区豊洲4丁目4-27 シービーワイコヤスビル3F
- TEL:
- 03-6228-4882
- FAX:
- 03-5547-5189
- 所属団体:
- (公社)全日本不動産協会会員(公社)首都圏不動産公正取引協議会加盟
取引態様:仲介  - 00106802
|
- スマートフォンで
この不動産会社を見る

|
- 提携サイト等より掲載されている物件情報につきましては、不動産会社詳細情報にリンクされていないものがあります。
- 物件に関するお問合せは、物件詳細ページの「情報提供会社」に表示されている不動産会社へ直接お願いいたします。
- 間取図は、現況を優先させていただきます。
- 映像は物件の一部を撮影したものです。物件の契約にあたっての最終判断はご自身の判断に基づいて行ってください。
- 仲介手数料について

アットホームは物件情報の適正化に努めております。
内容に誤りがある場合にはこちらへご連絡ください。