東京都板橋区板橋2丁目(板橋区役所前駅)の賃貸:物件詳細
交通 所在地 |
駅徒歩 |
賃料 管理費等 |
敷金/保証金 礼金 |
間取り 面積 |
物件種目 築年月 |
|
都営三田線/板橋区役所前
東京都板橋区板橋2丁目
|
7分
|
11.5万円
15,000円
|
なし / なし
なし
|
1K
28.22m²
|
賃貸マンション
2008年9月(築17年2ヶ月)
|
ペット相談、分譲タイプ、常時ゴミ出し可能、最上階、24時間セキュリティー、24時間換気システム、外観タイル張り、IT重説対応物件、保証人不要
|
|
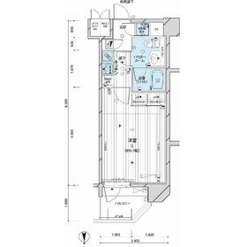
間取図
|
外観
|
<
その他の画像
>
|
| 交通 | 都営三田線 板橋区役所前駅 徒歩7分 |
|---|
| その他の交通 | 東武東上線 下板橋駅 徒歩7分 都営三田線 新板橋駅 徒歩10分 |
| 所在地 |
東京都板橋区板橋2丁目
|
| 物件種目 |
賃貸マンション |
| 賃料 |
11.5万円 |
管理費等 |
15,000円 |
| 敷金 / 保証金 |
なし / なし |
礼金 |
なし |
| 敷引 |
- |
保証金償却 |
- |
| その他一時金 |
AMLクラブサポート:16,500円、ハウスクリーニング費用(退去時):49,500円、エアコンクリーニング費用(退去時):16,500円、鍵交換代等:29,700円~ |
保険等 |
要 2年 15,000円 |
| 維持費等 |
- |
| 間取り |
1K(K2.0帖 洋室9.3帖) |
専有面積 |
28.22m² |
| 築年月 |
2008年9月(築17年2ヶ月)
|
階建 / 階 |
15階建 / 15階 |
| 建物構造 |
RC |
総戸数 |
- |
| 主要採光面 |
北 |
駐車場 |
- |
| バイク置き場 |
- |
駐輪場 |
有 |
| 建物名・部屋番号 |
メインステージパーク大山 1502 |
ペット |
小型犬可・ 猫可 |
| アピールポイント |
おしゃれなカフェをテーマにしたお部屋探しCAFEヘヤギメ!若くて活気あるスタッフが丁寧に対応いたします。LINE・メール・ビデオ通話でのオンライン相談、現地またはオンライン内覧、IT重説に対応。初期費用はクレジットカード(一括・分割)でのお支払いが可能です。ポータルに掲載されていない未公開物件や周辺エリアの類似物件もまとめてご紹介します。遠方にお住まいの方やお忙しい方も、お気軽にお問い合わせください。最新の空室状況や費用は変動いたしますので、お早めにご確認ください。 |
| リフォーム履歴 |
- |
| リノベーション履歴 |
- |
| 備考 |
賃貸保証等:加入要(賃貸保証料:0.50ヶ月 家賃総額より50%~)
管理形態/管理員の勤務形態:-/巡回
IT重説対応物件、管理人巡回
メールやLINEで気軽にご相談いただけます。ご来店が難しいお客様も安心してお問い合わせください。複数物件をまとめてご案内でき、オンライン相談・内見・契約まで対応可能。初期費用はクレジットカード(一括・分割)でのお支払いも可能です。
|
| エネルギー消費性能 |
- |
| 断熱性能 |
- |
| 目安光熱費 |
- |
| バス・トイレ |
バス・トイレ別、浴室乾燥機、シャワー付洗面化粧台、洗面所独立、洗面台、シャワー、温水洗浄便座 |
| キッチン |
システムキッチン、2口コンロ、ガスコンロ付 |
| セキュリティー |
モニター付オートロック、オートロック、防犯カメラ、火災警報器(報知機) |
| 収納 |
クローゼット、シューズボックス |
| 設備・サービス |
室内洗濯機置場、給湯、フローリング、都市ガス、エアコン |
| TV・通信 |
インターネット対応、光ファイバー |
| その他 |
宅配BOX、バルコニー、駐輪場、エレベーター |
| 契約期間 |
2年 |
現況 |
空家 |
| 条件等 |
- |
入居可能時期 |
2025年11月上旬予定 |
| 更新料 |
新賃料 1.5ヶ月 |
物件番号 |
1157735215 |
| 情報公開日 |
2025年10月27日 |
次回更新予定日 |
2025年11月11日 |
| ケータイ用バーコード |
- スマートフォンでこの物件を見る
- スマートフォンからもこの物件をご覧になれます。
|
※「-」と表示されている項目については、情報提供会社にご確認ください。
| 周辺施設 |
まいばすけっと板橋宿店 |
| 距離 |
403m |
写真を見る |
| 周辺施設 |
サンクス下板橋駅前店 |
| 距離 |
459m |
写真を見る |
| 周辺施設 |
ニューヤマザキデイリーストア板橋熊野町店 |
| 距離 |
968m |
写真を見る |
| 周辺施設 |
公益財団法人東京都保健医療公社豊島病院 |
| 距離 |
1733m |
写真を見る |
| 周辺施設 |
ヨークマート下板橋店 |
| 距離 |
381m |
写真を見る |
ここから簡単にお問い合わせをすることができます。
(SSLでの暗号化での送信を希望されるお客さまは
こちら
よりお問い合わせください)
お問い合わせを行う前に
「個人情報の取り扱いについて」を必ずお読みください。
「個人情報の取り扱いについて」に同意いただいた場合は「上記にご同意の上 確認画面へ進む」のボタンをクリックしてください。
個人情報の取り扱いについて
皆さまが送付された個人情報はアットホーム(株)のサーバを経由し、お問い合わせ先の不動産会社にメールまたはFAXにて転送されるためアットホーム(株)にも保管されます。アットホーム(株)で保管された個人情報の取り扱いについては、【こちら】をご覧ください。
また、本画面でご記入いただいた個人情報は、お問い合わせ先の不動産会社でも保管します。 お問い合わせ先の不動産会社が保管する個人情報の取り扱いについては、不動産会社に直接お問い合わせください。
国土交通大臣免許(4)第7352号 |
|---|
- 交通:
- JR山手線/池袋駅 徒歩1分
- 東京都豊島区西池袋1丁目27-1 青山ビル2F
- TEL:
- 0120-801-281
- FAX:
- 03-5957-5527
- 所属団体:
- (公社)全日本不動産協会会員(公社)首都圏不動産公正取引協議会加盟
取引態様:仲介  - 00160800
|
- スマートフォンで
この不動産会社を見る

|
- 提携サイト等より掲載されている物件情報につきましては、不動産会社詳細情報にリンクされていないものがあります。
- 物件に関するお問合せは、物件詳細ページの「情報提供会社」に表示されている不動産会社へ直接お願いいたします。
- 間取図は、現況を優先させていただきます。
- 映像は物件の一部を撮影したものです。物件の契約にあたっての最終判断はご自身の判断に基づいて行ってください。
- 仲介手数料について

アットホームは物件情報の適正化に努めております。
内容に誤りがある場合にはこちらへご連絡ください。