不動産 賃貸 マンション等の住宅情報:埼玉住まい情報


神奈川県横浜市西区楠町(横浜駅)の賃貸:物件詳細

  • 物件詳細
  • 情報の見方
  • 印刷用画面
交通
所在地
駅徒歩 賃料
管理費等
敷金/保証金
礼金
間取り
面積
物件種目
築年月

ブルーライン/横浜

神奈川県横浜市西区楠町

10分

12.2万円

5,000円

1ヶ月 / なし

1ヶ月

1K

28.91m²

賃貸マンション

2017年2月(築9年1ヶ月)

おすすめPOINTペット相談、デザイナーズ、分譲タイプ、常時ゴミ出し可能、最上階、24時間換気システム、外観タイル張り、前面棟無、IT重説対応物件、保証人不要

おすすめコメント  スタッフ: 小池 美穂

デザイナーズ高級分譲賃貸マンション「ZOOM横浜」。ビッグターミナル「横浜」駅より平坦徒歩10分。インターネット接続料無料。ビッグコミュニティならではの充実した設備を、ぜひご覧ください。

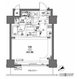
間取図

間取図

外観

外観

<
その他の画像
  • 玄関
  • リビング
  • キッチン
  • 室内
  • バス/シャワー
  • バルコニー
  • その他
  • 収納
  • 洗面
  • トイレ
  • 設備
  • その他
  • 収納
  • 収納
  • 設備
  • 設備
  • 設備
  • 設備
  • 室内
  • 室内
  • エントランス
  • その他
  • 共有部分
  • 設備
  • 共有部分
  • 駐車場
  • 販売店
  • コンビニ
  • コンビニ
  • 飲食店
  • 販売店
  • 販売店
  • 販売店
  • 飲食店
>
    • とりあえず保存
    • お問い合わせ
    交通

    ブルーライン 横浜駅 徒歩10分

    その他の交通

    東急東横線 横浜駅 徒歩10分

    相鉄本線 平沼橋駅 徒歩14分

    所在地 神奈川県横浜市西区楠町
    物件種目 賃貸マンション
    賃料 12.2万円 管理費等 5,000円
    敷金 / 保証金 1ヶ月 / なし 礼金 1ヶ月
    敷引 保証金償却
    その他一時金 なし、鍵交換代等:33,000円~ 保険等 不要
    維持費等 保証付帯費:1,735円/月
    間取り 1K(洋9.1) 専有面積 28.91m²
    築年月 2017年2月(築9年1ヶ月) 階建 / 階 11階建 / 11階
    建物構造 RC 総戸数
    主要採光面 北西 駐車場
    バイク置き場 駐輪場
    建物名・部屋番号 ZOOM横浜 ペット 小型犬可・ 猫可
    アピールポイント デザイナーズ分譲賃貸マンション「Le'a(レア)」シリーズ、リノベーションマンション「G.Gallery(ジーギャラリー)」シリーズなどGLIPでは他の不動産会社では取り扱っていない物件が多数あります。人気のグリフィンマンションシリーズ、ガーラマンションシリーズなども当社管理物件多数あり。ポータルサイト掲載不可の未公開物件は当社HP「グリップ横浜本店」で検索ください。
    リフォーム履歴
    リノベーション履歴
    備考
    賃貸保証等:加入要(初回保証料:総賃料50% 月次保証料:総賃料1%(指定保証会社のプランによる))
    管理形態/管理員の勤務形態:-/巡回
    バルコニー:5.22m²
    IT重説対応物件、外壁コンクリート、管理人巡回
    ★Le'a(レア)シリーズのGLIP★
    人気のグリフィンマンションシリーズ、ガーラマンションシリーズなども自社管理物件が多数あります。
    エネルギー消費性能
    断熱性能
    目安光熱費
    バス・トイレ バス・トイレ別、浴室乾燥機、オートバス、追焚機能、洗面所独立、洗面所、洗面台、シャワー、温水洗浄便座、トイレ
    キッチン システムキッチン、2口コンロ、ガスコンロ可
    セキュリティー モニター付オートロック、オートロック、モニター付インターホン、ディンプルキー、ダブルロックドア、防犯カメラ、火災警報器(報知機)
    収納 ウォークインクローゼット、収納スペース、クローゼット、シューズボックス
    設備・サービス 室内洗濯機置場、洗濯機置場、都市ガス給湯、給湯、フローリング、都市ガス、エアコン、冷房、人感センサー付照明、ダウンライト、照明器具
    TV・通信 インターネット対応、インターネット使用料無料、ケーブルTV
    その他 宅配BOX、エレベーター2基以上、ワイドバルコニー、バルコニー、エレベーター
    契約期間 2年 現況 居住中
    条件等 入居可能時期 2026年3月下旬予定
    仲介手数料 1.1ヶ月    
    更新料 新賃料 1ヶ月 物件番号 1158246810
    情報公開日 2026年2月11日 次回更新予定日 2026年2月26日
    ケータイ用バーコード

    QRコード

    スマートフォンでこの物件を見る
    スマートフォンからもこの物件をご覧になれます。
    ※「-」と表示されている項目については、情報提供会社にご確認ください。

    この物件の周辺情報

    周辺施設 まいばすけっと 横浜楠町店
    距離 50m
    周辺施設 デイリーヤマザキ 横浜北幸店
    距離 282m
    周辺施設 セブンイレブン 横浜浅間下店
    距離 202m
    周辺施設 ジョナサン 横浜北幸店
    距離 439m
    周辺施設 ドン・キホーテ横浜西口店
    距離 803m
    周辺施設 VIVRE YOKOHAMA(ビブレ横浜)
    距離 816m
    周辺施設 オーエスドラッグ横浜店
    距離 876m
    周辺施設 マクドナルド 横浜西口店
    距離 807m

    クイックお問い合わせ

    ここから簡単にお問い合わせをすることができます。
    (SSLでの暗号化での送信を希望されるお客さまは こちら よりお問い合わせください)

    お問い合わせ内容(必須)
    お名前(必須) 姓  名 
    メールアドレス(必須)
    ※携帯電話のメールアドレスをご入力される方はこちらをご確認ください
    電話番号(必須)
    - -

    ※入力いただいた電話番号へSMSまたは音声でパスワードをご連絡します。

    携帯電話の番号をご入力の方へ

    携帯電話の番号をご入力の方へ
    確認画面にて送信ボタンをクリックするとSMSが携帯電話に届きます。
    そのSMSに記載のパスワード(認証番号)を入力し、お問い合わせを完了してください。
    尚、SMSの送信者番号は 0005 202 760 となります。
    これはアットホームの固定番号です。

    備考欄 希望条件、物件案内希望日、質問などがございましたらご記入ください。
    お問い合わせを行う前に「個人情報の取り扱いについて」を必ずお読みください。
    「個人情報の取り扱いについて」に同意いただいた場合は「上記にご同意の上 確認画面へ進む」のボタンをクリックしてください。

    個人情報の取り扱いについて

    皆さまが送付された個人情報はアットホーム(株)のサーバを経由し、お問い合わせ先の不動産会社にメールまたはFAXにて転送されるためアットホーム(株)にも保管されます。アットホーム(株)で保管された個人情報の取り扱いについては、【こちら】をご覧ください。
    また、本画面でご記入いただいた個人情報は、お問い合わせ先の不動産会社でも保管します。 お問い合わせ先の不動産会社が保管する個人情報の取り扱いについては、不動産会社に直接お問い合わせください。

    情報提供会社

    情報提供会社

    (株)グリップ 横浜本店

    神奈川県知事免許(4)第27217号

    交通:
    JR東海道本線/横浜駅 徒歩3分
    神奈川県横浜市西区高島2丁目7-1 ファーストプレイス横浜2F
    TEL:
    045-285-0550
    FAX:
    045-285-0551
    所属団体:
    (公社)神奈川県宅地建物取引業協会会員
    (公社)首都圏不動産公正取引協議会加盟

    取引態様:仲介

    • 会社情報
    • 00101368
    スマートフォンで
    この不動産会社を見る
    QRコード
    • とりあえず保存
    • お問い合わせ
    • 提携サイト等より掲載されている物件情報につきましては、不動産会社詳細情報にリンクされていないものがあります。
    • 物件に関するお問合せは、物件詳細ページの「情報提供会社」に表示されている不動産会社へ直接お願いいたします。
    • 間取図は、現況を優先させていただきます。
    • 映像は物件の一部を撮影したものです。物件の契約にあたっての最終判断はご自身の判断に基づいて行ってください。
    • 仲介手数料について仲介手数料

    アットホームは物件情報の適正化に努めております。 内容に誤りがある場合にはこちらへご連絡ください。

    【埼玉住まい情報】では、日本全国の物件から賃貸マンションや賃貸アパート・賃貸一戸建て等の賃貸住宅情報、新築マンション・分譲マンションや中古マンション等の売買マンション情報、新築一戸建てや中古一戸建てなどの戸建住宅、 土地など、総合的な不動産住宅情報検索サービスを提供致します。
    【埼玉住まい情報】から、選りすぐりの不動産物件を探してみましょう。

    【免責事項】
    このコーナーの運営はアットホーム株式会社(https://www.athome.co.jp/)が行っています。
    このコーナーに掲載している物件情報は、「アットホーム不動産情報ネットワーク」に加盟する不動産会社等(情報提供元)から提供されています。信頼性の高い情報提供が行えるよう、最大限の努力をしておりますが、その内容を保証するものではありません。 利用者のみなさまと各情報提供元との取引に起因する損害および情報が掲載されたことに起因する損害等については、株式会社イーシティ埼玉、およびアットホームは一切責任を負いません。
    各物件情報の内容や画像等はすべて現況を優先させていただきます。
    お取引等(お取引の準備、資金調達等を含みます)の際には、内容や契約条件等について、各情報提供元より十分な説明を受け、ご自身でご確認の上、判断してください。
    このコーナーへの物件情報のご掲載、その他不動産業務ソリューション等についての不動産会社様のお問合せはこちらからお願いいたします。

    物件画像: