神奈川県横浜市南区永楽町1丁目(伊勢佐木長者町駅)の賃貸:物件詳細
交通 所在地 |
駅徒歩 |
賃料 管理費等 |
敷金/保証金 礼金 |
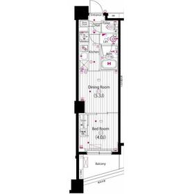
間取り 面積 |
物件種目 築年月 |
|
ブルーライン/伊勢佐木長者町
神奈川県横浜市南区永楽町1丁目
|
8分
|
8.9万円
10,000円
|
1ヶ月 / なし
2ヶ月
|
1DK
26.93m²
|
賃貸マンション
2021年10月(築4年2ヶ月)
|
常時ゴミ出し可能、角部屋、24時間セキュリティー、24時間換気システム、外観タイル張り、IT重説対応物件、保証人不要
|
|
間取図
|
外観
|
<
その他の画像
>
|
| 交通 | ブルーライン 伊勢佐木長者町駅 徒歩8分 |
|---|
| その他の交通 | JR京浜東北線 関内駅 徒歩13分 |
| 所在地 |
神奈川県横浜市南区永楽町1丁目
|
| 物件種目 |
賃貸マンション |
| 賃料 |
8.9万円 |
管理費等 |
10,000円 |
| 敷金 / 保証金 |
1ヶ月 / なし |
礼金 |
2ヶ月 |
| 敷引 |
- |
保証金償却 |
- |
| その他一時金 |
エアコンクリーニング費用/1台につき:13,200円、火災保険(地震特約付き):26,000円、室内清掃費用:38,500円、鍵交換代等:23,100円~ |
保険等 |
要 2年 20,000円 |
| 維持費等 |
- |
クレジットカード決済 |
初期費用可 賃料可 |
| 間取り |
1DK(K2、D5.3、洋4) |
専有面積 |
26.93m² |
| 築年月 |
2021年10月(築4年2ヶ月)
|
階建 / 階 |
11階建 / 6階 |
| 建物構造 |
RC |
総戸数 |
- |
| 主要採光面 |
南東 |
駐車場 |
無 |
| バイク置き場 |
- |
駐輪場 |
有 |
| 建物名・部屋番号 |
ガーラ・グランディ横濱関内 |
ペット |
-
|
| アピールポイント |
Wi-Fi無料!全戸独立洗面台・浴室乾燥機付! |
| リフォーム履歴 |
- |
| リノベーション履歴 |
- |
| 備考 |
賃貸保証等:加入要(クレディセゾン その他保証人代行会社名:株式会社クレディセゾン 保証人代行内容:賃料等の0.5ヶ月分(最低保証料2万円)/月額保証料 賃料等の1.2%)
管理形態/管理員の勤務形態:-/日勤
バルコニー:4.57m²
IT重説対応物件、管理人日勤
|
| エネルギー消費性能 |
- |
| 断熱性能 |
- |
| 目安光熱費 |
- |
| バス・トイレ |
バス・トイレ別、浴室乾燥機、追焚機能、洗面所独立、洗面所、洗面台、シャワー、温水洗浄便座、トイレ |
| キッチン |
システムキッチン、2口コンロ、ガスコンロ可、グリル |
| セキュリティー |
モニター付オートロック、オートロック、モニター付インターホン、カードキー、防犯カメラ |
| 収納 |
収納スペース、クローゼット、シューズボックス |
| 設備・サービス |
室内洗濯機置場、洗濯機置場、都市ガス給湯、給湯、都市ガス、エアコン、人感センサー付照明 |
| TV・通信 |
インターネット対応、インターネット使用料無料、光ファイバー、CS、BS端子 |
| その他 |
宅配BOX、バルコニー、駐輪場、エレベーター |
| 契約期間 |
2年 |
現況 |
空家 |
| 条件等 |
- |
入居可能時期 |
2025年11月中旬予定 |
| 更新料 |
新賃料 1ヶ月 |
物件番号 |
1158268216 |
| 情報公開日 |
2025年11月5日 |
次回更新予定日 |
2025年11月19日 |
| ケータイ用バーコード |
- スマートフォンでこの物件を見る
- スマートフォンからもこの物件をご覧になれます。
|
※「-」と表示されている項目については、情報提供会社にご確認ください。
| 周辺施設 |
まいばすけっと真金町1丁目店 |
| 距離 |
188m |
写真を見る |
| 周辺施設 |
ローソン真金町店 |
| 距離 |
108m |
写真を見る |
| 周辺施設 |
ドラッグストアスマイル横浜橋2号店 |
| 距離 |
378m |
写真を見る |
ここから簡単にお問い合わせをすることができます。
(SSLでの暗号化での送信を希望されるお客さまは
こちら
よりお問い合わせください)
お問い合わせを行う前に
「個人情報の取り扱いについて」を必ずお読みください。
「個人情報の取り扱いについて」に同意いただいた場合は「上記にご同意の上 確認画面へ進む」のボタンをクリックしてください。
個人情報の取り扱いについて
皆さまが送付された個人情報はアットホーム(株)のサーバを経由し、お問い合わせ先の不動産会社にメールまたはFAXにて転送されるためアットホーム(株)にも保管されます。アットホーム(株)で保管された個人情報の取り扱いについては、【こちら】をご覧ください。
また、本画面でご記入いただいた個人情報は、お問い合わせ先の不動産会社でも保管します。 お問い合わせ先の不動産会社が保管する個人情報の取り扱いについては、不動産会社に直接お問い合わせください。
国土交通大臣免許(1)第9976号 |
|---|
- 交通:
- 東京メトロ丸ノ内線/西新宿駅 徒歩1分
- 東京都新宿区西新宿6丁目5-1 新宿アイランドタワー11F
- TEL:
- 0120-423-555
- FAX:
- 03-6735-8881
- 所属団体:
- (公社)全日本不動産協会会員不動産公正取引協議会加盟
取引態様:代理  - 00016098
|
- スマートフォンで
この不動産会社を見る

|
- 提携サイト等より掲載されている物件情報につきましては、不動産会社詳細情報にリンクされていないものがあります。
- 物件に関するお問合せは、物件詳細ページの「情報提供会社」に表示されている不動産会社へ直接お願いいたします。
- 間取図は、現況を優先させていただきます。
- 映像は物件の一部を撮影したものです。物件の契約にあたっての最終判断はご自身の判断に基づいて行ってください。
- 仲介手数料について

アットホームは物件情報の適正化に努めております。
内容に誤りがある場合にはこちらへご連絡ください。