千葉県松戸市小金原7丁目(常盤平駅)の賃貸:物件詳細
交通 所在地 |
駅徒歩 |
賃料 管理費等 |
敷金/保証金 礼金 |
間取り 面積 |
物件種目 築年月 |
|
京成松戸線/常盤平
千葉県松戸市小金原7丁目
|
18分
|
9.7万円
3,000円
|
1ヶ月 / なし
1ヶ月
|
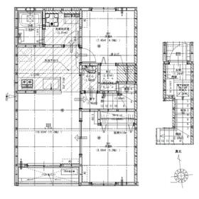
2LDK
53.62m²
|
賃貸アパート
2026年2月
|
角部屋、南向き、ルームシェア可、二人入居可
|
|
間取図
|
外観
|
その他の画像
|
|
|
| 交通 | 京成松戸線 常盤平駅 徒歩18分 |
|---|
| その他の交通 | 京成松戸線 五香駅 徒歩32分 JR武蔵野線 新八柱駅 徒歩38分 |
| 所在地 |
千葉県松戸市小金原7丁目
|
| 物件種目 |
賃貸アパート |
| 賃料 |
9.7万円 |
管理費等 |
3,000円 |
| 敷金 / 保証金 |
1ヶ月 / なし |
礼金 |
1ヶ月 |
| 敷引 |
- |
保証金償却 |
- |
| その他一時金 |
なし、鍵交換代等:16,500円~ |
保険等 |
要 |
| 維持費等 |
- |
クレジットカード決済 |
初期費用可 |
| 間取り |
2LDK |
専有面積 |
53.62m² |
| 築年月 |
2026年2月
|
階建 / 階 |
2階建 / 2階 |
| 建物構造 |
木造 |
総戸数 |
- |
| 主要採光面 |
南 |
駐車場 |
有 7,700円/月 |
| バイク置き場 |
- |
駐輪場 |
- |
| 建物名・部屋番号 |
リーブルファイン松戸小金原 |
ペット |
-
|
| アピールポイント |
☆当店の強みをお伝えします☆
①クレジットカードの初期費用分割払いを、喜んでお受けいたします(クレジットカード以外もOK)
②他社様がネットに掲載されている物件は、全てお調べし、【好条件】でご紹介いたします
他社様で「お申込み」された物件でも、【好条件】でご紹介できる場合がございます
③「審査が不安…」「保証人がいない…」「値段交渉をして欲しい…」などなど、
どのようなご条件でも、遠慮なくご相談いただけます
④ご検討されている「エリア」「沿線」が「広範囲」「複数」でも、一度で漏れなくお探しいただけます
ポータルサイトや他社サイトで気になるお部屋がございましたらお気軽にご相談ください
お客様のご来店を心よりお待ちしております |
| リフォーム履歴 |
- |
| リノベーション履歴 |
- |
| 備考 |
賃貸保証等:加入要(初回:賃料等の50%、毎月:1000円)
管理形態/管理員の勤務形態:-/-
駐車場3台空き有月額7700円/はじめCLUB OFF月額1100円/家財保険料29000円(2年間)/短期解約違約金(1年未満の解約の場合月額合計の2ヶ月分、1年以上2年未満の場合月額合計の1ヶ月分)/退去時負担費用(室内清掃代・エアコン清掃代・畳表替え費用・(ペット飼育時)消臭抗菌代)/自治会(町内会)入居者負担/CATVでBS、CS視聴可(CATV、BS別途契約要、有償)
|
| エネルギー消費性能 |
- |
| 断熱性能 |
- |
| 目安光熱費 |
- |
| バス・トイレ |
バス・トイレ別、浴室乾燥機、追焚機能、洗面所独立、温水洗浄便座、トイレ |
| キッチン |
システムキッチン、3口以上コンロ、ガスコンロ付 |
| セキュリティー |
モニター付インターホン |
| 収納 |
ウォークインクローゼット |
| 設備・サービス |
エアコン2台以上、室内洗濯機置場、都市ガス |
| TV・通信 |
インターネット対応、インターネット使用料無料、光ファイバー、ケーブルTV、CS、BS端子 |
| その他 |
宅配BOX、バルコニー |
| 契約期間 |
2年 |
現況 |
未完成 |
| 条件等 |
- |
入居可能時期 |
2026年3月上旬予定 |
| 更新料 |
- |
物件番号 |
1158405121 |
| 情報公開日 |
2026年2月6日 |
次回更新予定日 |
2026年2月20日 |
| ケータイ用バーコード |
- スマートフォンでこの物件を見る
- スマートフォンからもこの物件をご覧になれます。
|
※「-」と表示されている項目については、情報提供会社にご確認ください。
| 周辺施設 |
セブン-イレブン 松戸小金原店 |
| 距離 |
346m |
写真を見る |
| 周辺施設 |
ウエルシア柏南増尾店 |
| 距離 |
745m |
写真を見る |
| 周辺施設 |
丸亀製麺松戸栗ヶ沢 |
| 距離 |
526m |
写真を見る |
| 周辺施設 |
松戸市立栗ケ沢中学校 |
| 距離 |
709m |
写真を見る |
| 周辺施設 |
松戸市立栗ケ沢小学校 |
| 距離 |
652m |
写真を見る |
| 周辺施設 |
聖徳大学附属第二幼稚園 |
| 距離 |
790m |
写真を見る |
| 周辺施設 |
医療法人社団弥生会旭神経内科リハビリテーション病院 |
| 距離 |
572m |
写真を見る |
ここから簡単にお問い合わせをすることができます。
(SSLでの暗号化での送信を希望されるお客さまは
こちら
よりお問い合わせください)
お問い合わせを行う前に
「個人情報の取り扱いについて」を必ずお読みください。
「個人情報の取り扱いについて」に同意いただいた場合は「上記にご同意の上 確認画面へ進む」のボタンをクリックしてください。
個人情報の取り扱いについて
皆さまが送付された個人情報はアットホーム(株)のサーバを経由し、お問い合わせ先の不動産会社にメールまたはFAXにて転送されるためアットホーム(株)にも保管されます。アットホーム(株)で保管された個人情報の取り扱いについては、【こちら】をご覧ください。
また、本画面でご記入いただいた個人情報は、お問い合わせ先の不動産会社でも保管します。 お問い合わせ先の不動産会社が保管する個人情報の取り扱いについては、不動産会社に直接お問い合わせください。
国土交通大臣免許(3)第8522号 |
|---|
- 交通:
- JR常磐線/松戸駅 徒歩3分
- 千葉県松戸市松戸1286-2 M.CRESTA 1階
- TEL:
- 047-362-8811
- FAX:
- 047-362-8812
- 所属団体:
- (公社)全日本不動産協会会員(公社)首都圏不動産公正取引協議会加盟
取引態様:仲介  - 00785865
|
- スマートフォンで
この不動産会社を見る

|
- 提携サイト等より掲載されている物件情報につきましては、不動産会社詳細情報にリンクされていないものがあります。
- 物件に関するお問合せは、物件詳細ページの「情報提供会社」に表示されている不動産会社へ直接お願いいたします。
- 間取図は、現況を優先させていただきます。
- 映像は物件の一部を撮影したものです。物件の契約にあたっての最終判断はご自身の判断に基づいて行ってください。
- 仲介手数料について

アットホームは物件情報の適正化に努めております。
内容に誤りがある場合にはこちらへご連絡ください。