東京都千代田区神田多町2丁目(神田駅)の賃貸:物件詳細
交通 所在地 |
駅徒歩 |
賃料 管理費等 |
敷金/保証金 礼金 |
間取り 面積 |
物件種目 築年月 |
|
東京メトロ銀座線/神田
東京都千代田区神田多町2丁目
|
3分
|
40万円
20,000円
|
1ヶ月 / なし
なし
|
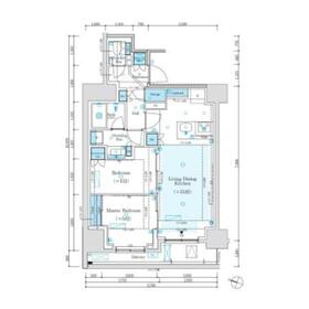
2LDK
59.85m²
|
賃貸マンション
2021年9月(築4年9ヶ月)
|
ペット相談、楽器相談
|
|
間取図
|
外観
|
<
その他の画像
>
|
| 交通 | 東京メトロ銀座線 神田駅 徒歩3分 |
|---|
| その他の交通 | JR山手線 神田駅 徒歩3分 JR中央線 神田駅 徒歩3分 |
| 所在地 |
東京都千代田区神田多町2丁目
|
| 物件種目 |
賃貸マンション |
| 賃料 |
40万円 |
管理費等 |
20,000円 |
| 敷金 / 保証金 |
1ヶ月 / なし |
礼金 |
なし |
| 敷引 |
- |
保証金償却 |
- |
| その他一時金 |
退去時の通常清掃費用:92,169円、入居時の玄関錠交換代:22,000円 |
保険等 |
要 |
| 維持費等 |
口座振替事務手数料:220円/月 |
| 間取り |
2LDK(LDK15) |
専有面積 |
59.85m² |
| 築年月 |
2021年9月(築4年9ヶ月)
|
階建 / 階 |
12階建 / 9階 |
| 建物構造 |
RC |
総戸数 |
- |
| 主要採光面 |
南西 |
駐車場 |
無 |
| バイク置き場 |
- |
駐輪場 |
- |
| 建物名・部屋番号 |
パークリュクス神田 902 |
ペット |
相談 |
| リフォーム履歴 |
- |
| リノベーション履歴 |
- |
| 備考 |
賃貸保証等:加入要(初回保証委託料(最低20,000円):月額賃料等の50%、2年目以降:10,000円/年)
管理形態/管理員の勤務形態:-/日勤
管理人日勤
|
| エネルギー消費性能 |
- |
| 断熱性能 |
- |
| 目安光熱費 |
- |
| バス・トイレ |
バス・トイレ別、浴室乾燥機、追焚機能、洗面所独立 |
| キッチン |
食器洗浄乾燥機、食器乾燥機、グリル |
| セキュリティー |
オートロック |
| 収納 |
- |
| 設備・サービス |
床暖房、室内洗濯機置場、フローリング、エアコン |
| TV・通信 |
ケーブルTV、CS、BS端子 |
| その他 |
宅配BOX、バルコニー、エレベーター |
| 契約期間 |
2年 |
現況 |
居住中 |
| 条件等 |
- |
入居可能時期 |
指定有り2026年6月10日 |
| 更新料 |
新賃料 1ヶ月 |
物件番号 |
1158408125 |
| 情報公開日 |
2026年3月13日 |
次回更新予定日 |
2026年5月11日 |
| ケータイ用バーコード |
- スマートフォンでこの物件を見る
- スマートフォンからもこの物件をご覧になれます。
|
※「-」と表示されている項目については、情報提供会社にご確認ください。
ここから簡単にお問い合わせをすることができます。
(SSLでの暗号化での送信を希望されるお客さまは
こちら
よりお問い合わせください)
お問い合わせを行う前に
「個人情報の取り扱いについて」を必ずお読みください。
「個人情報の取り扱いについて」に同意いただいた場合は「上記にご同意の上 確認画面へ進む」のボタンをクリックしてください。
個人情報の取り扱いについて
皆さまが送付された個人情報はアットホーム(株)のサーバを経由し、お問い合わせ先の不動産会社にメールまたはFAXにて転送されるためアットホーム(株)にも保管されます。アットホーム(株)で保管された個人情報の取り扱いについては、【こちら】をご覧ください。
また、本画面でご記入いただいた個人情報は、お問い合わせ先の不動産会社でも保管します。 お問い合わせ先の不動産会社が保管する個人情報の取り扱いについては、不動産会社に直接お問い合わせください。
東京都知事免許(3)第96482号 |
|---|
- 交通:
- 東京メトロ銀座線/青山一丁目駅 徒歩2分
- 東京都港区赤坂8丁目4-14 青山タワープレイス4F
- TEL:
- 0120-321-983
- 所属団体:
- (一社)不動産流通経営協会会員(公社)首都圏不動産公正取引協議会加盟
取引態様:仲介  - 00781577
|
- スマートフォンで
この不動産会社を見る

|
- 提携サイト等より掲載されている物件情報につきましては、不動産会社詳細情報にリンクされていないものがあります。
- 物件に関するお問合せは、物件詳細ページの「情報提供会社」に表示されている不動産会社へ直接お願いいたします。
- 間取図は、現況を優先させていただきます。
- 映像は物件の一部を撮影したものです。物件の契約にあたっての最終判断はご自身の判断に基づいて行ってください。
- 仲介手数料について

アットホームは物件情報の適正化に努めております。
内容に誤りがある場合にはこちらへご連絡ください。