東京都目黒区目黒本町1丁目(学芸大学駅)の賃貸:物件詳細
交通 所在地 |
駅徒歩 |
賃料 管理費等 |
敷金/保証金 礼金 |
間取り 面積 |
物件種目 築年月 |
|
東急東横線/学芸大学
東京都目黒区目黒本町1丁目
|
15分
|
30.5万円
15,000円
|
1ヶ月 / なし
2ヶ月
|
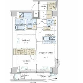
2LDK
55.24m²
|
賃貸マンション
2025年7月
|
ペット相談、常時ゴミ出し可能、24時間換気システム
|
|
間取図
|
外観
|
<
その他の画像
>
|
| 交通 | 東急東横線 学芸大学駅 徒歩15分 |
|---|
| その他の交通 | 東急目黒線 武蔵小山駅 徒歩17分 東急東横線 祐天寺駅 徒歩20分 |
| 所在地 |
東京都目黒区目黒本町1丁目
|
| 物件種目 |
賃貸マンション |
| 賃料 |
30.5万円 |
管理費等 |
15,000円 |
| 敷金 / 保証金 |
1ヶ月 / なし |
礼金 |
2ヶ月 |
| 敷引 |
- |
保証金償却 |
- |
| その他一時金 |
室内清掃費用:103,298円、エアコン清掃費:15,000円 |
保険等 |
要 |
| 維持費等 |
口座振替手数料:110円/月 |
| 間取り |
2LDK(LD11.5帖 K2.4帖 洋室5.0帖 洋室5.0帖) |
専有面積 |
55.24m² |
| 築年月 |
2025年7月
|
階建 / 階 |
5階建 / 4階 |
| 建物構造 |
RC |
総戸数 |
35戸 |
| 主要採光面 |
西 |
駐車場 |
- |
| バイク置き場 |
- |
駐輪場 |
有 無料 |
| 建物名・部屋番号 |
シダープラザ目黒本町(Cedar Plaza目黒本町) 407 |
ペット |
小型犬可 |
| アピールポイント |
学芸大学駅・武蔵小山駅徒歩圏内 ペット飼育相談可 ネット無料 オートロック 宅配BOX 浴室乾燥 |
| リフォーム履歴 |
- |
| リノベーション履歴 |
- |
| 備考 |
賃貸保証等:加入要(初回保証委託料:月額賃料等の50%、2年目以降:10,000円/年)
管理形態/管理員の勤務形態:-/巡回
管理人巡回
駐輪場1台込み(区画指定あり)
|
| エネルギー消費性能 |
- |
| 断熱性能 |
- |
| 目安光熱費 |
- |
| バス・トイレ |
TV付浴室、バス・トイレ別、浴室乾燥機、洗面所独立、洗面所、洗面台、シャワー、温水洗浄便座、トイレ |
| キッチン |
カウンターキッチン、システムキッチン、3口以上コンロ、グリル |
| セキュリティー |
オートロック、防犯カメラ |
| 収納 |
ウォークインクローゼット、クローゼット、シューズボックス |
| 設備・サービス |
全居室フローリング、フローリング、都市ガス、エアコン、暖房、冷房 |
| TV・通信 |
インターネット使用料無料、光ファイバー、ケーブルTV、CS、BS端子 |
| その他 |
バルコニー、駐輪場 |
| 契約期間 |
2年 |
現況 |
空家 |
| 条件等 |
- |
入居可能時期 |
即時 |
| 更新料 |
新賃料 1ヶ月 |
物件番号 |
1158421512 |
| 情報公開日 |
2025年7月12日 |
次回更新予定日 |
2025年11月8日 |
| ケータイ用バーコード |
- スマートフォンでこの物件を見る
- スマートフォンからもこの物件をご覧になれます。
|
※「-」と表示されている項目については、情報提供会社にご確認ください。
| 周辺施設 |
学芸大学駅(東急電鉄 東横線) |
| 距離 |
1180m |
写真を見る |
ここから簡単にお問い合わせをすることができます。
(SSLでの暗号化での送信を希望されるお客さまは
こちら
よりお問い合わせください)
お問い合わせを行う前に
「個人情報の取り扱いについて」を必ずお読みください。
「個人情報の取り扱いについて」に同意いただいた場合は「上記にご同意の上 確認画面へ進む」のボタンをクリックしてください。
個人情報の取り扱いについて
皆さまが送付された個人情報はアットホーム(株)のサーバを経由し、お問い合わせ先の不動産会社にメールまたはFAXにて転送されるためアットホーム(株)にも保管されます。アットホーム(株)で保管された個人情報の取り扱いについては、【こちら】をご覧ください。
また、本画面でご記入いただいた個人情報は、お問い合わせ先の不動産会社でも保管します。 お問い合わせ先の不動産会社が保管する個人情報の取り扱いについては、不動産会社に直接お問い合わせください。
東京都知事免許(6)第76891号 |
|---|
- 交通:
- 東京メトロ南北線/白金高輪駅 徒歩1分
- 東京都港区高輪1丁目3-19
- TEL:
- 03-6228-4882
- FAX:
- 03-6456-2581
- 所属団体:
- (公社)全日本不動産協会会員(公社)首都圏不動産公正取引協議会加盟
取引態様:仲介  - 00275548
|
- スマートフォンで
この不動産会社を見る

|
- 提携サイト等より掲載されている物件情報につきましては、不動産会社詳細情報にリンクされていないものがあります。
- 物件に関するお問合せは、物件詳細ページの「情報提供会社」に表示されている不動産会社へ直接お願いいたします。
- 間取図は、現況を優先させていただきます。
- 映像は物件の一部を撮影したものです。物件の契約にあたっての最終判断はご自身の判断に基づいて行ってください。
- 仲介手数料について

アットホームは物件情報の適正化に努めております。
内容に誤りがある場合にはこちらへご連絡ください。