東京都板橋区常盤台1丁目(中板橋駅)の賃貸:物件詳細
交通 所在地 |
駅徒歩 |
賃料 管理費等 |
敷金/保証金 礼金 |
間取り 面積 |
物件種目 築年月 |
|
東武東上線/中板橋
東京都板橋区常盤台1丁目
|
5分
|
12.1万円
10,000円
|
1ヶ月 / なし
なし
|
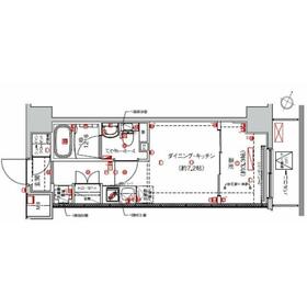
1DK
25.65m²
|
賃貸マンション
2025年10月
|
ペット相談、IT重説対応物件
|
|
間取図
|
外観
|
その他の画像
|
| 交通 | 東武東上線 中板橋駅 徒歩5分 |
|---|
| その他の交通 | 東武東上線 ときわ台駅 徒歩6分 都営三田線 板橋本町駅 徒歩17分 |
| 所在地 |
東京都板橋区常盤台1丁目
|
| 物件種目 |
賃貸マンション |
| 賃料 |
12.1万円 |
管理費等 |
10,000円 |
| 敷金 / 保証金 |
1ヶ月 / なし |
礼金 |
なし |
| 敷引 |
- |
保証金償却 |
- |
| その他一時金 |
緊急駆付けサポート:16,500円 |
保険等 |
要 |
| 維持費等 |
総合保険サポート:1,000円/月 |
クレジットカード決済 |
初期費用可 |
| 間取り |
1DK(洋3.3、DK7.2) |
専有面積 |
25.65m² |
| 築年月 |
2025年10月
|
階建 / 階 |
9階建 / 2階 |
| 建物構造 |
RC |
総戸数 |
- |
| 主要採光面 |
北東 |
駐車場 |
- |
| バイク置き場 |
- |
駐輪場 |
- |
| 建物名・部屋番号 |
SAKURA AXIS 中板橋 202 |
ペット |
相談 |
| リフォーム履歴 |
- |
| リノベーション履歴 |
- |
| 備考 |
賃貸保証等:加入要(初回:賃料等の50% 月次1% ※申込によって異なります)
管理形態/管理員の勤務形態:-/-
IT重説対応物件
室内設備は洗面化粧台・浴室乾燥機など充実した設備を備え付けています。
更新事務手数料:22,000円(税込/更新時)、短期解約違約金/2年以内1ヶ月・1年以内2ヶ月、ペット飼育相談可(飼育時敷金2ヶ月/償却1ヶ月)。解約予告:2ヶ月前。
|
| エネルギー消費性能 |
- |
| 断熱性能 |
- |
| 目安光熱費 |
- |
| バス・トイレ |
バス・トイレ別、浴室乾燥機、洗面台、シャワー、温水洗浄便座、トイレ |
| キッチン |
システムキッチン、2口コンロ、ガスコンロ可 |
| セキュリティー |
モニター付オートロック、オートロック、モニター付インターホン、ディンプルキー、防犯カメラ |
| 収納 |
収納スペース、クローゼット、シューズボックス |
| 設備・サービス |
室内洗濯機置場、洗濯機置場、都市ガス給湯、給湯、フローリング、都市ガス、エアコン、冷房 |
| TV・通信 |
インターネット対応、インターネット使用料無料、ケーブルTV、CS、BS端子 |
| その他 |
宅配BOX、バルコニー、エレベーター |
| 契約期間 |
2年 |
現況 |
空家 |
| 条件等 |
- |
入居可能時期 |
即時 |
| 仲介手数料 |
1.1ヶ月 |
|
|
| 更新料 |
新賃料 1ヶ月 |
物件番号 |
1158547719 |
| 情報公開日 |
2026年1月13日 |
次回更新予定日 |
2026年2月5日 |
| ケータイ用バーコード |
- スマートフォンでこの物件を見る
- スマートフォンからもこの物件をご覧になれます。
|
※「-」と表示されている項目については、情報提供会社にご確認ください。
| 周辺施設 |
セブンイレブン 板橋富士見町店 |
| 距離 |
256m |
写真を見る |
| 周辺施設 |
EQUiA(エキア)ときわ台 |
| 距離 |
455m |
写真を見る |
| 周辺施設 |
スーパーTANAKA 中板橋店 |
| 距離 |
489m |
写真を見る |
| 周辺施設 |
常盤台外科病院 |
| 距離 |
850m |
写真を見る |
| 周辺施設 |
ファミリーマート 常盤台北口店 |
| 距離 |
472m |
写真を見る |
| 周辺施設 |
セブンイレブン 中板店 |
| 距離 |
394m |
写真を見る |
| 周辺施設 |
よしや 常盤台店 |
| 距離 |
451m |
写真を見る |
ここから簡単にお問い合わせをすることができます。
(SSLでの暗号化での送信を希望されるお客さまは
こちら
よりお問い合わせください)
お問い合わせを行う前に
「個人情報の取り扱いについて」を必ずお読みください。
「個人情報の取り扱いについて」に同意いただいた場合は「上記にご同意の上 確認画面へ進む」のボタンをクリックしてください。
個人情報の取り扱いについて
皆さまが送付された個人情報はアットホーム(株)のサーバを経由し、お問い合わせ先の不動産会社にメールまたはFAXにて転送されるためアットホーム(株)にも保管されます。アットホーム(株)で保管された個人情報の取り扱いについては、【こちら】をご覧ください。
また、本画面でご記入いただいた個人情報は、お問い合わせ先の不動産会社でも保管します。 お問い合わせ先の不動産会社が保管する個人情報の取り扱いについては、不動産会社に直接お問い合わせください。
国土交通大臣免許(4)第7400号 |
|---|
- 交通:
- 都営三田線/板橋区役所前駅 徒歩4分
- 東京都板橋区仲宿46-12
- TEL:
- 03-6915-5666
- FAX:
- 03-6915-5676
- 所属団体:
- (公社)全日本不動産協会会員(公社)首都圏不動産公正取引協議会加盟
取引態様:仲介  - 00277079
|
- スマートフォンで
この不動産会社を見る

|
- 提携サイト等より掲載されている物件情報につきましては、不動産会社詳細情報にリンクされていないものがあります。
- 物件に関するお問合せは、物件詳細ページの「情報提供会社」に表示されている不動産会社へ直接お願いいたします。
- 間取図は、現況を優先させていただきます。
- 映像は物件の一部を撮影したものです。物件の契約にあたっての最終判断はご自身の判断に基づいて行ってください。
- 仲介手数料について

アットホームは物件情報の適正化に努めております。
内容に誤りがある場合にはこちらへご連絡ください。