東京都中野区松が丘2丁目(新井薬師前駅)の賃貸:物件詳細
交通 所在地 |
駅徒歩 |
賃料 管理費等 |
敷金/保証金 礼金 |
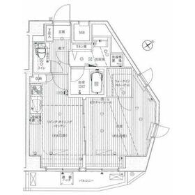
間取り 面積 |
物件種目 築年月 |
|
西武新宿線/新井薬師前
東京都中野区松が丘2丁目
|
7分
|
16万円
20,000円
|
なし / なし
なし
|
1LDK
43.19m²
|
賃貸マンション
2011年10月(築14年2ヶ月)
|
ペット相談、角部屋、二人入居可、2面採光、保証人不要
|
|
間取図
|
外観
|
<
その他の画像
>
|
| 交通 | 西武新宿線 新井薬師前駅 徒歩7分 |
|---|
| その他の交通 | JR中央線 中野駅 徒歩23分 都営大江戸線 落合南長崎駅 徒歩17分 |
| 所在地 |
東京都中野区松が丘2丁目
|
| 物件種目 |
賃貸マンション |
| 賃料 |
16万円 |
管理費等 |
20,000円 |
| 敷金 / 保証金 |
なし / なし |
礼金 |
なし |
| 敷引 |
- |
保証金償却 |
- |
| その他一時金 |
24時間サポート:16,500円、鍵交換代等:29,700円~ |
保険等 |
要 |
| 維持費等 |
- |
| 間取り |
1LDK(洋8.4、LDK8) |
専有面積 |
43.19m² |
| 築年月 |
2011年10月(築14年2ヶ月)
|
階建 / 階 |
8階建 / 6階 |
| 建物構造 |
RC |
総戸数 |
- |
| 主要採光面 |
南東 |
駐車場 |
- |
| バイク置き場 |
- |
駐輪場 |
- |
| 建物名・部屋番号 |
|
ペット |
相談 |
| アピールポイント |
収納はクロゼット・シューズボックスなど豊富なので、衣類や履き物の整理がしやすく便利です。共用部には宅配ボックスが備え付けられているため、対面で荷物を受け取る必要がなくなります。セキュリティ面は、オートロック・TVインターホンなど充実しているので安心して生活できます。室内設備は洗面化粧台・浴室乾燥機など充実した設備を備え付けています。お引っ越しのお日にちに関するご相談等は迅速にお受けいたします。高いニーズのある、駅徒歩7分の物件です。チューナーのご用意と契約のみで、BSが視聴可能です。快適な暮らしを送るためのエアコンが設置されているマンションとなっています。ワンルームとはちがった素敵なキッチンがあるお住まいです。コンロとシンクの間に隙間がなく、掃除が簡単なためキッチンを綺麗に保ちやすいシステムキッチンを備えております。住みやすい環境が嬉しい賃貸物件です。 |
| リフォーム履歴 |
- |
| リノベーション履歴 |
- |
| 備考 |
賃貸保証等:加入要(初回賃料総額の50%)
管理形態/管理員の勤務形態:-/-
セキュリティ面は、オートロック・TVインターホンなどを備え付けているので安心して暮らせます。室内設備は洗面所独立・浴室乾燥機など充実した設備を備え付けています。収納はシューズボックス・クロゼットなど豊富なので、広々と空間を利用することも可能です。不在時でも荷物を受け取れるため、時間調整の手間が省ける宅配ボックスが付いています。夏も冬もお部屋で快適に過ごすためには欠かせないエアコン付きです。家でパソコンを使う人にぜひご検討いただきたいインターネット有り物件です。ペット可物件をお探しの方に是非ご紹介したい物件です。お家を移られる日時は私たちにご相談してくださいね。こちらはマンションタイプになります。様々な場所へのアクセスがしやすくなる2駅利用可能な物件です。新しい日々を送るにふさわしい、きれいな室内です。
|
| エネルギー消費性能 |
- |
| 断熱性能 |
- |
| 目安光熱費 |
- |
| バス・トイレ |
バス・トイレ別、浴室乾燥機、洗面所独立、洗面所、洗面台、温水洗浄便座、トイレ |
| キッチン |
システムキッチン、2口コンロ、ガスコンロ可 |
| セキュリティー |
モニター付オートロック、オートロック、モニター付インターホン、防犯カメラ |
| 収納 |
ウォークインクローゼット、収納スペース、クローゼット、シューズボックス |
| 設備・サービス |
室内洗濯機置場、洗濯機置場、都市ガス給湯、給湯、フローリング、都市ガス、エアコン |
| TV・通信 |
インターネット対応、CS、BS端子 |
| その他 |
宅配BOX、バルコニー、エレベーター |
| 契約期間 |
2年 |
現況 |
空家 |
| 条件等 |
- |
入居可能時期 |
相談 |
| 更新料 |
- |
物件番号 |
1158617216 |
| 情報公開日 |
2025年10月30日 |
次回更新予定日 |
2025年11月13日 |
| ケータイ用バーコード |
- スマートフォンでこの物件を見る
- スマートフォンからもこの物件をご覧になれます。
|
※「-」と表示されている項目については、情報提供会社にご確認ください。
| 周辺施設 |
ファミリーマート 中野松が丘店 |
| 距離 |
170m |
写真を見る |
| 周辺施設 |
ローソンストア100 LS中野新井四丁目店 |
| 距離 |
501m |
写真を見る |
| 周辺施設 |
京樽 新井薬師前店 |
| 距離 |
746m |
写真を見る |
| 周辺施設 |
mini(ミニ)ピアゴ 新井5丁目店 |
| 距離 |
740m |
写真を見る |
| 周辺施設 |
名代富士そば 新井薬師店 |
| 距離 |
804m |
写真を見る |
| 周辺施設 |
株式会社福しん 新井薬師駅前店 |
| 距離 |
832m |
写真を見る |
| 周辺施設 |
ファミリーマート 新井薬師前駅南店 |
| 距離 |
843m |
写真を見る |
| 周辺施設 |
ほっともっと新井薬師店 |
| 距離 |
773m |
写真を見る |
ここから簡単にお問い合わせをすることができます。
(SSLでの暗号化での送信を希望されるお客さまは
こちら
よりお問い合わせください)
お問い合わせを行う前に
「個人情報の取り扱いについて」を必ずお読みください。
「個人情報の取り扱いについて」に同意いただいた場合は「上記にご同意の上 確認画面へ進む」のボタンをクリックしてください。
個人情報の取り扱いについて
皆さまが送付された個人情報はアットホーム(株)のサーバを経由し、お問い合わせ先の不動産会社にメールまたはFAXにて転送されるためアットホーム(株)にも保管されます。アットホーム(株)で保管された個人情報の取り扱いについては、【こちら】をご覧ください。
また、本画面でご記入いただいた個人情報は、お問い合わせ先の不動産会社でも保管します。 お問い合わせ先の不動産会社が保管する個人情報の取り扱いについては、不動産会社に直接お問い合わせください。
東京都知事免許(2)第102526号 |
|---|
- 交通:
- JR中央線/中野駅 徒歩1分
- 東京都中野区中野2丁目30-8 立川ビル2階
- TEL:
- 03-6454-1961
- FAX:
- 03-6454-1962
- 所属団体:
- (公社)東京都宅地建物取引業協会会員(公社)首都圏不動産公正取引協議会加盟
取引態様:仲介  - 00274171
|
- スマートフォンで
この不動産会社を見る

|
- 提携サイト等より掲載されている物件情報につきましては、不動産会社詳細情報にリンクされていないものがあります。
- 物件に関するお問合せは、物件詳細ページの「情報提供会社」に表示されている不動産会社へ直接お願いいたします。
- 間取図は、現況を優先させていただきます。
- 映像は物件の一部を撮影したものです。物件の契約にあたっての最終判断はご自身の判断に基づいて行ってください。
- 仲介手数料について

アットホームは物件情報の適正化に努めております。
内容に誤りがある場合にはこちらへご連絡ください。