東京都港区三田1丁目(麻布十番駅)の賃貸:物件詳細
交通 所在地 |
駅徒歩 |
賃料 管理費等 |
敷金/保証金 礼金 |
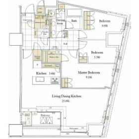
間取り 面積 |
物件種目 築年月 |
|
東京メトロ南北線/麻布十番
東京都港区三田1丁目
|
5分
|
165万円
なし
|
なし / なし
1ヶ月
|
3LDK
108.86m²
|
賃貸マンション
2025年3月(築1年1ヶ月)
|
ペット相談、フロントサービス、角部屋、高齢者相談、二人入居可、2面採光、外観タイル張り、管理人常駐、IT重説対応物件、保証人不要
|
|
間取図
|
外観
落ち着いた雰囲気の外観です
|
<
その他の画像
>
|
| 交通 | 東京メトロ南北線 麻布十番駅 徒歩5分 |
|---|
| その他の交通 | 都営大江戸線 赤羽橋駅 徒歩6分 都営三田線 芝公園駅 徒歩15分 |
| 所在地 |
東京都港区三田1丁目
|
| 物件種目 |
賃貸マンション |
| 賃料 |
165万円 |
管理費等 |
なし |
| 敷金 / 保証金 |
なし / なし |
礼金 |
1ヶ月 |
| 敷引 |
- |
保証金償却 |
- |
| その他一時金 |
消臭抗菌費:16,500円、契約書作成費:5,500円、室内清掃費用:250,000円 |
保険等 |
要 |
| 維持費等 |
24Hサポート料:1,100円/月 |
| 間取り |
3LDK(LDK29.2、洋9.1、洋6.6、洋5.5) |
専有面積 |
108.86m² |
| 築年月 |
2025年3月(築1年1ヶ月)
|
階建 / 階 |
地上14階地下2階建 / 9階 |
| 建物構造 |
RC |
総戸数 |
- |
| 主要採光面 |
|
駐車場 |
有 68,000円/月 |
| バイク置き場 |
- |
駐輪場 |
有 400円/月 |
| 建物名・部屋番号 |
三田ガーデンヒルズ |
ペット |
相談 |
| アピールポイント |
室内設備は洗面所独立・浴室乾燥機・食器洗乾燥機など充実した設備を備え付けています。宅配ボックスがあるのでテレワークをしているときに宅配業者が来たとしても、わざわざ出る必要がなくなり仕事を止める必要もありません。収納はクロゼット・シューズWICなどが備え付けられているので、衣類や日用品の収納に重宝します。セキュリティ面は、オートロック・TVインターホンなど充実しているので、防犯対策もばっちりです。防犯カメラが設置されているため犯罪への抑止力となり、防犯対策として優れています。生活を快適にする設備も充実のこの物件は月165万円です。14階建ての物件となっています。駐輪場付きの物件です。新居入居のご相談はお早目にしていただくと嬉しいです。暑い夏、寒い冬には必須のエアコンが付いています。こちらの物件はマンションです。 |
| リフォーム履歴 |
- |
| リノベーション履歴 |
- |
| 備考 |
賃貸保証等:加入要(初回 賃料等総額の100%~)
管理形態/管理員の勤務形態:-/常駐
IT重説対応物件
室内設備は床暖房・BS・CS・追い焚きなど豊富に揃っており、過ごしやすいお部屋になっております。共用部には敷地内ごみ置き場・エレベータ2基・フロントサービスなどが揃っており、とても充実しています。防犯カメラを設置しているので、トラブルが発生した時も映像を確認できる安心感があります。このお部屋は108.86㎡です。小さなお子様のいる家庭に適しているのが全居室フローリングです。角部屋なので生活騒音の心配も軽減されます。入居してからペットの飼育を始めたい方は、事前にご相談ください。システムキッチン付きで、お料理と後片付けが手早くできます。新しい日々を送るにふさわしい、きれいな室内です。
|
| エネルギー消費性能 |
- |
| 断熱性能 |
- |
| 目安光熱費 |
- |
| バス・トイレ |
バス・トイレ別、浴室乾燥機、オートバス、追焚機能、洗面所独立、洗面所、温水洗浄便座、トイレ |
| キッチン |
カウンターキッチン、システムキッチン、食器洗浄乾燥機、浄水器、ディスポーザー、3口以上コンロ、ガスコンロ可、グリル |
| セキュリティー |
モニター付オートロック、オートロック、モニター付インターホン、防犯カメラ |
| 収納 |
ウォークインクローゼット、収納スペース、トランクルーム、シューズインクローゼット、クローゼット |
| 設備・サービス |
床暖房、室内洗濯機置場、洗濯機置場、全居室フローリング、都市ガス、エアコン、暖房、冷房 |
| TV・通信 |
インターネット対応、CS、BS端子 |
| その他 |
宅配BOX、共用シアタールーム、エレベーター2基以上、共用ゲストルーム、バルコニー、駐輪場 |
| 契約期間 |
3年 |
現況 |
空家 |
| 条件等 |
定期借家 |
入居可能時期 |
相談 |
| 更新料 |
新賃料 1ヶ月 |
物件番号 |
1158709119 |
| 情報公開日 |
2026年1月13日 |
次回更新予定日 |
2026年3月23日 |
| ケータイ用バーコード |
- スマートフォンでこの物件を見る
- スマートフォンからもこの物件をご覧になれます。
|
※「-」と表示されている項目については、情報提供会社にご確認ください。
| 周辺施設 |
Muu(ムー) |
| 距離 |
1187m |
写真を見る |
| 周辺施設 |
タリーズコーヒー 住友不動産麻布十番ビル店 |
| 距離 |
548m |
写真を見る |
| 周辺施設 |
まいばすけっと 三田2丁目店 |
| 距離 |
454m |
写真を見る |
| 周辺施設 |
成城石井 東麻布店 |
| 距離 |
726m |
写真を見る |
| 周辺施設 |
ファミリーマート 三田二丁目店 |
| 距離 |
453m |
写真を見る |
| 周辺施設 |
ケーヨーデイツー 三田店 |
| 距離 |
751m |
写真を見る |
| 周辺施設 |
くすりの福太郎 東麻布店 |
| 距離 |
697m |
写真を見る |
ここから簡単にお問い合わせをすることができます。
(SSLでの暗号化での送信を希望されるお客さまは
こちら
よりお問い合わせください)
お問い合わせを行う前に
「個人情報の取り扱いについて」を必ずお読みください。
「個人情報の取り扱いについて」に同意いただいた場合は「上記にご同意の上 確認画面へ進む」のボタンをクリックしてください。
個人情報の取り扱いについて
皆さまが送付された個人情報はアットホーム(株)のサーバを経由し、お問い合わせ先の不動産会社にメールまたはFAXにて転送されるためアットホーム(株)にも保管されます。アットホーム(株)で保管された個人情報の取り扱いについては、【こちら】をご覧ください。
また、本画面でご記入いただいた個人情報は、お問い合わせ先の不動産会社でも保管します。 お問い合わせ先の不動産会社が保管する個人情報の取り扱いについては、不動産会社に直接お問い合わせください。
東京都知事免許(1)第107337号 |
|---|
- 交通:
- JR山手線/新宿駅 徒歩1分
- 東京都新宿区西新宿1丁目3-3 品川ステーションビル新宿5F
- TEL:
- 03-6258-0867
- 所属団体:
- (公社)東京都宅地建物取引業協会会員(公社)首都圏不動産公正取引協議会加盟
取引態様:仲介  - 00278932
|
- スマートフォンで
この不動産会社を見る

|
- 提携サイト等より掲載されている物件情報につきましては、不動産会社詳細情報にリンクされていないものがあります。
- 物件に関するお問合せは、物件詳細ページの「情報提供会社」に表示されている不動産会社へ直接お願いいたします。
- 間取図は、現況を優先させていただきます。
- 映像は物件の一部を撮影したものです。物件の契約にあたっての最終判断はご自身の判断に基づいて行ってください。
- 仲介手数料について

アットホームは物件情報の適正化に努めております。
内容に誤りがある場合にはこちらへご連絡ください。