神奈川県横浜市港北区新羽町(北新横浜駅)の賃貸:物件詳細
交通 所在地 |
駅徒歩 |
賃料 管理費等 |
敷金/保証金 礼金 |
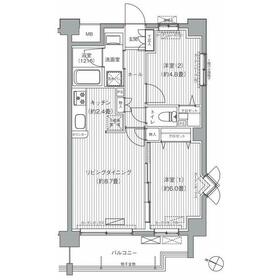
間取り 面積 |
物件種目 築年月 |
|
ブルーライン/北新横浜
神奈川県横浜市港北区新羽町
|
8分
|
14.8万円
9,000円
|
1ヶ月 / なし
2ヶ月
|
2LDK
49.36m²
|
賃貸マンション
2013年8月(築12年8ヶ月)
|
角部屋、2面採光、外観タイル張り
|
|
間取図
|
外観
|
<
その他の画像
>
|
| 交通 | ブルーライン 北新横浜駅 徒歩8分 |
|---|
| その他の交通 | ブルーライン 新横浜駅 徒歩15分 JR横浜線 小机駅 徒歩20分 |
| 所在地 |
神奈川県横浜市港北区新羽町
|
| 物件種目 |
賃貸マンション |
| 賃料 |
14.8万円 |
管理費等 |
9,000円 |
| 敷金 / 保証金 |
1ヶ月 / なし |
礼金 |
2ヶ月 |
| 敷引 |
- |
保証金償却 |
- |
| その他一時金 |
なし、鍵交換代等:22,000円~ |
保険等 |
要 |
| 維持費等 |
- |
| 間取り |
2LDK |
専有面積 |
49.36m² |
| 築年月 |
2013年8月(築12年8ヶ月)
|
階建 / 階 |
6階建 / 4階 |
| 建物構造 |
RC |
総戸数 |
- |
| 主要採光面 |
南西 |
駐車場 |
空無 |
| バイク置き場 |
有 2,200円/月 |
駐輪場 |
有 無料 |
| 建物名・部屋番号 |
ライクリヴ北新横浜 401 |
ペット |
-
|
| アピールポイント |
◆南西向きで日当たり良好! ◆鉄筋コンクリート造! ◆雨の日に嬉しい浴室乾燥機付き ◆お風呂は追い焚き機能付き ◆来客時に安心のモニタ付きオートロック! |
| リフォーム履歴 |
- |
| リノベーション履歴 |
- |
| 備考 |
賃貸保証等:加入要(保証会社DHF:初回:総賃料の40%・月々:総賃料の1%・更新時:更新料の1%・解約時:クリーニング費用の1%)
管理形態/管理員の勤務形態:-/-
現況優先
荷物を注文する時に時間を気にせずに済む宅配ボックスを共用部に備えています。収納はクロゼット・シューズボックスなど豊富なので、広々と空間を利用することも可能です。エントランスと玄関の2つのロックで守られているので安全面に優れているオートロック機能があります。室内設備は洗面化粧台・浴室乾燥機などが揃っているので、快適に過ごしやすいお部屋になります。駅から徒歩8分の物件で、電車での通勤にも便利な立地です。とてもゆとりのある環境が魅力の月14.8万円の物件。隣の生活音が気になりにくく、騒音によるストレスを減らすことができる角部屋になります。汚れを落としやすい、フローリング張りの物件です。3口コンロが付いているので、たくさん作る場合でも同時に料理を進められます。床暖房は燃料や火を使わない暖房器具ため安全に使うことができます。専有面積49.36㎡もあり使いやすい。
|
| エネルギー消費性能 |
- |
| 断熱性能 |
- |
| 目安光熱費 |
- |
| バス・トイレ |
バス・トイレ別、浴室乾燥機、追焚機能、シャワー付洗面化粧台、洗面所独立、洗面所、洗面台、シャワー、温水洗浄便座、トイレ |
| キッチン |
システムキッチン、3口以上コンロ、ガスコンロ可、グリル |
| セキュリティー |
オートロック、ディンプルキー、防犯カメラ |
| 収納 |
収納スペース、クローゼット、シューズボックス |
| 設備・サービス |
床暖房、室内洗濯機置場、洗濯機置場、都市ガス給湯、給湯、フローリング、都市ガス、エアコン、暖房 |
| TV・通信 |
インターネット対応 |
| その他 |
宅配BOX、バイク置き場、バルコニー、駐輪場、エレベーター |
| 契約期間 |
2年 |
現況 |
空家 |
| 条件等 |
- |
入居可能時期 |
相談 |
| 更新料 |
新賃料 1ヶ月 |
物件番号 |
1158768622 |
| 情報公開日 |
2026年3月3日 |
次回更新予定日 |
2026年3月17日 |
| ケータイ用バーコード |
- スマートフォンでこの物件を見る
- スマートフォンからもこの物件をご覧になれます。
|
※「-」と表示されている項目については、情報提供会社にご確認ください。
| 周辺施設 |
セブンイレブン北新横浜駅前店 |
| 距離 |
627m |
写真を見る |
ここから簡単にお問い合わせをすることができます。
(SSLでの暗号化での送信を希望されるお客さまは
こちら
よりお問い合わせください)
お問い合わせを行う前に
「個人情報の取り扱いについて」を必ずお読みください。
「個人情報の取り扱いについて」に同意いただいた場合は「上記にご同意の上 確認画面へ進む」のボタンをクリックしてください。
個人情報の取り扱いについて
皆さまが送付された個人情報はアットホーム(株)のサーバを経由し、お問い合わせ先の不動産会社にメールまたはFAXにて転送されるためアットホーム(株)にも保管されます。アットホーム(株)で保管された個人情報の取り扱いについては、【こちら】をご覧ください。
また、本画面でご記入いただいた個人情報は、お問い合わせ先の不動産会社でも保管します。 お問い合わせ先の不動産会社が保管する個人情報の取り扱いについては、不動産会社に直接お問い合わせください。
国土交通大臣免許(10)第3440号 |
|---|
- 交通:
- 東急東横線/綱島駅 徒歩1分
- 神奈川県横浜市港北区綱島東1丁目1-1 第一ビル1F
- TEL:
- 045-278-6161
- FAX:
- 045-549-6160
- 所属団体:
- (公社)神奈川県宅地建物取引業協会会員(一社)全国住宅産業協会会員(一社)全国賃貸不動産管理業協会会員(公社)首都圏不動産公正取引協議会加盟
取引態様:仲介  - 00016939
|
- スマートフォンで
この不動産会社を見る

|
- 提携サイト等より掲載されている物件情報につきましては、不動産会社詳細情報にリンクされていないものがあります。
- 物件に関するお問合せは、物件詳細ページの「情報提供会社」に表示されている不動産会社へ直接お願いいたします。
- 間取図は、現況を優先させていただきます。
- 映像は物件の一部を撮影したものです。物件の契約にあたっての最終判断はご自身の判断に基づいて行ってください。
- 仲介手数料について

アットホームは物件情報の適正化に努めております。
内容に誤りがある場合にはこちらへご連絡ください。