神奈川県横浜市西区浜松町(西横浜駅)の賃貸:物件詳細
交通 所在地 |
駅徒歩 |
賃料 管理費等 |
敷金/保証金 礼金 |
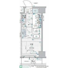
間取り 面積 |
物件種目 築年月 |
|
相鉄本線/西横浜
神奈川県横浜市西区浜松町
|
5分
|
8.5万円
10,000円
|
なし / なし
なし
|
1K
21.48m²
|
賃貸マンション
2025年5月
|
ペット相談、ルームシェア可、二人入居可、保証人不要
|
|
間取図
|
外観
|
<
その他の画像
>
|
| 交通 | 相鉄本線 西横浜駅 徒歩5分 |
|---|
| その他の交通 | 相鉄本線 平沼橋駅 徒歩12分 京急本線 戸部駅 徒歩11分 |
| 所在地 |
神奈川県横浜市西区浜松町
|
| 物件種目 |
賃貸マンション |
| 賃料 |
8.5万円 |
管理費等 |
10,000円 |
| 敷金 / 保証金 |
なし / なし |
礼金 |
なし |
| 敷引 |
- |
保証金償却 |
- |
| その他一時金 |
室内清掃費用:38,500円、消臭抗菌サービス:11,000円 |
保険等 |
不要 |
| 維持費等 |
- |
クレジットカード決済 |
初期費用可 |
| 間取り |
1K(洋室6.0帖) |
専有面積 |
21.48m² |
| 築年月 |
2025年5月
|
階建 / 階 |
10階建 / 9階 |
| 建物構造 |
RC |
総戸数 |
171戸 |
| 主要採光面 |
南東 |
駐車場 |
近有 20,000円/月 |
| バイク置き場 |
有 |
駐輪場 |
有 |
| 建物名・部屋番号 |
GENOVIA西横浜 |
ペット |
相談 |
| アピールポイント |
★タウンハウジングは周辺環境まで詳しくご案内★豊富な物件情報で楽しいお部屋探しを!横浜の賃貸物件・お部屋探しはタウンハウジング横浜店へ!皆様からのご連絡・ご来店を心よりお待ち申しております★ |
| リフォーム履歴 |
- |
| リノベーション履歴 |
- |
| 備考 |
賃貸保証等:加入要(保証会社との契約額:初回保証料:総賃料の40%~ 月額:2700円(月額保証料・保険・引落手数料・mamorocca))
管理形態/管理員の勤務形態:-/-
バルコニー:2.61m²
閲覧いただき誠にありがとうございます。 弊社では直営店120店舗以上の広い情報網と地域密着型店舗の細かいエリア情報を活かして、お客様のニーズに合うお部屋のご提案をさせていただいております。 地域ナンバー1情報量の当店へ是非一度ご来店下さい。 スタッフ一同心よりお待ち申し上げます。
|
| エネルギー消費性能 |
- |
| 断熱性能 |
- |
| 目安光熱費 |
- |
| バス・トイレ |
バス・トイレ別、浴室乾燥機、洗面所独立、シャワー、温水洗浄便座、トイレ |
| キッチン |
システムキッチン、2口コンロ、ガスコンロ付 |
| セキュリティー |
オートロック、モニター付インターホン、防犯カメラ |
| 収納 |
全居室収納、クローゼット、シューズボックス |
| 設備・サービス |
室内洗濯機置場、給湯、フローリング、都市ガス、エアコン |
| TV・通信 |
インターネット対応、インターネット使用料無料、CS、BS端子 |
| その他 |
宅配BOX、バイク置き場、バルコニー、駐輪場、エレベーター |
| 契約期間 |
2年 |
現況 |
空家 |
| 条件等 |
- |
入居可能時期 |
即時 |
| 更新料 |
新賃料 1ヶ月 |
物件番号 |
1158794012 |
| 情報公開日 |
2025年7月14日 |
次回更新予定日 |
2025年11月12日 |
| ケータイ用バーコード |
- スマートフォンでこの物件を見る
- スマートフォンからもこの物件をご覧になれます。
|
※「-」と表示されている項目については、情報提供会社にご確認ください。
| 周辺施設 |
★★肉のハナマサ |
| 距離 |
220m |
写真を見る |
| 周辺施設 |
★★まいばすけっと |
| 距離 |
150m |
写真を見る |
| 周辺施設 |
★★ローソンストア100 |
| 距離 |
270m |
写真を見る |
| 周辺施設 |
西松屋サミット横浜岡野店 |
| 距離 |
980m |
| 周辺施設 |
保土ヶ谷東口商店会 |
| 距離 |
1460m |
写真を見る |
| 周辺施設 |
中華料理 味自慢 |
| 距離 |
220m |
写真を見る |
| 周辺施設 |
さぼてんサンモール西横浜店 |
| 距離 |
570m |
写真を見る |
ここから簡単にお問い合わせをすることができます。
(SSLでの暗号化での送信を希望されるお客さまは
こちら
よりお問い合わせください)
お問い合わせを行う前に
「個人情報の取り扱いについて」を必ずお読みください。
「個人情報の取り扱いについて」に同意いただいた場合は「上記にご同意の上 確認画面へ進む」のボタンをクリックしてください。
個人情報の取り扱いについて
皆さまが送付された個人情報はアットホーム(株)のサーバを経由し、お問い合わせ先の不動産会社にメールまたはFAXにて転送されるためアットホーム(株)にも保管されます。アットホーム(株)で保管された個人情報の取り扱いについては、【こちら】をご覧ください。
また、本画面でご記入いただいた個人情報は、お問い合わせ先の不動産会社でも保管します。 お問い合わせ先の不動産会社が保管する個人情報の取り扱いについては、不動産会社に直接お問い合わせください。
国土交通大臣免許(1)第9928号 |
|---|
- 交通:
- JR京浜東北線/横浜駅 徒歩4分
- 神奈川県横浜市西区南幸2丁目6-2 ibuilding1F
- TEL:
- 045-314-4455
- FAX:
- 045-314-4456
取引態様:仲介  - 00313150
|
- スマートフォンで
この不動産会社を見る

|
- 提携サイト等より掲載されている物件情報につきましては、不動産会社詳細情報にリンクされていないものがあります。
- 物件に関するお問合せは、物件詳細ページの「情報提供会社」に表示されている不動産会社へ直接お願いいたします。
- 間取図は、現況を優先させていただきます。
- 映像は物件の一部を撮影したものです。物件の契約にあたっての最終判断はご自身の判断に基づいて行ってください。
- 仲介手数料について

アットホームは物件情報の適正化に努めております。
内容に誤りがある場合にはこちらへご連絡ください。