神奈川県横浜市港北区仲手原1丁目(妙蓮寺駅)の賃貸:物件詳細
交通 所在地 |
駅徒歩 |
賃料 管理費等 |
敷金/保証金 礼金 |
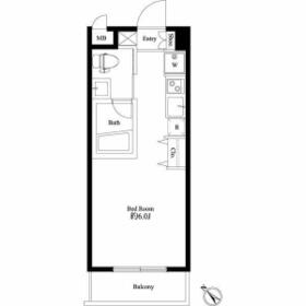
間取り 面積 |
物件種目 築年月 |
|
東急東横線/妙蓮寺
神奈川県横浜市港北区仲手原1丁目
|
6分
|
6.7万円
12,000円
|
なし / 1ヶ月
なし
|
ワンルーム
20.01m²
|
賃貸マンション
2013年10月(築12年2ヶ月)
|
ペット相談、高齢者相談、二人入居可、オール電化、IT重説対応物件
|
|
間取図
|
外観
|
<
その他の画像
>
|
| 交通 | 東急東横線 妙蓮寺駅 徒歩6分 |
|---|
| その他の交通 | 東急東横線 白楽駅 徒歩12分 |
| 所在地 |
神奈川県横浜市港北区仲手原1丁目
|
| 物件種目 |
賃貸マンション |
| 賃料 |
6.7万円 |
管理費等 |
12,000円 |
| 敷金 / 保証金 |
なし / 1ヶ月 |
礼金 |
なし |
| 敷引 |
6.7万円 |
保証金償却 |
- |
| その他一時金 |
なし |
保険等 |
要 1年 12,000円 |
| 維持費等 |
- |
| 間取り |
ワンルーム(洋7.2) |
専有面積 |
20.01m² |
| 築年月 |
2013年10月(築12年2ヶ月)
|
階建 / 階 |
3階建 / 1階 |
| 建物構造 |
鉄骨造 |
総戸数 |
- |
| 主要採光面 |
南西 |
駐車場 |
近有 22,000円/月 |
| バイク置き場 |
- |
駐輪場 |
- |
| 建物名・部屋番号 |
エフパークレジデンス妙蓮寺 |
ペット |
相談 |
| アピールポイント |
共用部には宅配ボックスを設置しているため、家で何時間も待機する必要がなくなります。知らない来訪者が玄関前まで来ることが減るので防犯対策につながるオートロック機能があります。浴室乾燥機付きの物件なので、乾燥機で浴室を乾燥させることができるのでカビの繁殖を防ぐことに役立ちます。お住まいの近くには駐車場があるので、そちらをご利用ください。エアコン付きの物件なので、快適に生活できます。扱いやすい材質が使われ抗菌性に優れているシステムキッチン付き。インターネット有り物件なので、ネットをよく使う方におすすめ。フローリング張りの物件は、自然な風合いが魅力的です。IHは調理器具と密着しているため熱が空気に伝わりずらく、キッチン周辺が暑くなるのを防げます。機能性が高く広々お使い頂けるワンルームです。 |
| リフォーム履歴 |
- |
| リノベーション履歴 |
- |
| 備考 |
賃貸保証等:加入要(エムぞう君(C) 初回保証料55%~ ※最低保証料55,000円 年間:11,000円)
管理形態/管理員の勤務形態:-/-
IT重説対応物件
お部屋探しは横浜駅徒歩5分のみらい不動産にお任せください。
お部屋探しは横浜・川崎エリアに特化した弊社にお任せください。物件の詳細やご相談は公式LINEからスタッフとやりとり可能です。お急ぎの方はお電話にてお問い合わせください。
5千円UPで敷0礼0保0プランあり。
1、2回目の更新時5%の賃料改定あり。更新料は1回のみ。保証金契約時償却。
|
| エネルギー消費性能 |
- |
| 断熱性能 |
- |
| 目安光熱費 |
- |
| バス・トイレ |
バス・トイレ別、浴室乾燥機、温水洗浄便座、トイレ |
| キッチン |
システムキッチン、IHクッキングヒーター |
| セキュリティー |
オートロック |
| 収納 |
収納スペース、クローゼット |
| 設備・サービス |
室内洗濯機置場、洗濯機置場、給湯、フローリング、エアコン |
| TV・通信 |
インターネット対応、CS、BS端子 |
| その他 |
宅配BOX、バルコニー |
| 契約期間 |
1年 |
現況 |
居住中 |
| 条件等 |
- |
入居可能時期 |
指定有り2025年11月6日 |
| 更新料 |
新賃料 1ヶ月 |
物件番号 |
1158801816 |
| 情報公開日 |
2025年10月30日 |
次回更新予定日 |
2025年11月13日 |
| ケータイ用バーコード |
- スマートフォンでこの物件を見る
- スマートフォンからもこの物件をご覧になれます。
|
※「-」と表示されている項目については、情報提供会社にご確認ください。
| 周辺施設 |
横浜市立白幡小学校 |
| 距離 |
569m |
写真を見る |
| 周辺施設 |
大口通公園 |
| 距離 |
1322m |
写真を見る |
| 周辺施設 |
ローソン 横浜西大口店 |
| 距離 |
369m |
写真を見る |
| 周辺施設 |
セブン-イレブン 横浜白幡向町店 |
| 距離 |
556m |
写真を見る |
| 周辺施設 |
セブン-イレブン 横浜六角橋店 |
| 距離 |
1159m |
写真を見る |
| 周辺施設 |
私立神奈川大学 |
| 距離 |
1933m |
写真を見る |
| 周辺施設 |
食品館あおば 六角橋店 |
| 距離 |
1299m |
写真を見る |
ここから簡単にお問い合わせをすることができます。
(SSLでの暗号化での送信を希望されるお客さまは
こちら
よりお問い合わせください)
お問い合わせを行う前に
「個人情報の取り扱いについて」を必ずお読みください。
「個人情報の取り扱いについて」に同意いただいた場合は「上記にご同意の上 確認画面へ進む」のボタンをクリックしてください。
個人情報の取り扱いについて
皆さまが送付された個人情報はアットホーム(株)のサーバを経由し、お問い合わせ先の不動産会社にメールまたはFAXにて転送されるためアットホーム(株)にも保管されます。アットホーム(株)で保管された個人情報の取り扱いについては、【こちら】をご覧ください。
また、本画面でご記入いただいた個人情報は、お問い合わせ先の不動産会社でも保管します。 お問い合わせ先の不動産会社が保管する個人情報の取り扱いについては、不動産会社に直接お問い合わせください。
神奈川県知事免許(1)第31847号 |
|---|
- 交通:
- 東急東横線/横浜駅
- 神奈川県横浜市西区北幸2丁目10-42 寺内ビル9F
- TEL:
- 045-322-2552
- FAX:
- 045-322-2553
- 所属団体:
- (公社)神奈川県宅地建物取引業協会会員(公社)首都圏不動産公正取引協議会加盟
取引態様:仲介  - 00273956
|
- スマートフォンで
この不動産会社を見る

|
- 提携サイト等より掲載されている物件情報につきましては、不動産会社詳細情報にリンクされていないものがあります。
- 物件に関するお問合せは、物件詳細ページの「情報提供会社」に表示されている不動産会社へ直接お願いいたします。
- 間取図は、現況を優先させていただきます。
- 映像は物件の一部を撮影したものです。物件の契約にあたっての最終判断はご自身の判断に基づいて行ってください。
- 仲介手数料について

アットホームは物件情報の適正化に努めております。
内容に誤りがある場合にはこちらへご連絡ください。