東京都杉並区高円寺北2丁目(高円寺駅)の賃貸:物件詳細
交通 所在地 |
駅徒歩 |
賃料 管理費等 |
敷金/保証金 礼金 |
間取り 面積 |
物件種目 築年月 |
JR中央線/高円寺
東京都杉並区高円寺北2丁目
|
10分
|
6.4万円
10,000円
|
なし / なし
なし
|
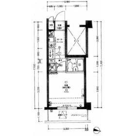
1K
18.17m²
|
賃貸マンション
1997年3月(築28年8ヶ月)
|
分譲タイプ、外観タイル張り
|
間取図
|
外観
|
<
その他の画像
>
|
|
交通 | JR中央線 高円寺駅 徒歩10分 |
---|
その他の交通 | 東京メトロ東西線 中野駅 徒歩17分 西武新宿線 野方駅 徒歩18分 |
所在地 |
東京都杉並区高円寺北2丁目
|
物件種目 |
賃貸マンション |
賃料 |
6.4万円 |
管理費等 |
10,000円 |
敷金 / 保証金 |
なし / なし |
礼金 |
なし |
敷引 |
- |
保証金償却 |
- |
その他一時金 |
なし、鍵交換代等:19,800円~ |
保険等 |
要 |
維持費等 |
- |
クレジットカード決済 |
初期費用可 |
間取り |
1K(K1.5洋室6) |
専有面積 |
18.17m² |
築年月 |
1997年3月(築28年8ヶ月)
|
階建 / 階 |
8階建 / 6階 |
建物構造 |
SRC |
総戸数 |
75戸 |
主要採光面 |
東 |
駐車場 |
近有 28,600円/月 |
バイク置き場 |
- |
駐輪場 |
有 |
建物名・部屋番号 |
エクセリア高円寺 |
ペット |
-
|
アピールポイント |
☆当店の強みをお伝えします☆
①クレジットカードの初期費用分割払いを、喜んでお受けいたします(クレジットカード以外もOK)
②他社様がネットに掲載されている物件は、全てお調べし、【好条件】でご紹介いたします
他社様で「お申込み」された物件でも、【好条件】でご紹介できる場合がございます
③「審査が不安…」「保証人がいない…」「値段交渉をして欲しい…」などなど、
どのようなご条件でも、遠慮なくご相談いただけます
④ご検討されている「エリア」「沿線」が「広範囲」「複数」でも、一度で漏れなくお探しいただけます
ポータルサイトや他社サイトで気になるお部屋がございましたらお気軽にご相談ください
お客様のご来店を心よりお待ちしております |
リフォーム履歴 |
- |
リノベーション履歴 |
- |
備考 |
賃貸保証等:加入要(初回:賃料等の50%、月額:賃料等の1%)
管理形態/管理員の勤務形態:-/-
外壁コンクリート
保険会社株式会社AIG(月額1、000円)/違約金等1年以内の解約で月額総賃料の2ヶ月分/24サポートConcierge24月額1、000円(税別)/法人契約の諸条件等相談可能(礼金1ヶ月積み増し)/外国籍のご相談可能(礼金1ヶ月・敷金2ヶ月積み増し)/クリーニング費用は退去時実費精算でございます。/駐輪場代借主負担(使用時)
|
エネルギー消費性能 |
- |
断熱性能 |
- |
目安光熱費 |
- |
バス・トイレ |
浴室乾燥機、洗面台、バス・トイレ同室、シャワー、温水洗浄便座、トイレ |
キッチン |
ガスコンロ付 |
セキュリティー |
モニター付オートロック、オートロック、モニター付インターホン、防犯カメラ |
収納 |
- |
設備・サービス |
室内洗濯機置場、給湯、フローリング、エアコン |
TV・通信 |
インターネット対応、光ファイバー |
その他 |
宅配BOX、バルコニー、駐輪場、エレベーター |
契約期間 |
2年 |
現況 |
空家 |
条件等 |
- |
入居可能時期 |
2025年10月下旬予定 |
更新料 |
- |
物件番号 |
1158995214 |
情報公開日 |
2025年8月28日 |
次回更新予定日 |
2025年11月3日 |
ケータイ用バーコード |
- スマートフォンでこの物件を見る
- スマートフォンからもこの物件をご覧になれます。
|
※「-」と表示されている項目については、情報提供会社にご確認ください。
周辺施設 |
まいばすけっと 高円寺大和陸橋 |
距離 |
226m |
写真を見る |
周辺施設 |
セブン-イレブン 中野大和町1丁目店 |
距離 |
196m |
写真を見る |
周辺施設 |
ココカラファイン 高円寺店 |
距離 |
563m |
写真を見る |
周辺施設 |
キッチンオリジン 高円寺店 |
距離 |
411m |
写真を見る |
周辺施設 |
帝京平成大学 中野キャンパス |
距離 |
884m |
写真を見る |
周辺施設 |
東京警察病院 |
距離 |
671m |
写真を見る |
周辺施設 |
高円寺駅前郵便局 |
距離 |
465m |
写真を見る |
ここから簡単にお問い合わせをすることができます。
(SSLでの暗号化での送信を希望されるお客さまは
こちら
よりお問い合わせください)
お問い合わせを行う前に
「個人情報の取り扱いについて」を必ずお読みください。
「個人情報の取り扱いについて」に同意いただいた場合は「上記にご同意の上 確認画面へ進む」のボタンをクリックしてください。
個人情報の取り扱いについて
皆さまが送付された個人情報はアットホーム(株)のサーバを経由し、お問い合わせ先の不動産会社にメールまたはFAXにて転送されるためアットホーム(株)にも保管されます。アットホーム(株)で保管された個人情報の取り扱いについては、【こちら】をご覧ください。
また、本画面でご記入いただいた個人情報は、お問い合わせ先の不動産会社でも保管します。 お問い合わせ先の不動産会社が保管する個人情報の取り扱いについては、不動産会社に直接お問い合わせください。
国土交通大臣免許(1)第10206号 |
---|
- 交通:
- JR中央線/荻窪駅 徒歩1分
- 東京都杉並区天沼3丁目3-7 荻窪駅前第24大京ビル 6階
- TEL:
- 03-5335-0262
- FAX:
- 03-5335-0263
- 所属団体:
- (公社)全日本不動産協会会員(公社)首都圏不動産公正取引協議会加盟
取引態様:仲介  - 00786316
|
- スマートフォンで
この不動産会社を見る

|
- 提携サイト等より掲載されている物件情報につきましては、不動産会社詳細情報にリンクされていないものがあります。
- 物件に関するお問合せは、物件詳細ページの「情報提供会社」に表示されている不動産会社へ直接お願いいたします。
- 間取図は、現況を優先させていただきます。
- 映像は物件の一部を撮影したものです。物件の契約にあたっての最終判断はご自身の判断に基づいて行ってください。
- 仲介手数料について

アットホームは物件情報の適正化に努めております。
内容に誤りがある場合にはこちらへご連絡ください。