東京都豊島区西池袋4丁目(池袋駅)の賃貸:物件詳細
交通 所在地 |
駅徒歩 |
賃料 管理費等 |
敷金/保証金 礼金 |
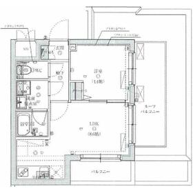
間取り 面積 |
物件種目 築年月 |
|
JR山手線/池袋
東京都豊島区西池袋4丁目
|
10分
|
15.8万円
20,000円
|
1ヶ月 / なし
1ヶ月
|
1LDK
30.93m²
|
賃貸マンション
2021年12月(築4年4ヶ月)
|
ペット相談、最上階、IT重説対応物件
|
|
間取図
|
外観
|
その他の画像
|
| 交通 | JR山手線 池袋駅 徒歩10分 |
|---|
| その他の交通 | 西武池袋線 椎名町駅 徒歩9分 東京メトロ有楽町線 要町駅 徒歩11分 |
| 所在地 |
東京都豊島区西池袋4丁目
|
| 物件種目 |
賃貸マンション |
| 賃料 |
15.8万円 |
管理費等 |
20,000円 |
| 敷金 / 保証金 |
1ヶ月 / なし |
礼金 |
1ヶ月 |
| 敷引 |
- |
保証金償却 |
- |
| その他一時金 |
駆けつけ賃貸365:19,800円 |
保険等 |
不要 |
| 維持費等 |
- |
クレジットカード決済 |
初期費用可 |
| 間取り |
1LDK(LDK8.6、洋4.4) |
専有面積 |
30.93m² |
| 築年月 |
2021年12月(築4年4ヶ月)
|
階建 / 階 |
5階建 / 5階 |
| 建物構造 |
RC |
総戸数 |
- |
| 主要採光面 |
南西 |
駐車場 |
- |
| バイク置き場 |
無 |
駐輪場 |
無 |
| 建物名・部屋番号 |
ハーモニーレジデンス池袋ウエスト 507 |
ペット |
相談 |
| リフォーム履歴 |
- |
| リノベーション履歴 |
- |
| 備考 |
賃貸保証等:加入要(初回保証料:賃料等の60%から、月額:1%、年間:10800円)
管理形態/管理員の勤務形態:-/-
IT重説対応物件
西池袋四丁目商店会まで徒歩6分と気軽に行けるのがポイント。豊島区エリアや山手線池袋付近でお部屋をお探しの方は、是非当社へお越し下さい。当社でなら、きっと希望にマッチしたお部屋が見つかります。
ペット飼育相談可(小型犬・猫1匹まで、敷金1ヶ月追加・償却)。定期借家3年契約(再契約相談可能)。周辺に駅が2つあるので電車での移動が便利です。利便性の高い暮らしをするなら豊島区でいかがでしょうか。賃貸住宅情報をお探しの際には、ぜひお気軽に当社までご連絡下さい。しっかりとサポート致します。
|
| エネルギー消費性能 |
- |
| 断熱性能 |
- |
| 目安光熱費 |
- |
| バス・トイレ |
バス・トイレ別、温水洗浄便座、トイレ |
| キッチン |
システムキッチン、2口コンロ、ガスコンロ可 |
| セキュリティー |
- |
| 収納 |
収納スペース、クローゼット、シューズボックス |
| 設備・サービス |
室内洗濯機置場、洗濯機置場、プロパンガス、エアコン |
| TV・通信 |
- |
| その他 |
宅配BOX、ルーフバルコニー、バルコニー、エレベーター |
| 契約期間 |
3年 |
現況 |
空家 |
| 条件等 |
定期借家 |
入居可能時期 |
即時 |
| 仲介手数料 |
1.1ヶ月 |
|
|
| 更新料 |
- |
物件番号 |
1159179522 |
| 情報公開日 |
2026年3月3日 |
次回更新予定日 |
2026年3月17日 |
| ケータイ用バーコード |
- スマートフォンでこの物件を見る
- スマートフォンからもこの物件をご覧になれます。
|
※「-」と表示されている項目については、情報提供会社にご確認ください。
| 周辺施設 |
セブンイレブン 西池袋3丁目店 |
| 距離 |
214m |
写真を見る |
| 周辺施設 |
まいばすけっと 西池袋2丁目店 |
| 距離 |
175m |
写真を見る |
| 周辺施設 |
ファミリーマート 西池袋四丁目店 |
| 距離 |
339m |
写真を見る |
| 周辺施設 |
東武ストア 西池袋店 |
| 距離 |
370m |
写真を見る |
ここから簡単にお問い合わせをすることができます。
(SSLでの暗号化での送信を希望されるお客さまは
こちら
よりお問い合わせください)
お問い合わせを行う前に
「個人情報の取り扱いについて」を必ずお読みください。
「個人情報の取り扱いについて」に同意いただいた場合は「上記にご同意の上 確認画面へ進む」のボタンをクリックしてください。
個人情報の取り扱いについて
皆さまが送付された個人情報はアットホーム(株)のサーバを経由し、お問い合わせ先の不動産会社にメールまたはFAXにて転送されるためアットホーム(株)にも保管されます。アットホーム(株)で保管された個人情報の取り扱いについては、【こちら】をご覧ください。
また、本画面でご記入いただいた個人情報は、お問い合わせ先の不動産会社でも保管します。 お問い合わせ先の不動産会社が保管する個人情報の取り扱いについては、不動産会社に直接お問い合わせください。
国土交通大臣免許(4)第7400号 |
|---|
- 交通:
- JR埼京線/板橋駅 徒歩1分
- 東京都板橋区板橋1丁目20-8 COZYPORT1階
- TEL:
- 03-5943-3555
- FAX:
- 03-5943-3444
- 所属団体:
- (公社)全日本不動産協会会員(公社)首都圏不動産公正取引協議会加盟
取引態様:仲介  - 00511466
|
- スマートフォンで
この不動産会社を見る

|
- 提携サイト等より掲載されている物件情報につきましては、不動産会社詳細情報にリンクされていないものがあります。
- 物件に関するお問合せは、物件詳細ページの「情報提供会社」に表示されている不動産会社へ直接お願いいたします。
- 間取図は、現況を優先させていただきます。
- 映像は物件の一部を撮影したものです。物件の契約にあたっての最終判断はご自身の判断に基づいて行ってください。
- 仲介手数料について

アットホームは物件情報の適正化に努めております。
内容に誤りがある場合にはこちらへご連絡ください。