東京都目黒区青葉台3丁目(渋谷駅)の賃貸:物件詳細
交通 所在地 |
駅徒歩 |
賃料 管理費等 |
敷金/保証金 礼金 |
間取り 面積 |
物件種目 築年月 |
|
JR山手線/渋谷
東京都目黒区青葉台3丁目
|
11分
|
24万円
10,000円
|
1ヶ月 / なし
1ヶ月
|
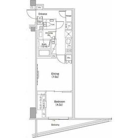
1DK
37.79m²
|
賃貸マンション
2022年12月(築3年)
|
ペット相談、楽器相談、常時ゴミ出し可能、高齢者相談、二人入居可、24時間換気システム、IT重説対応物件
|
|
間取図
|
外観
|
<
その他の画像
>
|
| 交通 | JR山手線 渋谷駅 徒歩11分 |
|---|
| その他の交通 | 京王井の頭線 神泉駅 徒歩6分 東急田園都市線 池尻大橋駅 徒歩10分 |
| 所在地 |
東京都目黒区青葉台3丁目
|
| 物件種目 |
賃貸マンション |
| 賃料 |
24万円 |
管理費等 |
10,000円 |
| 敷金 / 保証金 |
1ヶ月 / なし |
礼金 |
1ヶ月 |
| 敷引 |
- |
保証金償却 |
- |
| その他一時金 |
駆けつけサポート24:16,500円、鍵交換代等:33,000円~ |
保険等 |
要 2年 20,000円 |
| 維持費等 |
- |
クレジットカード決済 |
初期費用可 |
| 間取り |
1DK(D7、洋4.3) |
専有面積 |
37.79m² |
| 築年月 |
2022年12月(築3年)
|
階建 / 階 |
11階建 / 4階 |
| 建物構造 |
鉄骨造 |
総戸数 |
- |
| 主要採光面 |
北東 |
駐車場 |
- |
| バイク置き場 |
- |
駐輪場 |
- |
| 建物名・部屋番号 |
ザ・パークハビオ渋谷クロス |
ペット |
相談 |
| アピールポイント |
セキュリティ面は、オートロック・TVインターホンなど充実しているので安心して生活できます。室内設備は洗面所独立・浴室乾燥機など大変充実しております。収納はシューズボックス・クロゼットなどが備え付けられているので、衣類や日用品の収納に重宝します。共用部には宅配ボックス・ゴミ出し24時間OKなどが揃っております。同時に料理ができるので忙しい朝でもサッと料理ができる2口コンロを備え付けております。専有面積が37.79平米ありますので、広さは心配なし。お使いいただける駅は2駅あり、行き先に応じて使い分けができます。地上11階建ての物件でございます。充実の設備と綺麗な室内を兼ね備えた、令和4年築の物件です。令和7年10月の入居期日指定ですので、急ぎご確認ください。バルコニーをご活用いただけます。 |
| リフォーム履歴 |
- |
| リノベーション履歴 |
- |
| 備考 |
賃貸保証等:加入要(日本セーフティー [保証会社]加入要[保証会社名]その他[保証会社利用料]日本セーフティー 初年度保証料:賃料等合計額の50%(最低保証料2万円)2年目以降:1年毎1万円)
管理形態/管理員の勤務形態:-/日勤
IT重説対応物件、管理人日勤
★同タイプ・別階の内観写真を掲載している場合があります。図面と現況が異なる場合は現況を優先いたします。
室内設備は浴室乾燥機・洗面所独立など充実した設備を備え付けています。セキュリティ面は、TVインターホン・オートロックなど充実しているので、防犯対策もばっちりです。共用部にはゴミ出し24時間OK・宅配ボックスなどが揃っており、とても充実しています。収納はシューズボックス・ウォークインクロゼットなど豊富なので、衣類や履き物の整理がしやすく便利です。駐輪場付きのマンションです。11階建ての建物で地域にマッチしたマンション。楽器の相談にも応じます。お気軽にご相談ください。新しいのでこだわりの多い方にもおすすめの築浅物件です。バルコニー付きのマンションで、用途に合わせて使用できおすすめです。周辺に駅が2つあるので電車での移動が便利です。住みやすい環境が嬉しい賃貸物件です。
|
| エネルギー消費性能 |
- |
| 断熱性能 |
- |
| 目安光熱費 |
- |
| バス・トイレ |
バス・トイレ別、浴室乾燥機、追焚機能、洗面所独立、洗面所、シャワー、温水洗浄便座、トイレ |
| キッチン |
システムキッチン、2口コンロ、ガスコンロ可 |
| セキュリティー |
モニター付オートロック、オートロック、モニター付インターホン、防犯カメラ |
| 収納 |
ウォークインクローゼット、収納スペース、クローゼット、シューズボックス |
| 設備・サービス |
全居室エアコン、エアコン2台以上、室内洗濯機置場、洗濯機置場、全居室フローリング、フローリング、都市ガス、エアコン、冷房 |
| TV・通信 |
インターネット対応、インターネット使用料無料、光ファイバー、CS、BS端子 |
| その他 |
宅配BOX、バルコニー、エレベーター |
| 契約期間 |
2年 |
現況 |
居住中 |
| 条件等 |
- |
入居可能時期 |
相談 |
| 更新料 |
新賃料 1ヶ月 |
物件番号 |
1159387416 |
| 情報公開日 |
2025年10月31日 |
次回更新予定日 |
2025年11月15日 |
| ケータイ用バーコード |
- スマートフォンでこの物件を見る
- スマートフォンからもこの物件をご覧になれます。
|
※「-」と表示されている項目については、情報提供会社にご確認ください。
| 周辺施設 |
ライフ 目黒大橋店 |
| 距離 |
337m |
写真を見る |
| 周辺施設 |
ココカラファイン 目黒大橋店 |
| 距離 |
302m |
写真を見る |
| 周辺施設 |
渋谷桜丘郵便局 |
| 距離 |
1128m |
写真を見る |
ここから簡単にお問い合わせをすることができます。
(SSLでの暗号化での送信を希望されるお客さまは
こちら
よりお問い合わせください)
お問い合わせを行う前に
「個人情報の取り扱いについて」を必ずお読みください。
「個人情報の取り扱いについて」に同意いただいた場合は「上記にご同意の上 確認画面へ進む」のボタンをクリックしてください。
個人情報の取り扱いについて
皆さまが送付された個人情報はアットホーム(株)のサーバを経由し、お問い合わせ先の不動産会社にメールまたはFAXにて転送されるためアットホーム(株)にも保管されます。アットホーム(株)で保管された個人情報の取り扱いについては、【こちら】をご覧ください。
また、本画面でご記入いただいた個人情報は、お問い合わせ先の不動産会社でも保管します。 お問い合わせ先の不動産会社が保管する個人情報の取り扱いについては、不動産会社に直接お問い合わせください。
東京都知事免許(1)第109763号 |
|---|
- 交通:
- 東京メトロ有楽町線/銀座一丁目駅 徒歩3分
- 東京都中央区銀座1丁目5-1 Holon GinzaⅡ
- TEL:
- 03-5962-8933
- FAX:
- 03-5962-8933
- 所属団体:
- (公社)東京都宅地建物取引業協会会員(公社)首都圏不動産公正取引協議会加盟
取引態様:仲介  - 00275939
|
- スマートフォンで
この不動産会社を見る

|
- 提携サイト等より掲載されている物件情報につきましては、不動産会社詳細情報にリンクされていないものがあります。
- 物件に関するお問合せは、物件詳細ページの「情報提供会社」に表示されている不動産会社へ直接お願いいたします。
- 間取図は、現況を優先させていただきます。
- 映像は物件の一部を撮影したものです。物件の契約にあたっての最終判断はご自身の判断に基づいて行ってください。
- 仲介手数料について

アットホームは物件情報の適正化に努めております。
内容に誤りがある場合にはこちらへご連絡ください。