神奈川県横浜市鶴見区生麦4丁目(花月総持寺駅)の賃貸:物件詳細
交通 所在地 |
駅徒歩 |
賃料 管理費等 |
敷金/保証金 礼金 |
間取り 面積 |
物件種目 築年月 |
|
京急本線/花月総持寺
神奈川県横浜市鶴見区生麦4丁目
|
5分
|
7.1万円
10,000円
|
1ヶ月 / なし
1ヶ月
|
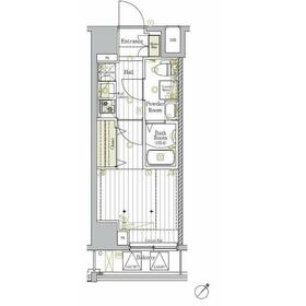
1K
20.58m²
|
賃貸マンション
2020年2月(築5年10ヶ月)
|
ペット相談、分譲タイプ、常時ゴミ出し可能、ルームシェア可、二人入居可、24時間換気システム、外観タイル張り、保証人不要
|
|
間取図
|
外観
|
<
その他の画像
>
|
| 交通 | 京急本線 花月総持寺駅 徒歩5分 |
|---|
| その他の交通 | JR鶴見線 国道駅 徒歩7分 京急本線 生麦駅 徒歩10分 |
| 所在地 |
神奈川県横浜市鶴見区生麦4丁目
|
| 物件種目 |
賃貸マンション |
| 賃料 |
7.1万円 |
管理費等 |
10,000円 |
| 敷金 / 保証金 |
1ヶ月 / なし |
礼金 |
1ヶ月 |
| 敷引 |
- |
保証金償却 |
- |
| その他一時金 |
文書作成代:5,500円、24時間サポート:16,500円、鍵交換代等:27,500円~ |
保険等 |
要 2年 20,000円 |
| 維持費等 |
- |
クレジットカード決済 |
初期費用可 |
| 間取り |
1K |
専有面積 |
20.58m² |
| 築年月 |
2020年2月(築5年10ヶ月)
|
階建 / 階 |
9階建 / 7階 |
| 建物構造 |
RC |
総戸数 |
42戸 |
| 主要採光面 |
南東 |
駐車場 |
近有 20,000円/月 |
| バイク置き場 |
- |
駐輪場 |
有 |
| 建物名・部屋番号 |
リライア横濱生麦 |
ペット |
相談 |
| アピールポイント |
当社では他社様が掲載しているお部屋もまとめてご紹介できます。
気になるお部屋がございましたら電話又はメールにて連絡下さい。入居審査・時期やご予算含め、何でもお気軽にご相談にお越しくださいませ。 |
| リフォーム履歴 |
- |
| リノベーション履歴 |
- |
| 備考 |
賃貸保証等:加入要(初回総賃料の40%、年間保証料10,000円)
管理形態/管理員の勤務形態:-/巡回
バルコニー:2.58m²
管理人巡回
当社では他社様が掲載しているお部屋もまとめてご紹介できます。
気になるお部屋がございましたら電話又はメールにて連絡下さい。入居審査・時期やご予算含め、何でもお気軽にご相談にお越しくださいませ。
|
| エネルギー消費性能 |
- |
| 断熱性能 |
- |
| 目安光熱費 |
- |
| バス・トイレ |
バス・トイレ別、浴室乾燥機、シャワー付洗面化粧台、洗面所独立、シャワー、温水洗浄便座、トイレ |
| キッチン |
システムキッチン、2口コンロ、ガスコンロ付 |
| セキュリティー |
モニター付オートロック、オートロック、モニター付インターホン、ディンプルキー、ダブルロックドア、防犯カメラ |
| 収納 |
全居室収納、クローゼット、シューズボックス |
| 設備・サービス |
室内洗濯機置場、全居室フローリング、フローリング、都市ガス、エアコン、人感センサー付照明 |
| TV・通信 |
インターネット対応、インターネット使用料無料、光ファイバー、CS、BS端子 |
| その他 |
宅配BOX、バルコニー、駐輪場、エレベーター |
| 契約期間 |
2年 |
現況 |
居住中 |
| 条件等 |
- |
入居可能時期 |
相談 |
| 更新料 |
新賃料 1ヶ月 |
物件番号 |
1159927515 |
| 情報公開日 |
2025年11月1日 |
次回更新予定日 |
2025年11月15日 |
| ケータイ用バーコード |
- スマートフォンでこの物件を見る
- スマートフォンからもこの物件をご覧になれます。
|
※「-」と表示されている項目については、情報提供会社にご確認ください。
| 周辺施設 |
CIAL鶴見 |
| 距離 |
1360m |
写真を見る |
| 周辺施設 |
ミニストップ花月園店 |
| 距離 |
280m |
写真を見る |
| 周辺施設 |
川崎市立京町小学校 |
| 距離 |
3130m |
写真を見る |
| 周辺施設 |
Olympic鶴見中央店 |
| 距離 |
1120m |
写真を見る |
| 周辺施設 |
キッチンオリジン生麦店 |
| 距離 |
950m |
写真を見る |
| 周辺施設 |
横浜生麦郵便局 |
| 距離 |
420m |
写真を見る |
| 周辺施設 |
鶴見税務署 |
| 距離 |
1260m |
写真を見る |
| 周辺施設 |
クリエイトエス・ディー鶴見生麦店 |
| 距離 |
670m |
写真を見る |
ここから簡単にお問い合わせをすることができます。
(SSLでの暗号化での送信を希望されるお客さまは
こちら
よりお問い合わせください)
お問い合わせを行う前に
「個人情報の取り扱いについて」を必ずお読みください。
「個人情報の取り扱いについて」に同意いただいた場合は「上記にご同意の上 確認画面へ進む」のボタンをクリックしてください。
個人情報の取り扱いについて
皆さまが送付された個人情報はアットホーム(株)のサーバを経由し、お問い合わせ先の不動産会社にメールまたはFAXにて転送されるためアットホーム(株)にも保管されます。アットホーム(株)で保管された個人情報の取り扱いについては、【こちら】をご覧ください。
また、本画面でご記入いただいた個人情報は、お問い合わせ先の不動産会社でも保管します。 お問い合わせ先の不動産会社が保管する個人情報の取り扱いについては、不動産会社に直接お問い合わせください。
神奈川県知事免許(1)第32144号 |
|---|
- 交通:
- JR京浜東北線/川崎駅 徒歩5分
- 神奈川県川崎市幸区大宮町15-4 松下ビル3階
- TEL:
- 044-201-8046
- FAX:
- 044-201-8047
- 所属団体:
- (公社)全日本不動産協会会員(公社)首都圏不動産公正取引協議会加盟
取引態様:仲介  - 00275603
|
- スマートフォンで
この不動産会社を見る

|
- 提携サイト等より掲載されている物件情報につきましては、不動産会社詳細情報にリンクされていないものがあります。
- 物件に関するお問合せは、物件詳細ページの「情報提供会社」に表示されている不動産会社へ直接お願いいたします。
- 間取図は、現況を優先させていただきます。
- 映像は物件の一部を撮影したものです。物件の契約にあたっての最終判断はご自身の判断に基づいて行ってください。
- 仲介手数料について

アットホームは物件情報の適正化に努めております。
内容に誤りがある場合にはこちらへご連絡ください。