不動産 賃貸 マンション等の住宅情報:埼玉住まい情報


東京都板橋区清水町(板橋本町駅)の賃貸:物件詳細

  • 物件詳細
  • 情報の見方
  • 印刷用画面
交通
所在地
駅徒歩 賃料
管理費等
敷金/保証金
礼金
間取り
面積
物件種目
築年月

都営三田線/板橋本町

東京都板橋区清水町

5分

10.7万円

15,000円

なし / なし

なし

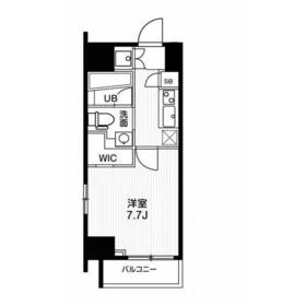
1K

25.53m²

賃貸マンション

2016年1月(築10年3ヶ月)

おすすめPOINTペット相談、角部屋、保証人不要

おすすめコメント  スタッフ: 平瀬 陽大

【”最短5秒”でお返事!】【診断×提案】 『賃貸物件は“1点もの” それだけに【業者選び】がとても大切です! 物件の強みも弱点も正直に、私達は無理な提案をしません! 焦らず納得できるお部屋探しを!!』

間取図

間取図

外観

外観

<
その他の画像
  • リビング
  • キッチン
  • バス/シャワー
  • 玄関
  • 収納
  • トイレ
  • 洗面
  • その他
  • 設備
  • 室内
  • エントランス
  • 役所
  • 役所
>
    • とりあえず保存
    • お問い合わせ
    交通

    都営三田線 板橋本町駅 徒歩5分

    その他の交通

    都営三田線 本蓮沼駅 徒歩8分

    JR埼京線 十条駅 徒歩23分

    所在地 東京都板橋区清水町
    物件種目 賃貸マンション
    賃料 10.7万円 管理費等 15,000円
    敷金 / 保証金 なし / なし 礼金 なし
    敷引 保証金償却
    その他一時金 Goodプレミアムα(24Hサポートのみ):16,500円、Goodプレミアムα登録料:3,300円、鍵交換代等:24,200円~ 保険等 不要
    維持費等
    間取り 1K(洋7.7) 専有面積 25.53m²
    築年月 2016年1月(築10年3ヶ月) 階建 / 階 11階建 / 4階
    建物構造 RC 総戸数
    主要採光面 南東 駐車場
    バイク置き場 駐輪場
    建物名・部屋番号 N-Stage板橋本町アジールコート ペット 相談
    アピールポイント ◆シンクロの宣言◆ 
    1.望まない仲介料以外の費用を直接請求いたしません。
     ※24時間サポート費、除菌消臭代、事務手数料…等 
    2.市場の物件は出し惜しみいたしません。
     ※店舗から近い物件だけの紹介や、自社物件のゴリ押し…等 
    3.他社様の広告物件も、空いていれば同条件以上でご紹介できます。
     ※セカンドオピニオンとしてご活用を 
    4.水曜日も営業中です。
     ※年末年始、特別休暇除く 
    5.内見は車にてご案内しております。
     ※電車や徒歩でも可 
    6.初期費用分割払い可能です。
     ※審査あり、クレカ払い可


     ■”最短5秒”でお返事します!!■ 
    【プロ賃貸師×診断×提案】
    「 賃貸物件は“1点もの”。
     それだけに物件検索と等しく【業者選び】がとても大切です!
     物件の強みも弱点も正直に、シンクロは無理なご提案をいたしません。
     焦らず納得できる選択をご一緒に!
     『空室確認はおヘヤ探しの第一歩!』」
    リフォーム履歴
    リノベーション履歴
    備考
    賃貸保証等:利用可(契約時:月額総賃料の50%~要。※保証会社により費用は異なります。)
    管理形態/管理員の勤務形態:-/-
    ★シンクロから★
    『 一度お気軽に…』
     「申込や内見をご検討されてはいかがでしょうか?」
     「この物件をきっかけに、本格的にお探しになりませんか?」
      ↓↓
    『 シンクロでは…』
     「お客様のご希望をお聞きし、焦らず丁寧なご提案を心がけております」
      ↓↓
    『 初回のお客様は…』
     ◯ ご来店.オンラインからお願いしております
     × 問合せ物件の無条件内見、現地集合は行っておりません 
      ↓↓
    『 その理由が…』
     1. お客様と貸主様、双方の条件をきちんと確認.調整を重視するため
     2. 物件は「先着順」の1点もの、先に申込が入るとご紹介できないため
      ↓↓
    『 お部屋探しの流れは…』
     1. ご相談 :ご来店.オンラインでヒアリング
     2. 条件整理:状況と条件を整理
     2. 情報確認:最新情報・未公開・洗い出しで情報をチェック
     3. 内見  :空室ならその場で内見
     4. 申込  :気に入ればその場でお申込みも可能
      ↓↓↓
    焦らず納得できるご選択のため、「お問合せはお部屋探しの第一歩!」です!お気軽にご予約下さい!
    エネルギー消費性能
    断熱性能
    目安光熱費
    バス・トイレ バス・トイレ別、浴室乾燥機、洗面所独立、洗面所、洗面台、温水洗浄便座、トイレ
    キッチン システムキッチン、2口コンロ、ガスコンロ可
    セキュリティー モニター付オートロック、オートロック、モニター付インターホン、防犯カメラ
    収納 ウォークインクローゼット、収納スペース、シューズインクローゼット、クローゼット、シューズボックス
    設備・サービス 室内洗濯機置場、洗濯機置場、フローリング、都市ガス、エアコン
    TV・通信 インターネット対応
    その他 宅配BOX、エレベーター
    契約期間 2年 現況 居住中
    条件等 入居可能時期 相談
    仲介手数料 0.55ヶ月    
    更新料 107,000円 物件番号 1160135322
    情報公開日 2026年3月4日 次回更新予定日 2026年3月27日
    ケータイ用バーコード

    QRコード

    スマートフォンでこの物件を見る
    スマートフォンからもこの物件をご覧になれます。
    ※「-」と表示されている項目については、情報提供会社にご確認ください。

    この物件の周辺情報

    周辺施設 北区役所
    距離 3292m
    周辺施設 板橋区役所
    距離 1544m

    クイックお問い合わせ

    ここから簡単にお問い合わせをすることができます。
    (SSLでの暗号化での送信を希望されるお客さまは こちら よりお問い合わせください)

    お問い合わせ内容(必須)
    お名前(必須) 姓  名 
    メールアドレス(必須)
    ※携帯電話のメールアドレスをご入力される方はこちらをご確認ください
    電話番号(必須)
    - -

    ※入力いただいた電話番号へSMSまたは音声でパスワードをご連絡します。

    携帯電話の番号をご入力の方へ

    携帯電話の番号をご入力の方へ
    確認画面にて送信ボタンをクリックするとSMSが携帯電話に届きます。
    そのSMSに記載のパスワード(認証番号)を入力し、お問い合わせを完了してください。
    尚、SMSの送信者番号は 0005 202 760 となります。
    これはアットホームの固定番号です。

    備考欄 希望条件、物件案内希望日、質問などがございましたらご記入ください。
    お問い合わせを行う前に「個人情報の取り扱いについて」を必ずお読みください。
    「個人情報の取り扱いについて」に同意いただいた場合は「上記にご同意の上 確認画面へ進む」のボタンをクリックしてください。

    個人情報の取り扱いについて

    皆さまが送付された個人情報はアットホーム(株)のサーバを経由し、お問い合わせ先の不動産会社にメールまたはFAXにて転送されるためアットホーム(株)にも保管されます。アットホーム(株)で保管された個人情報の取り扱いについては、【こちら】をご覧ください。
    また、本画面でご記入いただいた個人情報は、お問い合わせ先の不動産会社でも保管します。 お問い合わせ先の不動産会社が保管する個人情報の取り扱いについては、不動産会社に直接お問い合わせください。

    情報提供会社

    情報提供会社

    シンクロ(株)

    東京都知事免許(1)第109538号

    交通:
    JR山手線/池袋駅 徒歩5分
    東京都豊島区南池袋2丁目10-5 IMB南池袋ビル201号室
    TEL:
    03-5985-4345
    FAX:
    03-5985-4346
    所属団体:
    (公社)全日本不動産協会会員
    (公社)首都圏不動産公正取引協議会加盟

    取引態様:仲介

    • 会社情報
    • 00275624
    スマートフォンで
    この不動産会社を見る
    QRコード
    • とりあえず保存
    • お問い合わせ
    • 提携サイト等より掲載されている物件情報につきましては、不動産会社詳細情報にリンクされていないものがあります。
    • 物件に関するお問合せは、物件詳細ページの「情報提供会社」に表示されている不動産会社へ直接お願いいたします。
    • 間取図は、現況を優先させていただきます。
    • 映像は物件の一部を撮影したものです。物件の契約にあたっての最終判断はご自身の判断に基づいて行ってください。
    • 仲介手数料について仲介手数料

    アットホームは物件情報の適正化に努めております。 内容に誤りがある場合にはこちらへご連絡ください。

    【埼玉住まい情報】では、日本全国の物件から賃貸マンションや賃貸アパート・賃貸一戸建て等の賃貸住宅情報、新築マンション・分譲マンションや中古マンション等の売買マンション情報、新築一戸建てや中古一戸建てなどの戸建住宅、 土地など、総合的な不動産住宅情報検索サービスを提供致します。
    【埼玉住まい情報】から、選りすぐりの不動産物件を探してみましょう。

    【免責事項】
    このコーナーの運営はアットホーム株式会社(https://www.athome.co.jp/)が行っています。
    このコーナーに掲載している物件情報は、「アットホーム不動産情報ネットワーク」に加盟する不動産会社等(情報提供元)から提供されています。信頼性の高い情報提供が行えるよう、最大限の努力をしておりますが、その内容を保証するものではありません。 利用者のみなさまと各情報提供元との取引に起因する損害および情報が掲載されたことに起因する損害等については、株式会社イーシティ埼玉、およびアットホームは一切責任を負いません。
    各物件情報の内容や画像等はすべて現況を優先させていただきます。
    お取引等(お取引の準備、資金調達等を含みます)の際には、内容や契約条件等について、各情報提供元より十分な説明を受け、ご自身でご確認の上、判断してください。
    このコーナーへの物件情報のご掲載、その他不動産業務ソリューション等についての不動産会社様のお問合せはこちらからお願いいたします。

    物件画像: