兵庫県神戸市兵庫区船大工町(兵庫駅)の賃貸:物件詳細
交通 所在地 |
駅徒歩 |
賃料 管理費等 |
敷金/保証金 礼金 |
間取り 面積 |
物件種目 築年月 |
|
JR山陽本線/兵庫
兵庫県神戸市兵庫区船大工町
|
14分
|
6.2万円
9,800円
|
なし / なし
1ヶ月
|
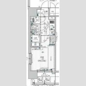
1K
22.72m²
|
賃貸マンション
2021年11月(築4年7ヶ月)
|
ペット相談、分譲タイプ、角部屋、高齢者相談、2面採光、24時間換気システム、外観タイル張り、IT重説対応物件
|
|
間取図
|
外観
|
<
その他の画像
>
|
| 交通 | JR山陽本線 兵庫駅 徒歩14分 |
|---|
| その他の交通 | 地下鉄海岸線 中央市場前駅 徒歩1分 神戸高速東西線 新開地駅 徒歩19分 |
| 所在地 |
兵庫県神戸市兵庫区船大工町
|
| 物件種目 |
賃貸マンション |
| 賃料 |
6.2万円 |
管理費等 |
9,800円 |
| 敷金 / 保証金 |
なし / なし |
礼金 |
1ヶ月 |
| 敷引 |
- |
保証金償却 |
- |
| その他一時金 |
室内清掃費用:33,000円、鍵交換代等:33,000円~ |
保険等 |
要 2年 16,000円 |
| 維持費等 |
- |
クレジットカード決済 |
初期費用可 |
| 間取り |
1K(洋6.5) |
専有面積 |
22.72m² |
| 築年月 |
2021年11月(築4年7ヶ月)
|
階建 / 階 |
10階建 / 6階 |
| 建物構造 |
RC |
総戸数 |
- |
| 主要採光面 |
東 |
駐車場 |
近有 18,000円/月 |
| バイク置き場 |
- |
駐輪場 |
有 |
| 建物名・部屋番号 |
エスプレイス神戸フォルムスクエア |
ペット |
相談 |
| アピールポイント |
セキュリティ面は、TVインターホン・オートロックなど充実しているので、防犯対策もばっちりです。自宅に不在の時でも宅配ボックスで荷物を受け取ることができるので、わざわざ再配達の依頼をする必要もなくなります。収納はクロゼット・シューズボックスなどが備え付けられているので、衣類や日用品の収納に重宝します。室内設備は洗面所独立・浴室乾燥機など充実した設備を備え付けています。徒歩14分で駅へのアクセスができる物件です。利便性の高い設備も充実した、高ニーズな令和3年築の物件です。住みやすい環境が嬉しい賃貸物件です。TV好きの方には嬉しい、BSアンテナ設置済み物件です。インターネット無料なので、在宅のオンライン授業やリモート業務があるなど学校生活や仕事上でインターネットが必要不可欠な方におすすめです。お引越し時期のご相談、お待ちしております。バルコニー付きのマンションです。 |
| リフォーム履歴 |
- |
| リノベーション履歴 |
- |
| 備考 |
賃貸保証等:加入要(日本セーフティー 初回保証料:総賃料の50% 更新料10,000円/年必須 (日本セーフティー) 初回保証料:総賃料の50% 更新料10,000円/年)
管理形態/管理員の勤務形態:-/-
IT重説対応物件、外壁コンクリート
物件のお問い合わせはSumoSumoまで♪♪
短期違約金:1年未満/総賃料1ヶ月分
室内設備は洗面化粧台・浴室乾燥機など大変充実しております。宅配ボックスを利用すれば非対面非接触で荷物を受け取れるので、対面での受け渡しに抵抗がある方におすすめです。セキュリティ面は、TVインターホン・オートロックなどを備え付けているので安心して暮らせます。収納はクロゼット・シューズボックスなど豊富なので、衣類や履き物の整理がしやすく便利です。こちらの物件はエレベーター付きです。畳に比べるとダニ・カビを気にしなくて良いフローリング付き。入居者が安心して暮らしていただけるように、共用部に防犯カメラが付いています。今すぐ引っ越しをしたい方のご相談をお待ちしております。BS用の環境は整っているため、BS加入後すぐに視聴できます。動画配信サービスで映画やドラマ・アニメを視聴するのがお好きな方、インターネットの使用料を気にする必要がないので思う存分お楽しみいただけます。多くの方にご好評をいただいている、清潔感のある賃貸物件です。
|
| エネルギー消費性能 |
- |
| 断熱性能 |
- |
| 目安光熱費 |
- |
| バス・トイレ |
バス・トイレ別、浴室乾燥機、シャワー付洗面化粧台、洗面所独立、洗面所、洗面台、シャワー、温水洗浄便座、トイレ |
| キッチン |
システムキッチン、2口コンロ、ガスコンロ可 |
| セキュリティー |
モニター付オートロック、オートロック、モニター付インターホン、防犯カメラ |
| 収納 |
収納スペース、クローゼット、シューズボックス |
| 設備・サービス |
室内洗濯機置場、洗濯機置場、都市ガス給湯、給湯、フローリング、都市ガス、エアコン、冷房、人感センサー付照明 |
| TV・通信 |
インターネット対応、インターネット使用料無料、光ファイバー、CATVインターネット、ケーブルTV、CS、BS端子 |
| その他 |
宅配BOX、バルコニー、駐輪場、エレベーター |
| 契約期間 |
2年 |
現況 |
空家 |
| 条件等 |
- |
入居可能時期 |
相談 |
| 更新料 |
- |
物件番号 |
1160146822 |
| 情報公開日 |
2026年3月4日 |
次回更新予定日 |
2026年5月20日 |
| ケータイ用バーコード |
- スマートフォンでこの物件を見る
- スマートフォンからもこの物件をご覧になれます。
|
※「-」と表示されている項目については、情報提供会社にご確認ください。
| 周辺施設 |
スーパーマルハチ 柳原店 |
| 距離 |
610m |
写真を見る |
| 周辺施設 |
サンディ 兵庫駅前店 |
| 距離 |
1039m |
写真を見る |
| 周辺施設 |
KOHYO(コーヨー) 兵庫店 |
| 距離 |
1219m |
写真を見る |
| 周辺施設 |
イオンモール神戸南 |
| 距離 |
283m |
写真を見る |
| 周辺施設 |
デイリーヤマザキ神戸中央市場店 |
| 距離 |
82m |
写真を見る |
| 周辺施設 |
ファミリーマート 井上兵庫大仏前店 |
| 距離 |
419m |
写真を見る |
ここから簡単にお問い合わせをすることができます。
(SSLでの暗号化での送信を希望されるお客さまは
こちら
よりお問い合わせください)
お問い合わせを行う前に
「個人情報の取り扱いについて」を必ずお読みください。
「個人情報の取り扱いについて」に同意いただいた場合は「上記にご同意の上 確認画面へ進む」のボタンをクリックしてください。
個人情報の取り扱いについて
皆さまが送付された個人情報はアットホーム(株)のサーバを経由し、お問い合わせ先の不動産会社にメールまたはFAXにて転送されるためアットホーム(株)にも保管されます。アットホーム(株)で保管された個人情報の取り扱いについては、【こちら】をご覧ください。
また、本画面でご記入いただいた個人情報は、お問い合わせ先の不動産会社でも保管します。 お問い合わせ先の不動産会社が保管する個人情報の取り扱いについては、不動産会社に直接お問い合わせください。
国土交通大臣免許(2)第9550号 |
|---|
- 交通:
- JR山陽本線/兵庫駅 徒歩3分
- 兵庫県神戸市兵庫区塚本通7丁目2-19
- TEL:
- 078-600-0540
- FAX:
- 078-579-7881
- 所属団体:
- (公社)全日本不動産協会会員(公社)近畿地区不動産公正取引協議会加盟
取引態様:仲介  - 50105012
|
- スマートフォンで
この不動産会社を見る

|
- 提携サイト等より掲載されている物件情報につきましては、不動産会社詳細情報にリンクされていないものがあります。
- 物件に関するお問合せは、物件詳細ページの「情報提供会社」に表示されている不動産会社へ直接お願いいたします。
- 間取図は、現況を優先させていただきます。
- 映像は物件の一部を撮影したものです。物件の契約にあたっての最終判断はご自身の判断に基づいて行ってください。
- 仲介手数料について

アットホームは物件情報の適正化に努めております。
内容に誤りがある場合にはこちらへご連絡ください。