東京都足立区綾瀬7丁目(北綾瀬駅)の賃貸:物件詳細
交通 所在地 |
駅徒歩 |
賃料 管理費等 |
敷金/保証金 礼金 |
間取り 面積 |
物件種目 築年月 |
|
東京メトロ千代田線/北綾瀬
東京都足立区綾瀬7丁目
|
8分
|
8.1万円
10,000円
|
なし / なし
0.5ヶ月
|
1K
20.52m²
|
賃貸マンション
2017年10月(築8年6ヶ月)
|
ペット相談、デザイナーズ、分譲タイプ、常時ゴミ出し可能、二人入居可、24時間換気システム、IT重説対応物件、保証人不要
|
|
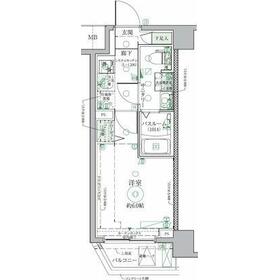
間取図
|
外観
|
<
その他の画像
>
|
| 交通 | 東京メトロ千代田線 北綾瀬駅 徒歩8分 |
|---|
| その他の交通 | つくばエクスプレス 青井駅 徒歩13分 JR千代田・常磐緩行線 綾瀬駅 徒歩20分 |
| 所在地 |
東京都足立区綾瀬7丁目
|
| 物件種目 |
賃貸マンション |
| 賃料 |
8.1万円 |
管理費等 |
10,000円 |
| 敷金 / 保証金 |
なし / なし |
礼金 |
0.5ヶ月 |
| 敷引 |
- |
保証金償却 |
- |
| その他一時金 |
鍵交換費用:44,000円、室内清掃費用:55,000円、書類作成代:11,000円 |
保険等 |
不要 |
| 維持費等 |
リビングアシスト総合保険:800円/月 |
クレジットカード決済 |
初期費用可 |
| 間取り |
1K(洋室6畳) |
専有面積 |
20.52m² |
| 築年月 |
2017年10月(築8年6ヶ月)
|
階建 / 階 |
9階建 / 6階 |
| 建物構造 |
RC |
総戸数 |
- |
| 主要採光面 |
西 |
駐車場 |
- |
| バイク置き場 |
- |
駐輪場 |
有 |
| 建物名・部屋番号 |
クレヴィスタ北綾瀬 |
ペット |
相談 |
| アピールポイント |
人気の分譲賃貸マンションで設備が充実しております。オートロック付きでセキュリティも安心です。不在時でも受け取り可能な宅配ボックスあり。浴室乾燥機つきで雨の日でも洗濯が可能です。 |
| リフォーム履歴 |
- |
| リノベーション履歴 |
- |
| 備考 |
賃貸保証等:加入要(賃料総額の40%~)
管理形態/管理員の勤務形態:-/巡回
IT重説対応物件、管理人巡回
分譲賃貸マンション
オートロック/宅配ボックス/浴室乾燥機/独立洗面台/周辺施設充実
|
| エネルギー消費性能 |
- |
| 断熱性能 |
- |
| 目安光熱費 |
- |
| バス・トイレ |
バス・トイレ別、浴室暖房、浴室乾燥機、シャワー付洗面化粧台、洗面所独立、洗面台、シャワー、温水洗浄便座、トイレ |
| キッチン |
システムキッチン、2口コンロ、ガスコンロ付 |
| セキュリティー |
モニター付オートロック、オートロック、モニター付インターホン、ダブルロックドア、防犯カメラ |
| 収納 |
収納スペース、クローゼット、シューズボックス |
| 設備・サービス |
室内洗濯機置場、洗濯機置場、給湯、全居室フローリング、フローリング、都市ガス、エアコン、人感センサー付照明 |
| TV・通信 |
インターネット対応、インターネット使用料無料、CS、BS端子、マルチメディアコンセント |
| その他 |
宅配BOX、バルコニー、駐輪場、エレベーター |
| 契約期間 |
2年 |
現況 |
空家 |
| 条件等 |
- |
入居可能時期 |
即時 |
| 更新料 |
新賃料 1ヶ月 |
物件番号 |
1160249009 |
| 情報公開日 |
2026年3月2日 |
次回更新予定日 |
2026年3月16日 |
| ケータイ用バーコード |
- スマートフォンでこの物件を見る
- スマートフォンからもこの物件をご覧になれます。
|
※「-」と表示されている項目については、情報提供会社にご確認ください。
| 周辺施設 |
セブンイレブン 足立東綾瀬公園店 |
| 距離 |
158m |
写真を見る |
| 周辺施設 |
ドラッグセイムス 加平店 |
| 距離 |
164m |
写真を見る |
| 周辺施設 |
ファミリーマート 加平一丁目店 |
| 距離 |
196m |
写真を見る |
| 周辺施設 |
ワイズマート北綾瀬店 |
| 距離 |
502m |
写真を見る |
| 周辺施設 |
ツルハドラッグ 足立綾瀬店 |
| 距離 |
604m |
写真を見る |
ここから簡単にお問い合わせをすることができます。
(SSLでの暗号化での送信を希望されるお客さまは
こちら
よりお問い合わせください)
お問い合わせを行う前に
「個人情報の取り扱いについて」を必ずお読みください。
「個人情報の取り扱いについて」に同意いただいた場合は「上記にご同意の上 確認画面へ進む」のボタンをクリックしてください。
個人情報の取り扱いについて
皆さまが送付された個人情報はアットホーム(株)のサーバを経由し、お問い合わせ先の不動産会社にメールまたはFAXにて転送されるためアットホーム(株)にも保管されます。アットホーム(株)で保管された個人情報の取り扱いについては、【こちら】をご覧ください。
また、本画面でご記入いただいた個人情報は、お問い合わせ先の不動産会社でも保管します。 お問い合わせ先の不動産会社が保管する個人情報の取り扱いについては、不動産会社に直接お問い合わせください。
東京都知事免許(4)第86028号 |
|---|
- 交通:
- 東京メトロ丸ノ内線/西新宿駅 徒歩1分
- 東京都新宿区西新宿8丁目1-2 PMO西新宿2F
- TEL:
- 03-5348-3311
- FAX:
- 03-5348-3322
- 所属団体:
- (公社)全日本不動産協会会員(公社)首都圏不動産公正取引協議会加盟
取引態様:仲介  - 00996300
|
- スマートフォンで
この不動産会社を見る

|
- 提携サイト等より掲載されている物件情報につきましては、不動産会社詳細情報にリンクされていないものがあります。
- 物件に関するお問合せは、物件詳細ページの「情報提供会社」に表示されている不動産会社へ直接お願いいたします。
- 間取図は、現況を優先させていただきます。
- 映像は物件の一部を撮影したものです。物件の契約にあたっての最終判断はご自身の判断に基づいて行ってください。
- 仲介手数料について

アットホームは物件情報の適正化に努めております。
内容に誤りがある場合にはこちらへご連絡ください。