不動産 賃貸 マンション等の住宅情報:埼玉住まい情報


東京都豊島区池袋3丁目(池袋駅)の賃貸:物件詳細

  • 物件詳細
  • 情報の見方
  • 印刷用画面
交通
所在地
駅徒歩 賃料
管理費等
敷金/保証金
礼金
間取り
面積
物件種目
築年月

JR山手線/池袋 新着

東京都豊島区池袋3丁目

7分

11.8万円

10,000円

なし / なし

1ヶ月

1K

26.07m²

賃貸マンション

2021年6月(築4年10ヶ月)

おすすめPOINTデザイナーズ、分譲タイプ、常時ゴミ出し可能、角部屋、最上階、二人入居可、24時間セキュリティー、24時間換気システム、IT重説対応物件、保証人不要

おすすめコメント  スタッフ: 市川 琴深

【ツインレジデンス】8路線が交差するターミナル「池袋」が最寄/アクセスだけでなく日々の生活を充実させるロケーションも魅力★大通りに面していない落ち着いた環境★オンライン内見・現地お待合わせも可能

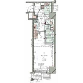
間取図

間取図

弊社クレアスレントが管理会社なので情報豊富

外観

外観

☆敷金礼金ゼロ/Wi-Fi&ネット無料

<
その他の画像
  • リビング
  • 室内
  • キッチン
  • 洗面
  • バス/シャワー
  • トイレ
  • 収納
  • 玄関
  • バルコニー
  • エントランス
  • その他
  • 駐車場
  • 設備
  • 眺望
  • 外観
>
    • とりあえず保存
    • お問い合わせ
    交通

    JR山手線 池袋駅 徒歩7分

    その他の交通

    東京メトロ有楽町線 要町駅 徒歩13分

    東武東上線 北池袋駅 徒歩17分

    所在地 東京都豊島区池袋3丁目
    物件種目 賃貸マンション
    賃料 11.8万円 管理費等 10,000円
    敷金 / 保証金 なし / なし 礼金 1ヶ月
    敷引 保証金償却
    その他一時金 口座振替サービス料:5,280円、室内抗菌代:16,500円、鍵交換代等:32,450円~ 保険等
    維持費等 クレジットカード決済 初期費用可
    間取り 1K(K1.2、洋8) 専有面積 26.07m²
    築年月 2021年6月(築4年10ヶ月) 階建 / 階 7階建 / 7階
    建物構造 RC 総戸数
    主要採光面 駐車場
    バイク置き場 駐輪場
    建物名・部屋番号 コンシェリア池袋 THE RESIDENCE EAST ペット
    アピールポイント ☆敷金ゼロ/Wi-Fi無料/すべてを満たす池袋のデザイナーズ☆オンライン内見・現地お待合わせも可能
    リフォーム履歴
    リノベーション履歴
    備考
    賃貸保証等:加入要(アーバンプライム 初回保証委託料総賃料70%年間保証委託料1万円)
    管理形態/管理員の勤務形態:-/-
    バルコニー:2.05m²
    IT重説対応物件、二重床・二重天井
    ネット無料でリモートワークも快適
    退去時クリーニング費49500円。安心入居パック39600円。2名入居時賃料5000円増額(1年未満解約違約金1か月)ファストドクターの入居者サポート付、仕様・図面・写真等に相違があった場合は現況優先
    エネルギー消費性能
    断熱性能
    目安光熱費
    バス・トイレ バス・トイレ別、浴室乾燥機、オートバス、追焚機能、シャワー付洗面化粧台、洗面所独立、洗面所、洗面台、シャワー、温水洗浄便座、トイレ
    キッチン システムキッチン、浄水器、2口コンロ、ガスコンロ可
    セキュリティー モニター付オートロック、オートロック、モニター付インターホン、ダブルロックドア、防犯カメラ
    収納 収納スペース、クローゼット、シューズボックス
    設備・サービス 室内洗濯機置場、二重床、洗濯機置場、都市ガス給湯、給湯、フローリング、室内物干し、都市ガス、エアコン、人感センサー付照明、ダウンライト、照明器具
    TV・通信 インターネット対応、インターネット使用料無料、CS、BS端子
    その他 宅配BOX、バルコニー、エレベーター
    契約期間 2年 現況 居住中
    条件等 入居可能時期 2026年4月下旬予定
    更新料 新賃料 1.5ヶ月 物件番号 1160534722
    情報公開日 2026年3月5日 次回更新予定日 2026年3月19日
    ケータイ用バーコード

    QRコード

    スマートフォンでこの物件を見る
    スマートフォンからもこの物件をご覧になれます。
    ※「-」と表示されている項目については、情報提供会社にご確認ください。

    この物件の周辺情報

    周辺施設 セブンイレブン 池袋3丁目東店
    距離 83m
    周辺施設 ファミリーマート 西池袋店
    距離 320m
    周辺施設 まいばすけっと 池袋2丁目店
    距離 376m
    周辺施設 miniピアゴ 池袋2丁目店
    距離 422m
    周辺施設 スーパーマーケット リコス 池袋2丁目店
    距離 461m
    周辺施設 なか卯 池袋二丁目店
    距離 350m

    クイックお問い合わせ

    ここから簡単にお問い合わせをすることができます。
    (SSLでの暗号化での送信を希望されるお客さまは こちら よりお問い合わせください)

    お問い合わせ内容(必須)
    お名前(必須) 姓  名 
    メールアドレス(必須)
    ※携帯電話のメールアドレスをご入力される方はこちらをご確認ください
    電話番号(必須)
    - -

    ※入力いただいた電話番号へSMSまたは音声でパスワードをご連絡します。

    携帯電話の番号をご入力の方へ

    携帯電話の番号をご入力の方へ
    確認画面にて送信ボタンをクリックするとSMSが携帯電話に届きます。
    そのSMSに記載のパスワード(認証番号)を入力し、お問い合わせを完了してください。
    尚、SMSの送信者番号は 0005 202 760 となります。
    これはアットホームの固定番号です。

    備考欄 希望条件、物件案内希望日、質問などがございましたらご記入ください。
    お問い合わせを行う前に「個人情報の取り扱いについて」を必ずお読みください。
    「個人情報の取り扱いについて」に同意いただいた場合は「上記にご同意の上 確認画面へ進む」のボタンをクリックしてください。

    個人情報の取り扱いについて

    皆さまが送付された個人情報はアットホーム(株)のサーバを経由し、お問い合わせ先の不動産会社にメールまたはFAXにて転送されるためアットホーム(株)にも保管されます。アットホーム(株)で保管された個人情報の取り扱いについては、【こちら】をご覧ください。
    また、本画面でご記入いただいた個人情報は、お問い合わせ先の不動産会社でも保管します。 お問い合わせ先の不動産会社が保管する個人情報の取り扱いについては、不動産会社に直接お問い合わせください。

    情報提供会社

    情報提供会社

    (株)クレアスレント 池袋店

    国土交通大臣免許(1)第10473号

    交通:
    JR山手線/池袋駅 徒歩4分
    東京都豊島区東池袋1丁目43-10 
    TEL:
    03-6824-9517
    FAX:
    03-5951-6960
    所属団体:
    (公社)東京都宅地建物取引業協会会員
    (公社)首都圏不動産公正取引協議会加盟

    取引態様:仲介

    • 会社情報
    • 00161962
    スマートフォンで
    この不動産会社を見る
    QRコード
    • とりあえず保存
    • お問い合わせ
    • 提携サイト等より掲載されている物件情報につきましては、不動産会社詳細情報にリンクされていないものがあります。
    • 物件に関するお問合せは、物件詳細ページの「情報提供会社」に表示されている不動産会社へ直接お願いいたします。
    • 間取図は、現況を優先させていただきます。
    • 映像は物件の一部を撮影したものです。物件の契約にあたっての最終判断はご自身の判断に基づいて行ってください。
    • 仲介手数料について仲介手数料

    アットホームは物件情報の適正化に努めております。 内容に誤りがある場合にはこちらへご連絡ください。

    【埼玉住まい情報】では、日本全国の物件から賃貸マンションや賃貸アパート・賃貸一戸建て等の賃貸住宅情報、新築マンション・分譲マンションや中古マンション等の売買マンション情報、新築一戸建てや中古一戸建てなどの戸建住宅、 土地など、総合的な不動産住宅情報検索サービスを提供致します。
    【埼玉住まい情報】から、選りすぐりの不動産物件を探してみましょう。

    【免責事項】
    このコーナーの運営はアットホーム株式会社(https://www.athome.co.jp/)が行っています。
    このコーナーに掲載している物件情報は、「アットホーム不動産情報ネットワーク」に加盟する不動産会社等(情報提供元)から提供されています。信頼性の高い情報提供が行えるよう、最大限の努力をしておりますが、その内容を保証するものではありません。 利用者のみなさまと各情報提供元との取引に起因する損害および情報が掲載されたことに起因する損害等については、株式会社イーシティ埼玉、およびアットホームは一切責任を負いません。
    各物件情報の内容や画像等はすべて現況を優先させていただきます。
    お取引等(お取引の準備、資金調達等を含みます)の際には、内容や契約条件等について、各情報提供元より十分な説明を受け、ご自身でご確認の上、判断してください。
    このコーナーへの物件情報のご掲載、その他不動産業務ソリューション等についての不動産会社様のお問合せはこちらからお願いいたします。

    物件画像: