神奈川県茅ヶ崎市中海岸2丁目(茅ケ崎駅)の賃貸:物件詳細
交通 所在地 |
駅徒歩 |
賃料 管理費等 |
敷金/保証金 礼金 |
間取り 面積 |
物件種目 築年月 |
|
JR東海道本線/茅ケ崎
神奈川県茅ヶ崎市中海岸2丁目
|
13分
|
5.6万円
2,000円
|
1ヶ月 / なし
なし
|
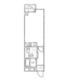
ワンルーム
18.00m²
|
賃貸マンション
1987年10月(築38年1ヶ月)
|
最上階、保証人不要
|
|
間取図
|
外観
|
<
その他の画像
>
|
|
|
| 交通 | JR東海道本線 茅ケ崎駅 徒歩13分 |
| 所在地 |
神奈川県茅ヶ崎市中海岸2丁目
|
| 物件種目 |
賃貸マンション |
| 賃料 |
5.6万円 |
管理費等 |
2,000円 |
| 敷金 / 保証金 |
1ヶ月 / なし |
礼金 |
なし |
| 敷引 |
- |
保証金償却 |
- |
| その他一時金 |
なし、鍵交換代等:17,600円~ |
保険等 |
要 |
| 維持費等 |
- |
クレジットカード決済 |
初期費用可 |
| 間取り |
ワンルーム(洋室7.4) |
専有面積 |
18.00m² |
| 築年月 |
1987年10月(築38年1ヶ月)
|
階建 / 階 |
地上3階地下1階建 / 3階 |
| 建物構造 |
RC |
総戸数 |
38戸 |
| 主要採光面 |
東 |
駐車場 |
有 13,200円/月 |
| バイク置き場 |
有 |
駐輪場 |
有 無料 |
| 建物名・部屋番号 |
パークヒルズ茅ヶ崎 |
ペット |
-
|
| アピールポイント |
☆当店の強みをお伝えします☆
①クレジットカードの初期費用分割払いを、喜んでお受けいたします(クレジットカード以外もOK)
②他社様がネットに掲載されている物件は、全てお調べし、【好条件】でご紹介いたします
他社様で「お申込み」された物件でも、【好条件】でご紹介できる場合がございます
③「審査が不安…」「保証人がいない…」「値段交渉をして欲しい…」などなど、
どのようなご条件でも、遠慮なくご相談いただけます
④ご検討されている「エリア」「沿線」が「広範囲」「複数」でも、一度で漏れなくお探しいただけます
ポータルサイトや他社サイトで気になるお部屋がございましたらお気軽にご相談ください
お客様のご来店を心よりお待ちしております |
| リフォーム履歴 |
■内装:2022年12月 内装全面(床・壁・天井・建具) ■その他:2022年12月 内装フルリフォーム ※実施年月は最も古い履歴を表示 |
| リノベーション履歴 |
- |
| 備考 |
賃貸保証等:加入要(月額賃料等の50%(初回保証料)、2年目以降は1万円/年)
管理形態/管理員の勤務形態:-/巡回
管理人巡回
水道料 月額2000円/室内清掃費用借主負担(退去時)/安心サポート 月額1100円/敷地内駐車場(利用時):月額13200円/バイク置場(利用時):月額1650円
|
| エネルギー消費性能 |
- |
| 断熱性能 |
- |
| 目安光熱費 |
- |
| バス・トイレ |
バス・トイレ別、シャワー、温水洗浄便座、トイレ |
| キッチン |
IHクッキングヒーター |
| セキュリティー |
モニター付インターホン |
| 収納 |
シューズボックス |
| 設備・サービス |
室内洗濯機置場、都市ガス給湯、給湯、フローリング、室内物干し、都市ガス、エアコン、ダウンライト、照明器具 |
| TV・通信 |
インターネット対応、インターネット使用料無料、光ファイバー |
| その他 |
バイク置き場、バルコニー、駐輪場 |
| 契約期間 |
2年 |
現況 |
空家 |
| 条件等 |
- |
入居可能時期 |
即時 |
| 更新料 |
- |
物件番号 |
1160779514 |
| 情報公開日 |
2025年8月31日 |
次回更新予定日 |
2025年11月3日 |
| ケータイ用バーコード |
- スマートフォンでこの物件を見る
- スマートフォンからもこの物件をご覧になれます。
|
※「-」と表示されている項目については、情報提供会社にご確認ください。
| 周辺施設 |
たまや 幸町店 |
| 距離 |
958m |
写真を見る |
| 周辺施設 |
セブン-イレブン 茅ヶ崎中海岸1丁目店 |
| 距離 |
551m |
写真を見る |
| 周辺施設 |
クリエイトS・D 茅ヶ崎雄三通り店 |
| 距離 |
862m |
写真を見る |
| 周辺施設 |
ラスカ茅ヶ崎 |
| 距離 |
1124m |
写真を見る |
| 周辺施設 |
茅ヶ崎リハビリテーション専門学校 |
| 距離 |
1464m |
写真を見る |
| 周辺施設 |
湘南ふれあい学園茅ヶ崎看護専門学校 |
| 距離 |
2884m |
写真を見る |
ここから簡単にお問い合わせをすることができます。
(SSLでの暗号化での送信を希望されるお客さまは
こちら
よりお問い合わせください)
お問い合わせを行う前に
「個人情報の取り扱いについて」を必ずお読みください。
「個人情報の取り扱いについて」に同意いただいた場合は「上記にご同意の上 確認画面へ進む」のボタンをクリックしてください。
個人情報の取り扱いについて
皆さまが送付された個人情報はアットホーム(株)のサーバを経由し、お問い合わせ先の不動産会社にメールまたはFAXにて転送されるためアットホーム(株)にも保管されます。アットホーム(株)で保管された個人情報の取り扱いについては、【こちら】をご覧ください。
また、本画面でご記入いただいた個人情報は、お問い合わせ先の不動産会社でも保管します。 お問い合わせ先の不動産会社が保管する個人情報の取り扱いについては、不動産会社に直接お問い合わせください。
国土交通大臣免許(3)第8522号 |
|---|
- 交通:
- JR東海道本線/藤沢駅 徒歩1分
- 神奈川県藤沢市南藤沢3-4 MINAMIFUJISAWA LILAS BLD 2階
- TEL:
- 0466-21-9491
- FAX:
- 0466-21-9492
- 所属団体:
- (公社)全日本不動産協会会員(公社)首都圏不動産公正取引協議会加盟
取引態様:仲介  - 00786053
|
- スマートフォンで
この不動産会社を見る

|
- 提携サイト等より掲載されている物件情報につきましては、不動産会社詳細情報にリンクされていないものがあります。
- 物件に関するお問合せは、物件詳細ページの「情報提供会社」に表示されている不動産会社へ直接お願いいたします。
- 間取図は、現況を優先させていただきます。
- 映像は物件の一部を撮影したものです。物件の契約にあたっての最終判断はご自身の判断に基づいて行ってください。
- 仲介手数料について

アットホームは物件情報の適正化に努めております。
内容に誤りがある場合にはこちらへご連絡ください。