東京都大田区西糀谷3丁目(大鳥居駅)の賃貸:物件詳細
				
					
					
				
														
	
		
			
				交通 所在地 | 
				駅徒歩 | 
				賃料 管理費等 | 
				敷金/保証金 礼金 | 
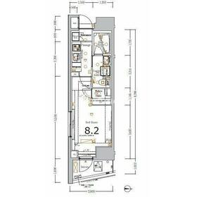
				間取り 面積 | 
				物件種目 築年月 | 
			
		
		
			
								| 
					 京急空港線/大鳥居
												 
											 
					東京都大田区西糀谷3丁目 
				 | 
								
					 7分 
				 | 
								
					 9.95万円 
					15,000円 
				 | 
								
					 なし / なし 
					1ヶ月 
				 | 
								
					 1K 
					25.68m² 
				 | 
								
					 賃貸マンション 
					2021年2月(築4年10ヶ月)
																				 
				 | 
			
						
				 ペット相談、角部屋、二人入居可、2面採光、24時間換気システム、閑静な住宅街、保証人不要
  | 
			
					
	
		
		
		
					| 
			 間取図 
			
			
			
			
			
		 | 
		
			 外観 
			
			
			
			
			
		 | 
				
		
		
			
				
										<
										
						
							 
							その他の画像
						 
					 
					
										>
									 
				
			 
		 | 
	
				
 
	
		
			
																			          | 交通 | 京急空港線 大鳥居駅 徒歩7分  | 
|---|
| その他の交通 | 京急空港線 糀谷駅 徒歩14分 京急空港線 穴守稲荷駅 徒歩15分  | 
			
				| 所在地 | 
				
					東京都大田区西糀谷3丁目
				 | 
			
			
				| 物件種目 | 
				賃貸マンション | 
			
		
		
			
				| 賃料 | 
				9.95万円 | 
				管理費等 | 
				15,000円 | 
			
			
				| 敷金 / 保証金 | 
				なし / なし | 
				礼金 | 
				1ヶ月 | 
			
			
				| 敷引 | 
				- | 
				保証金償却 | 
				- | 
			
			
				| その他一時金 | 
				室内清掃費用:49,500円、事務手数料:5,500円、除菌消臭費:13,200円、鍵交換代等:33,000円~ | 
				保険等 | 
				要 2年 18,000円 | 
			
						
				| 維持費等 | 
				24時間緊急対応費:1,000円/月 | 
			
					
		
			
				| 間取り | 
				1K(洋室8.2帖) | 
				専有面積 | 
				25.68m² | 
			
			
				| 築年月 | 
				2021年2月(築4年10ヶ月)
												 | 
				階建 / 階 | 
				9階建 / 2階 | 
			
			
				| 建物構造 | 
				RC | 
				総戸数 | 
				- | 
			
			
				| 主要採光面 | 
				東 | 
				駐車場 | 
				- | 
			
			
				| バイク置き場 | 
				- | 
				駐輪場 | 
				- | 
			
			
				| 建物名・部屋番号 | 
				ジーベック大鳥居アジールコート 201 | 
				ペット | 
				
													相談												 | 
			
			
	| アピールポイント | 
	敷金0ヶ月 大鳥居駅徒歩7分 インターネット無料 ペット相談可 角部屋2面採光 二人入居可 エアコン | 
			
				| リフォーム履歴 | 
				- | 
			
			
				| リノベーション履歴 | 
				- | 
			
			
				| 備考 | 
				
					 
																	賃貸保証等:加入要(初回保証料:総賃料の100%、月額保証料:総賃料の1%)
											 						管理形態/管理員の勤務形態:-/-
											 						更新事務手数料:0.55ヶ月分 1年未満解約時賃料1ヶ月分違約金あり
										 
					
				 | 
			
		
				
		
		| エネルギー消費性能 | 
		- | 
	
	
		| 断熱性能 | 
		- | 
	
	
		| 目安光熱費 | 
		- | 
	
	
		
									
				| バス・トイレ | 
				バス・トイレ別、浴室乾燥機、洗面所独立、洗面台、シャワー、温水洗浄便座、トイレ | 
			
						
				| キッチン | 
				システムキッチン、2口コンロ、ガスコンロ付 | 
			
						
				| セキュリティー | 
				モニター付オートロック、オートロック、モニター付インターホン、防犯カメラ、火災警報器(報知機) | 
			
						
				| 収納 | 
				全居室収納、ウォークインクローゼット、収納スペース、クローゼット、シューズボックス | 
			
						
				| 設備・サービス | 
				室内洗濯機置場、給湯、フローリング、エアコン、暖房、冷房、照明器具 | 
			
						
				| TV・通信 | 
				インターネット対応、インターネット使用料無料、光ファイバー | 
			
						
				| その他 | 
				宅配BOX、バルコニー、エレベーター | 
			
					
		
			
				| 契約期間 | 
				2年 | 
				現況 | 
				居住中 | 
			
			
				| 条件等 | 
				- | 
				入居可能時期 | 
				2025年12月下旬予定 | 
			
						
				| 更新料 | 
				新賃料 1ヶ月 | 
				物件番号 | 
				1160821015 | 
			
			
				| 情報公開日 | 
				2025年11月3日 | 
				次回更新予定日 | 
				2025年11月17日 | 
			
						
				| ケータイ用バーコード | 
				
				
					
					
						
							- スマートフォンでこの物件を見る
 
							- スマートフォンからもこの物件をご覧になれます。
 
						 
					 
				 
				 | 
			
					
	 
	 									※「-」と表示されている項目については、情報提供会社にご確認ください。
						
	
			
			
			
				
					
						
							| 周辺施設 | 
							大鳥居駅(京急 空港線) | 
						
						
							| 距離 | 
							500m | 
							写真を見る | 						
					
				
			 
		 
		 
		 									
												
					
					  ここから簡単にお問い合わせをすることができます。
(SSLでの暗号化での送信を希望されるお客さまは
													こちら
											  よりお問い合わせください)
					  
					
						
						
					
					お問い合わせを行う前に
「個人情報の取り扱いについて」を必ずお読みください。
「個人情報の取り扱いについて」に同意いただいた場合は「上記にご同意の上 確認画面へ進む」のボタンをクリックしてください。 
 
					
					
						個人情報の取り扱いについて
						皆さまが送付された個人情報はアットホーム(株)のサーバを経由し、お問い合わせ先の不動産会社にメールまたはFAXにて転送されるためアットホーム(株)にも保管されます。アットホーム(株)で保管された個人情報の取り扱いについては、【こちら】をご覧ください。
						また、本画面でご記入いただいた個人情報は、お問い合わせ先の不動産会社でも保管します。 お問い合わせ先の不動産会社が保管する個人情報の取り扱いについては、不動産会社に直接お問い合わせください。
					 
				 
				
														
				  
				  
					東京都知事免許(6)第76891号  | 
|---|
- 交通:
 - JR京浜東北線/大森駅 徒歩2分
 - 東京都品川区南大井6丁目27-28 フォレスタビル2F
 - TEL:
 - 03-6228-4882
 - FAX:
 - 03-6271-6108
 - 所属団体:
 - (公社)全日本不動産協会会員(公社)首都圏不動産公正取引協議会加盟
 
 取引態様:仲介  - 00275538
 
  | 
						  						  
							
							  
								- スマートフォンで
 この不動産会社を見る 
								    
							   
							 
						   | 
						  						
					  
					 
				   
				 
							
						
												
			
					
- 提携サイト等より掲載されている物件情報につきましては、不動産会社詳細情報にリンクされていないものがあります。
 
- 物件に関するお問合せは、物件詳細ページの「情報提供会社」に表示されている不動産会社へ直接お願いいたします。
 
- 間取図は、現況を優先させていただきます。
 
- 映像は物件の一部を撮影したものです。物件の契約にあたっての最終判断はご自身の判断に基づいて行ってください。
 
- 仲介手数料について

 
アットホームは物件情報の適正化に努めております。
内容に誤りがある場合にはこちらへご連絡ください。