東京都文京区大塚6丁目(新大塚駅)の賃貸:物件詳細
交通 所在地 |
駅徒歩 |
賃料 管理費等 |
敷金/保証金 礼金 |
間取り 面積 |
物件種目 築年月 |
|
東京メトロ丸ノ内線/新大塚
東京都文京区大塚6丁目
|
5分
|
15.1万円
8,000円
|
なし / なし
1ヶ月
|
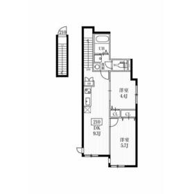
2DK
44.41m²
|
賃貸アパート
2019年12月(築6年3ヶ月)
|
角部屋、高齢者相談、二人入居可、2面採光、24時間換気システム、メゾネット、保証人不要
|
|
間取図
|
外観
外観もきれいです
|
<
その他の画像
>
|
| 交通 | 東京メトロ丸ノ内線 新大塚駅 徒歩5分 |
|---|
| その他の交通 | 東京メトロ有楽町線 護国寺駅 徒歩12分 JR山手線 大塚駅 徒歩13分 |
| 所在地 |
東京都文京区大塚6丁目
|
| 物件種目 |
賃貸アパート |
| 賃料 |
15.1万円 |
管理費等 |
8,000円 |
| 敷金 / 保証金 |
なし / なし |
礼金 |
1ヶ月 |
| 敷引 |
- |
保証金償却 |
- |
| その他一時金 |
室内清掃費用:66,000円、鍵交換代等:19,800円~ |
保険等 |
要 2年 20,000円 |
| 維持費等 |
Meiho Plus 24:1,320円/月 |
| 間取り |
2DK(DK9.3、洋5.7、洋4.4) |
専有面積 |
44.41m² |
| 築年月 |
2019年12月(築6年3ヶ月)
|
階建 / 階 |
3階建 / メゾネット1階~2階部分 |
| 建物構造 |
鉄骨造 |
総戸数 |
- |
| 主要採光面 |
南東 |
駐車場 |
近有 35,000円/月 |
| バイク置き場 |
- |
駐輪場 |
有 330円/月 |
| 建物名・部屋番号 |
ミハス新大塚 |
ペット |
-
|
| アピールポイント |
セキュリティ面は、オートロック・TVインターホンなどを設置しているので安全面でも優れております。共用部には宅配ボックスが備え付けられているため、家で何時間も待機する必要がなくなります。室内設備は洗面所独立・浴室乾燥機などが揃っており、とても充実しています。お部屋から徒歩5分の場所に駅が位置するので、毎日の移動時間を削減できます。犯罪の発生を抑止する効果がある防犯カメラ付き物件です。素敵なシステムキッチンが付いておりますので、今までの調理の煩わしさから解放されます。自宅でパソコンを使う方には、初めからインターネットの設置されたお部屋が便利です。角部屋は隣り合う住戸が片側にしかないため、お互いの生活音が響きにくくなっております。指定の期日は令和8年2月になりましたので一度ご確認ください。こだわり条件、通風良好のシンプルな作りのアパートです。気分が落ちた時には換気でリフレッシュしましょう。 |
| リフォーム履歴 |
- |
| リノベーション履歴 |
- |
| 備考 |
賃貸保証等:加入要(初回契約時:100%、月額:1.5%)
管理形態/管理員の勤務形態:-/-
室内設備は洗面所独立・浴室乾燥機などが揃っているので、快適に過ごしやすいお部屋になります。共用部には宅配ボックスが備え付けられているため、日々忙しくて家にいる時間が少なくても荷物を受け取れます。セキュリティ面は、オートロック・TVインターホンなどを設置しているので安全面でも優れております。寒い季節も安心の追い焚き機能付きです。空気の入れ替えも簡単におこなえる通風良好の物件です。エアコン付きの物件なので、快適に生活できます。今や必需品ともなったネット。こちらはインターネット有り物件です。この物件は駅から徒歩5分の物件です。ご好評の物件なので入居日は令和8年2月の期日指定とさせて頂きます。全居室フローリングの、統一感ある内装です。
|
| エネルギー消費性能 |
- |
| 断熱性能 |
- |
| 目安光熱費 |
- |
| バス・トイレ |
バス・トイレ別、浴室乾燥機、追焚機能、シャワー付洗面化粧台、洗面所独立、洗面所、温水洗浄便座、トイレ |
| キッチン |
オープンキッチン、システムキッチン、2口コンロ、ガスコンロ可 |
| セキュリティー |
モニター付オートロック、オートロック、モニター付インターホン、防犯カメラ |
| 収納 |
収納スペース、クローゼット |
| 設備・サービス |
室内洗濯機置場、洗濯機置場、全居室フローリング、フローリング、都市ガス、エアコン、冷房 |
| TV・通信 |
インターネット対応、インターネット使用料無料 |
| その他 |
宅配BOX、駐輪場 |
| 契約期間 |
2年 |
現況 |
空家 |
| 条件等 |
- |
入居可能時期 |
2026年2月上旬予定 |
| 更新料 |
新賃料 1ヶ月 |
物件番号 |
1160952319 |
| 情報公開日 |
2026年1月22日 |
次回更新予定日 |
2026年2月19日 |
| ケータイ用バーコード |
- スマートフォンでこの物件を見る
- スマートフォンからもこの物件をご覧になれます。
|
※「-」と表示されている項目については、情報提供会社にご確認ください。
| 周辺施設 |
ファミリーマート 護国寺駅前店 |
| 距離 |
869m |
写真を見る |
| 周辺施設 |
maruetsu(マルエツ) プチ 護国寺駅前店 |
| 距離 |
953m |
写真を見る |
| 周辺施設 |
ジョナサン 護国寺店 |
| 距離 |
949m |
写真を見る |
| 周辺施設 |
ブックス音羽 |
| 距離 |
1073m |
写真を見る |
| 周辺施設 |
文京目白台一郵便局 |
| 距離 |
1553m |
写真を見る |
| 周辺施設 |
ローソン 小石川五丁目店 |
| 距離 |
1375m |
写真を見る |
ここから簡単にお問い合わせをすることができます。
(SSLでの暗号化での送信を希望されるお客さまは
こちら
よりお問い合わせください)
お問い合わせを行う前に
「個人情報の取り扱いについて」を必ずお読みください。
「個人情報の取り扱いについて」に同意いただいた場合は「上記にご同意の上 確認画面へ進む」のボタンをクリックしてください。
個人情報の取り扱いについて
皆さまが送付された個人情報はアットホーム(株)のサーバを経由し、お問い合わせ先の不動産会社にメールまたはFAXにて転送されるためアットホーム(株)にも保管されます。アットホーム(株)で保管された個人情報の取り扱いについては、【こちら】をご覧ください。
また、本画面でご記入いただいた個人情報は、お問い合わせ先の不動産会社でも保管します。 お問い合わせ先の不動産会社が保管する個人情報の取り扱いについては、不動産会社に直接お問い合わせください。
東京都知事免許(1)第107337号 |
|---|
- 交通:
- JR山手線/新宿駅 徒歩1分
- 東京都新宿区西新宿1丁目3-3 品川ステーションビル新宿5F
- TEL:
- 03-6258-0867
- 所属団体:
- (公社)東京都宅地建物取引業協会会員(公社)首都圏不動産公正取引協議会加盟
取引態様:仲介  - 00278932
|
- スマートフォンで
この不動産会社を見る

|
- 提携サイト等より掲載されている物件情報につきましては、不動産会社詳細情報にリンクされていないものがあります。
- 物件に関するお問合せは、物件詳細ページの「情報提供会社」に表示されている不動産会社へ直接お願いいたします。
- 間取図は、現況を優先させていただきます。
- 映像は物件の一部を撮影したものです。物件の契約にあたっての最終判断はご自身の判断に基づいて行ってください。
- 仲介手数料について

アットホームは物件情報の適正化に努めております。
内容に誤りがある場合にはこちらへご連絡ください。