東京都大田区大森西3丁目(大森町駅)の賃貸:物件詳細
交通 所在地 |
駅徒歩 |
賃料 管理費等 |
敷金/保証金 礼金 |
間取り 面積 |
物件種目 築年月 |
|
京急本線/大森町
東京都大田区大森西3丁目
|
5分
|
29.8万円
なし
|
1ヶ月 / なし
1ヶ月
|
3LDK
92.50m²
|
賃貸一戸建て
2022年7月(築3年8ヶ月)
|
角部屋、南向き、二人入居可、2面採光、24時間換気システム、閑静な住宅街
|
|
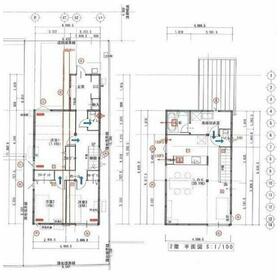
間取図
浴室乾燥機 追い焚き機能付き
|
外観
外観
|
<
その他の画像
>
|
| 交通 | 京急本線 大森町駅 徒歩5分 |
|---|
| その他の交通 | 京急本線 梅屋敷駅 徒歩11分 京急本線 平和島駅 徒歩14分 |
| 所在地 |
東京都大田区大森西3丁目
|
| 物件種目 |
賃貸一戸建て |
| 賃料 |
29.8万円 |
管理費等 |
なし |
| 敷金 / 保証金 |
1ヶ月 / なし |
礼金 |
1ヶ月 |
| 敷引 |
- |
保証金償却 |
- |
| その他一時金 |
保険料月額:720円 |
保険等 |
要 |
| 維持費等 |
- |
| 間取り |
3LDK(LDK20.1、洋7.9、洋5、洋5) |
専有面積 |
92.50m² |
| 築年月 |
2022年7月(築3年8ヶ月)
|
階建 / 階 |
2階建 |
| 建物構造 |
木造 |
総戸数 |
- |
| 主要採光面 |
南 |
駐車場 |
有 無料 |
| バイク置き場 |
- |
駐輪場 |
有 |
| 建物名・部屋番号 |
ユーハウスA |
ペット |
-
|
| リフォーム履歴 |
- |
| リノベーション履歴 |
- |
| 備考 |
賃貸保証等:加入要(初回総賃料の50% 月額800円+口座振替220円)
管理形態/管理員の勤務形態:-/-
戸建て賃貸!リビング20.1帖各階にトイレ有!宅配ボックス◆HPに写真50枚動画360度パノラマ画像類似物件等多数掲載中◆大田区蒲田駅近辺はもちろん京浜東北線、京浜急行本線、京急空港線、東急池上線多摩川線の賃貸お部屋探しは過半数のスタッフが大田区品川区在住地元地域密着の蒲田大森不動産へお任せ下さい。住んで、選んで良かったと言って頂けるお部屋探します!オススメ物件、近隣評判のお店も
転勤や社宅、初めての一人暮らし、1LDK、2LDK、二人暮らし、ご結婚、同棲、ご家族ファミリータイプのお引越し、ルームシェアやデザイナーズ!治安や周辺環境はもちろん賃貸に関する事お任せ下さい。大田区蒲田周辺の賃貸お部屋探しは地元密着の蒲田大森不動産へ!
人気賃貸おすすめ物件等スタッフが住んでいるからこそ分かる部分までご説明させて頂きます。地元の人から評判や評価の高いお店飲食店etc
品川区大田区京浜東北線、大森駅、蒲田駅、京浜急行本線の立会川駅、大森海岸駅、平和島駅、大森町駅、梅屋敷駅、京急蒲田駅、雑色駅、六郷建駅、京急空港線、京急蒲田駅、糀谷駅、大鳥居駅、穴守稲荷駅、東急池上駅線、蒲田駅、蓮沼駅、池上
|
| エネルギー消費性能 |
- |
| 断熱性能 |
- |
| 目安光熱費 |
- |
| バス・トイレ |
バス・トイレ別、浴室乾燥機、追焚機能、洗面所独立、洗面所、温水洗浄便座、トイレ2ヶ所、トイレ |
| キッチン |
カウンターキッチン、システムキッチン、IHクッキングヒーター、3口以上コンロ |
| セキュリティー |
モニター付インターホン |
| 収納 |
収納スペース、シューズインクローゼット、クローゼット、シューズボックス |
| 設備・サービス |
室内洗濯機置場、洗濯機置場、全居室フローリング、フローリング、都市ガス、エアコン |
| TV・通信 |
- |
| その他 |
宅配BOX、駐輪場 |
| 契約期間 |
3年 |
現況 |
空家 |
| 条件等 |
定期借家 |
入居可能時期 |
即時 |
| 更新料 |
新賃料 1ヶ月 |
物件番号 |
1161058019 |
| 情報公開日 |
2026年1月15日 |
次回更新予定日 |
2026年3月1日 |
| ケータイ用バーコード |
- スマートフォンでこの物件を見る
- スマートフォンからもこの物件をご覧になれます。
|
※「-」と表示されている項目については、情報提供会社にご確認ください。
| 周辺施設 |
マルエツ 大森町店 |
| 距離 |
505m |
写真を見る |
| 周辺施設 |
スーパーなんぶや |
| 距離 |
197m |
写真を見る |
| 周辺施設 |
全日食チェーンスーパーイコール |
| 距離 |
182m |
写真を見る |
| 周辺施設 |
セブン‐イレブン 大田区大森町店 |
| 距離 |
161m |
写真を見る |
| 周辺施設 |
ファミリーマート大田大森中一丁目店 |
| 距離 |
500m |
写真を見る |
| 周辺施設 |
ドラッグストア・スマイル 大森町店 |
| 距離 |
195m |
写真を見る |
| 周辺施設 |
キャン・ドゥ 大森町店 |
| 距離 |
312m |
写真を見る |
| 周辺施設 |
警視庁大森警察署 |
| 距離 |
572m |
写真を見る |
ここから簡単にお問い合わせをすることができます。
(SSLでの暗号化での送信を希望されるお客さまは
こちら
よりお問い合わせください)
お問い合わせを行う前に
「個人情報の取り扱いについて」を必ずお読みください。
「個人情報の取り扱いについて」に同意いただいた場合は「上記にご同意の上 確認画面へ進む」のボタンをクリックしてください。
個人情報の取り扱いについて
皆さまが送付された個人情報はアットホーム(株)のサーバを経由し、お問い合わせ先の不動産会社にメールまたはFAXにて転送されるためアットホーム(株)にも保管されます。アットホーム(株)で保管された個人情報の取り扱いについては、【こちら】をご覧ください。
また、本画面でご記入いただいた個人情報は、お問い合わせ先の不動産会社でも保管します。 お問い合わせ先の不動産会社が保管する個人情報の取り扱いについては、不動産会社に直接お問い合わせください。
東京都知事免許(2)第100926号 |
|---|
- 交通:
- JR京浜東北線/蒲田駅 徒歩1分
- 東京都大田区蒲田5丁目16-8 鵠沼ビル 3階
- TEL:
- 03-6404-9221
- FAX:
- 03-6404-9231
- 所属団体:
- (公社)東京都宅地建物取引業協会会員(公社)首都圏不動産公正取引協議会加盟
取引態様:仲介  - 00263036
|
- スマートフォンで
この不動産会社を見る

|
- 提携サイト等より掲載されている物件情報につきましては、不動産会社詳細情報にリンクされていないものがあります。
- 物件に関するお問合せは、物件詳細ページの「情報提供会社」に表示されている不動産会社へ直接お願いいたします。
- 間取図は、現況を優先させていただきます。
- 映像は物件の一部を撮影したものです。物件の契約にあたっての最終判断はご自身の判断に基づいて行ってください。
- 仲介手数料について

アットホームは物件情報の適正化に努めております。
内容に誤りがある場合にはこちらへご連絡ください。