東京都千代田区神田須田町2丁目(秋葉原駅)の賃貸:物件詳細
交通 所在地 |
駅徒歩 |
賃料 管理費等 |
敷金/保証金 礼金 |
間取り 面積 |
物件種目 築年月 |
|
JR山手線/秋葉原
東京都千代田区神田須田町2丁目
|
5分
|
10.2万円
7,000円
|
1ヶ月 / なし
1ヶ月
|
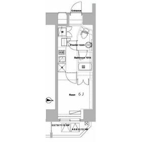
1K
23.08m²
|
賃貸マンション
2007年6月(築18年6ヶ月)
|
常時ゴミ出し可能、IT重説対応物件、保証人不要
|
|
間取図
間取図
|
外観
エントランス
|
<
その他の画像
>
|
| 交通 | JR山手線 秋葉原駅 徒歩5分 |
|---|
| その他の交通 | 東京メトロ銀座線 神田駅 徒歩5分 東京メトロ丸ノ内線 淡路町駅 徒歩6分 |
| 所在地 |
東京都千代田区神田須田町2丁目
|
| 物件種目 |
賃貸マンション |
| 賃料 |
10.2万円 |
管理費等 |
7,000円 |
| 敷金 / 保証金 |
1ヶ月 / なし |
礼金 |
1ヶ月 |
| 敷引 |
- |
保証金償却 |
- |
| その他一時金 |
なし、鍵交換代等:22,000円~ |
保険等 |
不要 |
| 維持費等 |
ジャパンライフサポート24:1,100円/月 |
クレジットカード決済 |
初期費用可 |
| 間取り |
1K |
専有面積 |
23.08m² |
| 築年月 |
2007年6月(築18年6ヶ月)
|
階建 / 階 |
15階建 / 10階 |
| 建物構造 |
RC |
総戸数 |
- |
| 主要採光面 |
東 |
駐車場 |
- |
| バイク置き場 |
無 |
駐輪場 |
無 |
| 建物名・部屋番号 |
フォレシティ神田須田町 |
ペット |
-
|
| アピールポイント |
ご入居日・諸条件の交渉など弊社にお任せください。
物件のメリットだけではなく、経験豊富なスタッフがプロの目線からデメリットも含め詳しくご説明させていただきます!
|
| リフォーム履歴 |
- |
| リノベーション履歴 |
- |
| 備考 |
賃貸保証等:加入要(40%~)
管理形態/管理員の勤務形態:-/-
IT重説対応物件
お部屋探しはIvelにお任せ下さい!
ご不明点・ご不安点をわかりやすくご説明いたします。
法人契約にも精通しておりますので、法人規定や条件変更の交渉などお気軽にお申し付けくださいませ。
【お電話問い合わせ先:03-5296-9880】
|
| エネルギー消費性能 |
- |
| 断熱性能 |
- |
| 目安光熱費 |
- |
| バス・トイレ |
バス・トイレ別、浴室乾燥機、シャワー付洗面化粧台、洗面所独立、温水洗浄便座 |
| キッチン |
システムキッチン、2口コンロ |
| セキュリティー |
オートロック、モニター付インターホン |
| 収納 |
クローゼット、シューズボックス |
| 設備・サービス |
室内洗濯機置場、フローリング、都市ガス、エアコン |
| TV・通信 |
光ファイバー |
| その他 |
宅配BOX、バルコニー、エレベーター |
| 契約期間 |
2年 |
現況 |
居住中 |
| 条件等 |
- |
入居可能時期 |
相談 |
| 更新料 |
新賃料 1ヶ月 |
物件番号 |
1161115715 |
| 情報公開日 |
2025年11月4日 |
次回更新予定日 |
2025年11月18日 |
| ケータイ用バーコード |
- スマートフォンでこの物件を見る
- スマートフォンからもこの物件をご覧になれます。
|
※「-」と表示されている項目については、情報提供会社にご確認ください。
| 周辺施設 |
デジタルハリウッド大学駿河台キャンパス |
| 距離 |
660m |
写真を見る |
| 周辺施設 |
東京医科歯科大学歯学部附属病院 |
| 距離 |
1090m |
写真を見る |
| 周辺施設 |
成城石井アトレ秋葉原1店 |
| 距離 |
330m |
写真を見る |
| 周辺施設 |
ファミリーマート神田須田町二丁目店 |
| 距離 |
60m |
写真を見る |
| 周辺施設 |
秋葉原ラジオ会館 |
| 距離 |
260m |
写真を見る |
ここから簡単にお問い合わせをすることができます。
(SSLでの暗号化での送信を希望されるお客さまは
こちら
よりお問い合わせください)
お問い合わせを行う前に
「個人情報の取り扱いについて」を必ずお読みください。
「個人情報の取り扱いについて」に同意いただいた場合は「上記にご同意の上 確認画面へ進む」のボタンをクリックしてください。
個人情報の取り扱いについて
皆さまが送付された個人情報はアットホーム(株)のサーバを経由し、お問い合わせ先の不動産会社にメールまたはFAXにて転送されるためアットホーム(株)にも保管されます。アットホーム(株)で保管された個人情報の取り扱いについては、【こちら】をご覧ください。
また、本画面でご記入いただいた個人情報は、お問い合わせ先の不動産会社でも保管します。 お問い合わせ先の不動産会社が保管する個人情報の取り扱いについては、不動産会社に直接お問い合わせください。
東京都知事免許(1)第110072号 |
|---|
- 交通:
- JR山手線/秋葉原駅 徒歩3分
- 東京都千代田区神田岩本町1-13 秋葉原清新ビル4F
- TEL:
- 03-5296-9880
- FAX:
- 03-5296-9881
- 所属団体:
- (公社)東京都宅地建物取引業協会会員(公社)首都圏不動産公正取引協議会加盟
取引態様:仲介  - 00276402
|
- スマートフォンで
この不動産会社を見る

|
- 提携サイト等より掲載されている物件情報につきましては、不動産会社詳細情報にリンクされていないものがあります。
- 物件に関するお問合せは、物件詳細ページの「情報提供会社」に表示されている不動産会社へ直接お願いいたします。
- 間取図は、現況を優先させていただきます。
- 映像は物件の一部を撮影したものです。物件の契約にあたっての最終判断はご自身の判断に基づいて行ってください。
- 仲介手数料について

アットホームは物件情報の適正化に努めております。
内容に誤りがある場合にはこちらへご連絡ください。