不動産 賃貸 マンション等の住宅情報:埼玉住まい情報


大阪府吹田市千里丘下(千里丘駅)の賃貸:物件詳細

  • 物件詳細
  • 情報の見方
  • 印刷用画面
交通
所在地
駅徒歩 賃料
管理費等
敷金/保証金
礼金
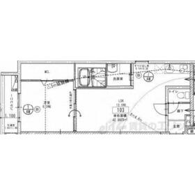
間取り
面積
物件種目
築年月

JR東海道本線/千里丘 新着

大阪府吹田市千里丘下

10分

8.45万円

5,400円

なし / なし

15万円

1LDK

43.26m²

賃貸アパート

2024年10月(築1年2ヶ月)

おすすめPOINT最上階、二人入居可、IT重説対応物件

おすすめコメント  スタッフ: 畠山 秀太

駐輪場付で、通勤・通学・お買い物など自転車をご利用いただけます。

間取図

間取図

間取図

その他の画像
  • ショッピング施設
  • 公園
  • 病院
  • コンビニ
  • ショッピング施設
  • 大学
  • 役所
    • とりあえず保存
    • お問い合わせ
    交通

    JR東海道本線 千里丘駅 徒歩10分

    その他の交通

    阪急京都線 摂津市駅 徒歩18分

    大阪モノレール本線 宇野辺駅 徒歩27分

    所在地 大阪府吹田市千里丘下
    物件種目 賃貸アパート
    賃料 8.45万円 管理費等 5,400円
    敷金 / 保証金 なし / なし 礼金 15万円
    敷引 保証金償却
    その他一時金 室内清掃費用:33,000円、鍵交換代等:11,000円~ 保険等
    維持費等 クレジットカード決済 初期費用可
    間取り 1LDK 専有面積 43.26m²
    築年月 2024年10月(築1年2ヶ月) 階建 / 階 3階建 / 3階
    建物構造 木造 総戸数 12戸
    主要採光面 南西 駐車場
    バイク置き場 駐輪場 有 無料
    建物名・部屋番号 フジパレス千里丘III番館 ペット
    アピールポイント 駐輪場付で、通勤・通学・お買い物など自転車をご利用いただけます。
    リフォーム履歴
    リノベーション履歴
    備考
    管理形態/管理員の勤務形態:-/-
    IT重説対応物件
    駐輪場付で、通勤・通学・お買い物など自転車をご利用いただけます。
    エネルギー消費性能
    断熱性能
    目安光熱費
    バス・トイレ バス・トイレ別、浴室乾燥機、シャワー付洗面化粧台、洗面所独立、温水洗浄便座、トイレ
    キッチン システムキッチン、IHクッキングヒーター、2口コンロ
    セキュリティー オートロック、モニター付インターホン、防犯カメラ
    収納 ウォークインクローゼット、クローゼット、シューズボックス
    設備・サービス 室内洗濯機置場、都市ガス給湯、給湯、フローリング、都市ガス、エアコン、照明器具
    TV・通信 インターネット対応、インターネット使用料無料、光ファイバー、ケーブルTV、CS、BS端子
    その他 宅配BOX、バルコニー、駐輪場
    契約期間 2年 現況 空家
    条件等 入居可能時期 2025年11月中旬予定
    更新料 7,700円 物件番号 1161209315
    情報公開日 2025年11月4日 次回更新予定日 2025年11月18日
    ケータイ用バーコード

    QRコード

    スマートフォンでこの物件を見る
    スマートフォンからもこの物件をご覧になれます。
    ※「-」と表示されている項目については、情報提供会社にご確認ください。

    この物件の周辺情報

    周辺施設 ほっかほっか亭JR千里丘店
    距離 270m
    周辺施設 フォルテ摂津
    距離 650m
    周辺施設 岩倉公園
    距離 2960m
    周辺施設 たかぎこどもクリニック
    距離 2420m
    周辺施設 セブンイレブン摂津千里丘2丁目店
    距離 340m
    周辺施設 スーパーマルヤスJR千里丘店
    距離 210m
    周辺施設 私立立命館大学大阪いばらきキャンパス
    距離 2730m
    周辺施設 茨木市役所
    距離 3950m

    クイックお問い合わせ

    ここから簡単にお問い合わせをすることができます。
    (SSLでの暗号化での送信を希望されるお客さまは こちら よりお問い合わせください)

    お問い合わせ内容(必須)
    お名前(必須) 姓  名 
    メールアドレス(必須)
    ※携帯電話のメールアドレスをご入力される方はこちらをご確認ください
    電話番号(必須)
    - -

    ※入力いただいた電話番号へSMSまたは音声でパスワードをご連絡します。

    携帯電話の番号をご入力の方へ

    携帯電話の番号をご入力の方へ
    確認画面にて送信ボタンをクリックするとSMSが携帯電話に届きます。
    そのSMSに記載のパスワード(認証番号)を入力し、お問い合わせを完了してください。
    尚、SMSの送信者番号は 0005 202 760 となります。
    これはアットホームの固定番号です。

    備考欄 希望条件、物件案内希望日、質問などがございましたらご記入ください。
    お問い合わせを行う前に「個人情報の取り扱いについて」を必ずお読みください。
    「個人情報の取り扱いについて」に同意いただいた場合は「上記にご同意の上 確認画面へ進む」のボタンをクリックしてください。

    個人情報の取り扱いについて

    皆さまが送付された個人情報はアットホーム(株)のサーバを経由し、お問い合わせ先の不動産会社にメールまたはFAXにて転送されるためアットホーム(株)にも保管されます。アットホーム(株)で保管された個人情報の取り扱いについては、【こちら】をご覧ください。
    また、本画面でご記入いただいた個人情報は、お問い合わせ先の不動産会社でも保管します。 お問い合わせ先の不動産会社が保管する個人情報の取り扱いについては、不動産会社に直接お問い合わせください。

    情報提供会社

    情報提供会社

    (株)エリッツ JR茨木店

    国土交通大臣免許(7)第5206号

    交通:
    JR東海道本線/茨木駅 徒歩1分
    大阪府茨木市西駅前町2番8号 
    TEL:
    0120-958-133
    FAX:
    072-631-3956
    所属団体:
    (一社)大阪府宅地建物取引業協会会員
    (公社)近畿地区不動産公正取引協議会加盟

    取引態様:仲介

    • 会社情報
    • 50102800
    スマートフォンで
    この不動産会社を見る
    QRコード
    • とりあえず保存
    • お問い合わせ
    • 提携サイト等より掲載されている物件情報につきましては、不動産会社詳細情報にリンクされていないものがあります。
    • 物件に関するお問合せは、物件詳細ページの「情報提供会社」に表示されている不動産会社へ直接お願いいたします。
    • 間取図は、現況を優先させていただきます。
    • 映像は物件の一部を撮影したものです。物件の契約にあたっての最終判断はご自身の判断に基づいて行ってください。
    • 仲介手数料について仲介手数料

    アットホームは物件情報の適正化に努めております。 内容に誤りがある場合にはこちらへご連絡ください。

    【埼玉住まい情報】では、日本全国の物件から賃貸マンションや賃貸アパート・賃貸一戸建て等の賃貸住宅情報、新築マンション・分譲マンションや中古マンション等の売買マンション情報、新築一戸建てや中古一戸建てなどの戸建住宅、 土地など、総合的な不動産住宅情報検索サービスを提供致します。
    【埼玉住まい情報】から、選りすぐりの不動産物件を探してみましょう。

    【免責事項】
    このコーナーの運営はアットホーム株式会社(https://www.athome.co.jp/)が行っています。
    このコーナーに掲載している物件情報は、「アットホーム不動産情報ネットワーク」に加盟する不動産会社等(情報提供元)から提供されています。信頼性の高い情報提供が行えるよう、最大限の努力をしておりますが、その内容を保証するものではありません。 利用者のみなさまと各情報提供元との取引に起因する損害および情報が掲載されたことに起因する損害等については、株式会社イーシティ埼玉、およびアットホームは一切責任を負いません。
    各物件情報の内容や画像等はすべて現況を優先させていただきます。
    お取引等(お取引の準備、資金調達等を含みます)の際には、内容や契約条件等について、各情報提供元より十分な説明を受け、ご自身でご確認の上、判断してください。
    このコーナーへの物件情報のご掲載、その他不動産業務ソリューション等についての不動産会社様のお問合せはこちらからお願いいたします。

    物件画像: