東京都町田市成瀬が丘2丁目(成瀬駅)の賃貸:物件詳細
交通 所在地 |
駅徒歩 |
賃料 管理費等 |
敷金/保証金 礼金 |
間取り 面積 |
物件種目 築年月 |
|
JR横浜線/成瀬
東京都町田市成瀬が丘2丁目
|
1分
|
7.4万円
3,000円
|
1ヶ月 / なし
1ヶ月
|
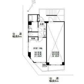
1K
27.04m²
|
賃貸マンション
2009年3月(築16年10ヶ月)
|
分譲タイプ、角部屋、最上階
|
|
間取図
|
外観
|
<
その他の画像
>
|
| 交通 | JR横浜線 成瀬駅 徒歩1分 |
|---|
| その他の交通 | 東急田園都市線 つくし野駅 徒歩24分 JR横浜線 長津田駅 徒歩32分 |
| 所在地 |
東京都町田市成瀬が丘2丁目
|
| 物件種目 |
賃貸マンション |
| 賃料 |
7.4万円 |
管理費等 |
3,000円 |
| 敷金 / 保証金 |
1ヶ月 / なし |
礼金 |
1ヶ月 |
| 敷引 |
- |
保証金償却 |
- |
| その他一時金 |
鍵交換代等:19,800円 |
保険等 |
要 |
| 維持費等 |
- |
| 間取り |
1K(洋室7.6畳) |
専有面積 |
27.04m² |
| 築年月 |
2009年3月(築16年10ヶ月)
|
階建 / 階 |
4階建 / 3階 |
| 建物構造 |
RC |
総戸数 |
- |
| 主要採光面 |
北西 |
駐車場 |
無 |
| バイク置き場 |
- |
駐輪場 |
有 |
| 建物名・部屋番号 |
成瀬スカイステージ 301 |
ペット |
-
|
| アピールポイント |
成瀬駅から徒歩1分の好立地!角部屋で開放感があり、静かで快適な住環境が魅力の1Kマンションです。バス・トイレ別、浴室乾燥機、温水洗浄便座付きで、毎日の生活がより快適に♪ガスコンロ付きキッチンで料理もスムーズに楽しめます。収納スペースやシューズボックスも完備しており、お部屋をすっきりと使えるのも嬉しいポイント。駅近で通勤・通学にも便利な理想のお部屋を、ぜひ一度ご覧ください! |
| リフォーム履歴 |
- |
| リノベーション履歴 |
- |
| 備考 |
賃貸保証等:加入要(初回保証委託料(賃料・管理費等の合計)50%・年間保証委託料10,000円)
管理形態/管理員の勤務形態:-/-
単身者限定、非喫煙者限定、区画整理地内
|
| エネルギー消費性能 |
- |
| 断熱性能 |
- |
| 目安光熱費 |
- |
| バス・トイレ |
バス・トイレ別、浴室乾燥機、洗面台、シャワー、温水洗浄便座、トイレ |
| キッチン |
ガスコンロ付 |
| セキュリティー |
- |
| 収納 |
収納スペース、クローゼット、シューズボックス |
| 設備・サービス |
室内洗濯機置場、給湯、都市ガス、エアコン |
| TV・通信 |
- |
| その他 |
バルコニー、駐輪場 |
| 契約期間 |
2年 |
現況 |
空家 |
| 条件等 |
- |
入居可能時期 |
即時 |
| 更新料 |
新賃料 1.1ヶ月 |
物件番号 |
1161438709 |
| 情報公開日 |
2025年8月27日 |
次回更新予定日 |
2025年12月24日 |
| ケータイ用バーコード |
- スマートフォンでこの物件を見る
- スマートフォンからもこの物件をご覧になれます。
|
※「-」と表示されている項目については、情報提供会社にご確認ください。
| 周辺施設 |
BIG YOSUN(ビッグ ヨーサン) 成瀬店(成瀬本店) |
| 距離 |
106m |
写真を見る |
| 周辺施設 |
そうてつローゼン成瀬店 |
| 距離 |
290m |
写真を見る |
| 周辺施設 |
セブンイレブン 町田成瀬駅南口店 |
| 距離 |
21m |
写真を見る |
| 周辺施設 |
ローソン 町田南成瀬一丁目店 |
| 距離 |
286m |
写真を見る |
| 周辺施設 |
くすりセイジョー 成瀬南口店 |
| 距離 |
75m |
写真を見る |
| 周辺施設 |
成瀬駅前郵便局 |
| 距離 |
525m |
写真を見る |
| 周辺施設 |
横浜銀行成瀬支店 |
| 距離 |
228m |
写真を見る |
| 周辺施設 |
りそな銀行 成瀬支店 |
| 距離 |
172m |
写真を見る |
ここから簡単にお問い合わせをすることができます。
(SSLでの暗号化での送信を希望されるお客さまは
こちら
よりお問い合わせください)
お問い合わせを行う前に
「個人情報の取り扱いについて」を必ずお読みください。
「個人情報の取り扱いについて」に同意いただいた場合は「上記にご同意の上 確認画面へ進む」のボタンをクリックしてください。
個人情報の取り扱いについて
皆さまが送付された個人情報はアットホーム(株)のサーバを経由し、お問い合わせ先の不動産会社にメールまたはFAXにて転送されるためアットホーム(株)にも保管されます。アットホーム(株)で保管された個人情報の取り扱いについては、【こちら】をご覧ください。
また、本画面でご記入いただいた個人情報は、お問い合わせ先の不動産会社でも保管します。 お問い合わせ先の不動産会社が保管する個人情報の取り扱いについては、不動産会社に直接お問い合わせください。
国土交通大臣免許(8)第4173号 |
|---|
- 交通:
- JR横浜線/成瀬駅 徒歩1分
- 東京都町田市南成瀬1丁目1-2 プラザナルセ1F
- TEL:
- 042-728-5941
- FAX:
- 042-729-1377
- 所属団体:
- (公社)東京都宅地建物取引業協会会員不動産公正取引協議会加盟
取引態様:仲介  - 00120683
|
- スマートフォンで
この不動産会社を見る

|
- 提携サイト等より掲載されている物件情報につきましては、不動産会社詳細情報にリンクされていないものがあります。
- 物件に関するお問合せは、物件詳細ページの「情報提供会社」に表示されている不動産会社へ直接お願いいたします。
- 間取図は、現況を優先させていただきます。
- 映像は物件の一部を撮影したものです。物件の契約にあたっての最終判断はご自身の判断に基づいて行ってください。
- 仲介手数料について

アットホームは物件情報の適正化に努めております。
内容に誤りがある場合にはこちらへご連絡ください。