神奈川県横浜市神奈川区大口通(子安駅)の賃貸:物件詳細
交通 所在地 |
駅徒歩 |
賃料 管理費等 |
敷金/保証金 礼金 |
間取り 面積 |
物件種目 築年月 |
|
京急本線/子安
神奈川県横浜市神奈川区大口通
|
5分
|
7.4万円
15,000円
|
なし / なし
1ヶ月
|
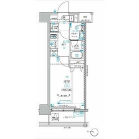
1K
21.00m²
|
賃貸マンション
2024年4月(築2年)
|
ペット相談、分譲タイプ、24時間換気システム、外観タイル張り、保証人不要
|
|
間取図
|
外観
|
<
その他の画像
>
|
| 交通 | 京急本線 子安駅 徒歩5分 |
|---|
| その他の交通 | JR横浜線 大口駅 徒歩7分 JR京浜東北線 新子安駅 徒歩14分 |
| 所在地 |
神奈川県横浜市神奈川区大口通
|
| 物件種目 |
賃貸マンション |
| 賃料 |
7.4万円 |
管理費等 |
15,000円 |
| 敷金 / 保証金 |
なし / なし |
礼金 |
1ヶ月 |
| 敷引 |
- |
保証金償却 |
- |
| その他一時金 |
なし |
保険等 |
要 2年 20,000円 |
| 維持費等 |
- |
クレジットカード決済 |
初期費用可 |
| 間取り |
1K(洋6.5) |
専有面積 |
21.00m² |
| 築年月 |
2024年4月(築2年)
|
階建 / 階 |
地上7階地下1階建 / 6階 |
| 建物構造 |
RC |
総戸数 |
- |
| 主要採光面 |
西 |
駐車場 |
- |
| バイク置き場 |
- |
駐輪場 |
- |
| 建物名・部屋番号 |
リルシア横濱東 602 |
ペット |
相談 |
| リフォーム履歴 |
- |
| リノベーション履歴 |
- |
| 備考 |
賃貸保証等:加入要(初回保証料:月額総賃料の50%)
管理形態/管理員の勤務形態:-/-
単身者限定
保証会社利用必須 初回保証料:月額総賃料の50%
顔認証登録費:7700円
ペット相談可:敷金1ヶ月増・償却、犬又は猫1匹迄(成長時体長50cm・体重10kg相当迄)
安心入居サポート:17600円
引っ越し虫駆除サービス:17600円
短期解約違約金:1年未満の解約で総賃料1ヶ月分
退去時のクリーニング費用(実費)は借主負担になります
|
| エネルギー消費性能 |
- |
| 断熱性能 |
- |
| 目安光熱費 |
- |
| バス・トイレ |
バス・トイレ別、浴室乾燥機、温水洗浄便座、トイレ |
| キッチン |
システムキッチン、2口コンロ、ガスコンロ可 |
| セキュリティー |
モニター付オートロック、オートロック、モニター付インターホン、ダブルロックドア、防犯カメラ |
| 収納 |
収納スペース、クローゼット、シューズボックス |
| 設備・サービス |
室内洗濯機置場、洗濯機置場、全居室フローリング、フローリング、都市ガス、エアコン、照明器具 |
| TV・通信 |
インターネット対応、インターネット使用料無料、CS、BS端子 |
| その他 |
宅配BOX、バルコニー、エレベーター |
| 契約期間 |
2年 |
現況 |
居住中 |
| 条件等 |
- |
入居可能時期 |
2026年6月上旬予定 |
| 更新料 |
新賃料 1ヶ月 |
物件番号 |
1161467522 |
| 情報公開日 |
2026年3月6日 |
次回更新予定日 |
2026年3月20日 |
| ケータイ用バーコード |
- スマートフォンでこの物件を見る
- スマートフォンからもこの物件をご覧になれます。
|
※「-」と表示されている項目については、情報提供会社にご確認ください。
| 周辺施設 |
そうてつローゼン |
| 距離 |
261m |
写真を見る |
| 周辺施設 |
ミニストップ大口入江店 |
| 距離 |
598m |
写真を見る |
| 周辺施設 |
セブンイレブン 横浜大口仲町店 |
| 距離 |
584m |
写真を見る |
| 周辺施設 |
ピアゴ大口店 |
| 距離 |
791m |
写真を見る |
| 周辺施設 |
オーケー新子安店 |
| 距離 |
811m |
写真を見る |
ここから簡単にお問い合わせをすることができます。
(SSLでの暗号化での送信を希望されるお客さまは
こちら
よりお問い合わせください)
お問い合わせを行う前に
「個人情報の取り扱いについて」を必ずお読みください。
「個人情報の取り扱いについて」に同意いただいた場合は「上記にご同意の上 確認画面へ進む」のボタンをクリックしてください。
個人情報の取り扱いについて
皆さまが送付された個人情報はアットホーム(株)のサーバを経由し、お問い合わせ先の不動産会社にメールまたはFAXにて転送されるためアットホーム(株)にも保管されます。アットホーム(株)で保管された個人情報の取り扱いについては、【こちら】をご覧ください。
また、本画面でご記入いただいた個人情報は、お問い合わせ先の不動産会社でも保管します。 お問い合わせ先の不動産会社が保管する個人情報の取り扱いについては、不動産会社に直接お問い合わせください。
国土交通大臣免許(3)第8175号 |
|---|
- 交通:
- JR京浜東北線/横浜駅 徒歩5分
- 神奈川県横浜市神奈川区鶴屋町2丁目21-9 三善ビル5階
- TEL:
- 0120-955-199
- FAX:
- 045-620-4527
- 所属団体:
- (公社)神奈川県宅地建物取引業協会会員(公社)首都圏不動産公正取引協議会加盟
取引態様:仲介  - 00267740
|
- スマートフォンで
この不動産会社を見る

|
- 提携サイト等より掲載されている物件情報につきましては、不動産会社詳細情報にリンクされていないものがあります。
- 物件に関するお問合せは、物件詳細ページの「情報提供会社」に表示されている不動産会社へ直接お願いいたします。
- 間取図は、現況を優先させていただきます。
- 映像は物件の一部を撮影したものです。物件の契約にあたっての最終判断はご自身の判断に基づいて行ってください。
- 仲介手数料について

アットホームは物件情報の適正化に努めております。
内容に誤りがある場合にはこちらへご連絡ください。