東京都中野区東中野5丁目(東中野駅)の賃貸:物件詳細
交通 所在地 |
駅徒歩 |
賃料 管理費等 |
敷金/保証金 礼金 |
間取り 面積 |
物件種目 築年月 |
|
JR総武線/東中野
東京都中野区東中野5丁目
|
7分
|
18.5万円
9,000円
|
1ヶ月 / なし
なし
|
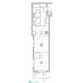
1LDK
38.63m²
|
賃貸マンション
2023年6月(築2年6ヶ月)
|
ペット相談、二人入居可、閑静な住宅街、IT重説対応物件、保証人不要
|
|
間取図
|
外観
|
<
その他の画像
>
|
| 交通 | JR総武線 東中野駅 徒歩7分 |
|---|
| その他の交通 | 東京メトロ東西線 落合駅 徒歩8分 都営大江戸線 中井駅 徒歩13分 |
| 所在地 |
東京都中野区東中野5丁目
|
| 物件種目 |
賃貸マンション |
| 賃料 |
18.5万円 |
管理費等 |
9,000円 |
| 敷金 / 保証金 |
1ヶ月 / なし |
礼金 |
なし |
| 敷引 |
- |
保証金償却 |
- |
| その他一時金 |
入居者サポート:16,500円、鍵交換代等:25,300円~ |
保険等 |
要 2年 25,000円 |
| 維持費等 |
- |
クレジットカード決済 |
初期費用可 |
| 間取り |
1LDK(LDK7.8帖 洋室5.5帖) |
専有面積 |
38.63m² |
| 築年月 |
2023年6月(築2年6ヶ月)
|
階建 / 階 |
5階建 / 1階 |
| 建物構造 |
RC |
総戸数 |
- |
| 主要採光面 |
北東 |
駐車場 |
- |
| バイク置き場 |
有 |
駐輪場 |
有 |
| 建物名・部屋番号 |
レジデンス東中野ガーデン 109 |
ペット |
小型犬可・ 猫可 |
| アピールポイント |
内見のご予約先は【タウンハウジング】になります♪【現地待ち合わせ・オンライン内見・オンライン申し込み】もご対応致します★インターネット上の物件はほぼ全てご案内可能ですのでそちらも併せてお申し付け下さい★ |
| リフォーム履歴 |
- |
| リノベーション履歴 |
- |
| 備考 |
賃貸保証等:加入要(賃貸保証料:0.30ヶ月 初回保証料:賃料総額の30%)
管理形態/管理員の勤務形態:-/-
IT重説対応物件
★インターネット上の物件はほぼ全てご紹介可能★
タウンハウジングは、200社以上の会社と取引があり、常に新着の情報を仕入れております。 地域トップクラスの情報量・取扱い物件をお客様にご提案させていただきます。一部クレジット払いも対応しています♪♪オンライン内見、オンライン申し込みも対応可能★
|
| エネルギー消費性能 |
- |
| 断熱性能 |
- |
| 目安光熱費 |
- |
| バス・トイレ |
バス・トイレ別、浴室暖房、浴室乾燥機、シャワー付洗面化粧台、洗面所独立、洗面所、洗面台、シャワー、温水洗浄便座、トイレ |
| キッチン |
カウンターキッチン、システムキッチン、3口以上コンロ、ガスコンロ付、グリル |
| セキュリティー |
モニター付オートロック、オートロック、モニター付インターホン |
| 収納 |
ウォークインクローゼット、収納スペース、クローゼット、シューズボックス |
| 設備・サービス |
室内洗濯機置場、都市ガス給湯、給湯、全居室フローリング、フローリング、都市ガス、エアコン |
| TV・通信 |
インターネット対応、インターネット使用料無料、CS、BS端子 |
| その他 |
宅配BOX、バイク置き場、バルコニー、駐輪場、エレベーター |
| 契約期間 |
2年 |
現況 |
空家 |
| 条件等 |
- |
入居可能時期 |
即時 |
| 更新料 |
新賃料 1ヶ月 |
物件番号 |
1161488915 |
| 情報公開日 |
2025年11月4日 |
次回更新予定日 |
2025年11月18日 |
| ケータイ用バーコード |
- スマートフォンでこの物件を見る
- スマートフォンからもこの物件をご覧になれます。
|
※「-」と表示されている項目については、情報提供会社にご確認ください。
| 周辺施設 |
ユニゾンモール |
| 距離 |
400m |
写真を見る |
| 周辺施設 |
地産マルシェ小滝橋店 |
| 距離 |
270m |
写真を見る |
| 周辺施設 |
まいばすけっと上落合店 |
| 距離 |
350m |
写真を見る |
| 周辺施設 |
ココカラファイン東中野5丁目店 |
| 距離 |
370m |
写真を見る |
| 周辺施設 |
島忠中野店 |
| 距離 |
1940m |
写真を見る |
| 周辺施設 |
ミニストップ北新宿4丁目店 |
| 距離 |
440m |
写真を見る |
| 周辺施設 |
谷中銀座商店街 |
| 距離 |
7560m |
写真を見る |
| 周辺施設 |
ココカラファイン東中野5丁目店 |
| 距離 |
370m |
写真を見る |
ここから簡単にお問い合わせをすることができます。
(SSLでの暗号化での送信を希望されるお客さまは
こちら
よりお問い合わせください)
お問い合わせを行う前に
「個人情報の取り扱いについて」を必ずお読みください。
「個人情報の取り扱いについて」に同意いただいた場合は「上記にご同意の上 確認画面へ進む」のボタンをクリックしてください。
個人情報の取り扱いについて
皆さまが送付された個人情報はアットホーム(株)のサーバを経由し、お問い合わせ先の不動産会社にメールまたはFAXにて転送されるためアットホーム(株)にも保管されます。アットホーム(株)で保管された個人情報の取り扱いについては、【こちら】をご覧ください。
また、本画面でご記入いただいた個人情報は、お問い合わせ先の不動産会社でも保管します。 お問い合わせ先の不動産会社が保管する個人情報の取り扱いについては、不動産会社に直接お問い合わせください。
国土交通大臣免許(1)第9926号 |
|---|
- 交通:
- JR中央線/中野駅 徒歩1分
- 東京都中野区中野2丁目30-8 立川ビル6階
- TEL:
- 03-3380-1360
- FAX:
- 03-3380-1361
- 所属団体:
- 所属団体未加入会員
取引態様:仲介  - 00271128
|
- スマートフォンで
この不動産会社を見る

|
- 提携サイト等より掲載されている物件情報につきましては、不動産会社詳細情報にリンクされていないものがあります。
- 物件に関するお問合せは、物件詳細ページの「情報提供会社」に表示されている不動産会社へ直接お願いいたします。
- 間取図は、現況を優先させていただきます。
- 映像は物件の一部を撮影したものです。物件の契約にあたっての最終判断はご自身の判断に基づいて行ってください。
- 仲介手数料について

アットホームは物件情報の適正化に努めております。
内容に誤りがある場合にはこちらへご連絡ください。