東京都渋谷区恵比寿西1丁目(代官山駅)の賃貸:物件詳細
交通 所在地 |
駅徒歩 |
賃料 管理費等 |
敷金/保証金 礼金 |
間取り 面積 |
物件種目 築年月 |
|
東急東横線/代官山
東京都渋谷区恵比寿西1丁目
|
5分
|
15.8万円
10,000円
|
なし / なし
なし
|
1K
26.13m²
|
賃貸マンション
2006年1月(築19年11ヶ月)
|
南向き、24時間換気システム、外観タイル張り、保証人不要
|
|
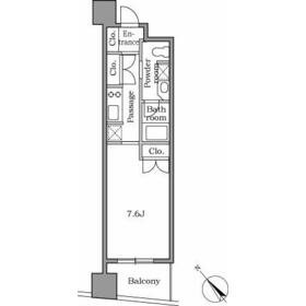
間取図
|
外観
|
<
その他の画像
>
|
| 交通 | 東急東横線 代官山駅 徒歩5分 |
|---|
| その他の交通 | JR山手線 恵比寿駅 徒歩6分 東急東横線 中目黒駅 徒歩11分 |
| 所在地 |
東京都渋谷区恵比寿西1丁目
|
| 物件種目 |
賃貸マンション |
| 賃料 |
15.8万円 |
管理費等 |
10,000円 |
| 敷金 / 保証金 |
なし / なし |
礼金 |
なし |
| 敷引 |
- |
保証金償却 |
- |
| その他一時金 |
入居者サポート料(2年):11,000円、鍵交換代等:22,000円~ |
保険等 |
要 2年 21,500円 |
| 維持費等 |
インターネット使用料:1,650円/月 |
| 間取り |
1K(洋室7.6帖) |
専有面積 |
26.13m² |
| 築年月 |
2006年1月(築19年11ヶ月)
|
階建 / 階 |
15階建 / 4階 |
| 建物構造 |
RC |
総戸数 |
- |
| 主要採光面 |
南 |
駐車場 |
空無 |
| バイク置き場 |
有 5,500円/月 |
駐輪場 |
有 無料 |
| 建物名・部屋番号 |
402 |
ペット |
-
|
| アピールポイント |
敷金・礼金0ヶ月 日比谷線恵比寿駅徒歩4分 オートロック 防犯カメラ 宅配ボックス 追焚 独立洗面台 |
| リフォーム履歴 |
- |
| リノベーション履歴 |
- |
| 備考 |
賃貸保証等:加入要(初回契約時:40%、更新時:10,000円、月額:1,000円)
管理形態/管理員の勤務形態:-/-
保証会社利用必須 1年未満解約時賃料等1ヶ月分の短期解約違約金有り
|
| エネルギー消費性能 |
- |
| 断熱性能 |
- |
| 目安光熱費 |
- |
| バス・トイレ |
バス・トイレ別、浴室乾燥機、オートバス、追焚機能、シャワー付洗面化粧台、洗面所独立、洗面所、洗面台、シャワー、温水洗浄便座、トイレ |
| キッチン |
システムキッチン、2口コンロ、ガスコンロ付 |
| セキュリティー |
モニター付オートロック、オートロック、モニター付インターホン、防犯カメラ、火災警報器(報知機) |
| 収納 |
全居室収納、収納スペース、クローゼット、シューズボックス |
| 設備・サービス |
全居室エアコン、室内洗濯機置場、給湯、全居室フローリング、フローリング、都市ガス、エアコン、暖房、冷房、照明器具、ベッド |
| TV・通信 |
インターネット対応、光ファイバー、ケーブルTV、CS、BS端子 |
| その他 |
宅配BOX、バイク置き場、バルコニー、駐輪場、エレベーター |
| 契約期間 |
2年 |
現況 |
空家 |
| 条件等 |
- |
入居可能時期 |
相談 |
| 更新料 |
新賃料 1ヶ月 |
物件番号 |
1161552615 |
| 情報公開日 |
2025年11月4日 |
次回更新予定日 |
2025年11月18日 |
| ケータイ用バーコード |
- スマートフォンでこの物件を見る
- スマートフォンからもこの物件をご覧になれます。
|
※「-」と表示されている項目については、情報提供会社にご確認ください。
| 周辺施設 |
代官山駅(東急電鉄 東横線) |
| 距離 |
380m |
写真を見る |
| 周辺施設 |
ピーコックストア恵比寿南店 |
| 距離 |
330m |
| 周辺施設 |
セブンイレブン渋谷恵比寿南3丁目店 |
| 距離 |
90m |
| 周辺施設 |
国家公務員共済組合連合会東京共済病院 |
| 距離 |
940m |
ここから簡単にお問い合わせをすることができます。
(SSLでの暗号化での送信を希望されるお客さまは
こちら
よりお問い合わせください)
お問い合わせを行う前に
「個人情報の取り扱いについて」を必ずお読みください。
「個人情報の取り扱いについて」に同意いただいた場合は「上記にご同意の上 確認画面へ進む」のボタンをクリックしてください。
個人情報の取り扱いについて
皆さまが送付された個人情報はアットホーム(株)のサーバを経由し、お問い合わせ先の不動産会社にメールまたはFAXにて転送されるためアットホーム(株)にも保管されます。アットホーム(株)で保管された個人情報の取り扱いについては、【こちら】をご覧ください。
また、本画面でご記入いただいた個人情報は、お問い合わせ先の不動産会社でも保管します。 お問い合わせ先の不動産会社が保管する個人情報の取り扱いについては、不動産会社に直接お問い合わせください。
東京都知事免許(6)第76891号 |
|---|
- 交通:
- 東京メトロ有楽町線/豊洲駅 徒歩2分
- 東京都江東区豊洲4丁目4-27 シービーワイコヤスビル3F
- TEL:
- 03-6228-4882
- FAX:
- 03-5547-5189
- 所属団体:
- (公社)全日本不動産協会会員(公社)首都圏不動産公正取引協議会加盟
取引態様:仲介  - 00106802
|
- スマートフォンで
この不動産会社を見る

|
- 提携サイト等より掲載されている物件情報につきましては、不動産会社詳細情報にリンクされていないものがあります。
- 物件に関するお問合せは、物件詳細ページの「情報提供会社」に表示されている不動産会社へ直接お願いいたします。
- 間取図は、現況を優先させていただきます。
- 映像は物件の一部を撮影したものです。物件の契約にあたっての最終判断はご自身の判断に基づいて行ってください。
- 仲介手数料について

アットホームは物件情報の適正化に努めております。
内容に誤りがある場合にはこちらへご連絡ください。