福岡県福岡市博多区中呉服町(呉服町駅)の賃貸:物件詳細
交通 所在地 |
駅徒歩 |
賃料 管理費等 |
敷金/保証金 礼金 |
間取り 面積 |
物件種目 築年月 |
|
地下鉄箱崎線/呉服町
福岡県福岡市博多区中呉服町
|
5分
|
12.05万円
4,000円
|
なし / なし
1ヶ月
|
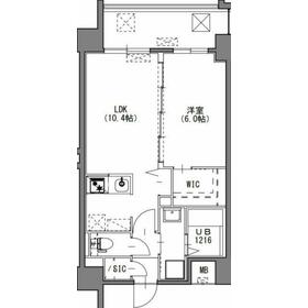
1LDK
39.32m²
|
賃貸マンション
2023年2月(築3年2ヶ月)
|
デザイナーズ
|
|
間取図
|
外観
|
<
その他の画像
>
|
| 交通 | 地下鉄箱崎線 呉服町駅 徒歩5分 |
|---|
| その他の交通 | 地下鉄箱崎線 千代県庁口駅 徒歩8分 地下鉄空港線 中洲川端駅 徒歩12分 |
| 所在地 |
福岡県福岡市博多区中呉服町
|
| 物件種目 |
賃貸マンション |
| 賃料 |
12.05万円 |
管理費等 |
4,000円 |
| 敷金 / 保証金 |
なし / なし |
礼金 |
1ヶ月 |
| 敷引 |
- |
保証金償却 |
- |
| その他一時金 |
契約事務手数料:11,000円、鍵交換代等:33,000円~ |
保険等 |
要 2年 22,000円 |
| 維持費等 |
町会費:500円/月 |
| 間取り |
1LDK(LDK10.4、洋6) |
専有面積 |
39.32m² |
| 築年月 |
2023年2月(築3年2ヶ月)
|
階建 / 階 |
12階建 / 5階 |
| 建物構造 |
RC |
総戸数 |
- |
| 主要採光面 |
|
駐車場 |
無 |
| バイク置き場 |
- |
駐輪場 |
有 無料 |
| 建物名・部屋番号 |
S-RESIDENCE中呉服 |
ペット |
-
|
| リフォーム履歴 |
- |
| リノベーション履歴 |
- |
| 備考 |
賃貸保証等:加入要(加入要(賃貸保証会社:K-net株式会社、初回50%、更新時12,000円\\/年))
管理形態/管理員の勤務形態:-/-
日々の暮らしに便利なサニー呉服町店(スーパー)まで397mです。セキュリティ面は、TVインターホン・オートロックなど充実しているので安心して生活できます。2駅利用できる場所にあり、行き先に合わせて使い分けができます。お客様に素敵なお部屋をご提供いたします。福岡市箱崎線呉服町エリアでお部屋探しをするのであれば、当社スタッフにお任せください。
ぜひ一度見ていただきたい、「S-RESIDENCE中呉服」です。サニー呉服町店まで徒歩5分です。福岡市博多区は住環境が充実しており、利便性の高い暮らしをするならこのエリアです。当社は地域に密着し、多種多様な賃貸情報を取り扱っているので、ぜひご連絡下さい。
|
| エネルギー消費性能 |
- |
| 断熱性能 |
- |
| 目安光熱費 |
- |
| バス・トイレ |
浴室乾燥機、温水洗浄便座、トイレ |
| キッチン |
2口コンロ、ガスコンロ可 |
| セキュリティー |
モニター付オートロック、オートロック、モニター付インターホン |
| 収納 |
収納スペース、クローゼット |
| 設備・サービス |
エアコン |
| TV・通信 |
インターネット対応、インターネット使用料無料 |
| その他 |
宅配BOX、駐輪場、エレベーター |
| 契約期間 |
2年 |
現況 |
空家 |
| 条件等 |
- |
入居可能時期 |
即時 |
| 更新料 |
20,000円 |
物件番号 |
1161635922 |
| 情報公開日 |
2026年3月6日 |
次回更新予定日 |
2026年4月2日 |
| ケータイ用バーコード |
- スマートフォンでこの物件を見る
- スマートフォンからもこの物件をご覧になれます。
|
※「-」と表示されている項目については、情報提供会社にご確認ください。
| 周辺施設 |
マルショク 千代町店 |
| 距離 |
350m |
写真を見る |
| 周辺施設 |
サニー呉服町店 |
| 距離 |
397m |
写真を見る |
| 周辺施設 |
千代県庁口歯科 |
| 距離 |
457m |
写真を見る |
| 周辺施設 |
博多千代郵便局 |
| 距離 |
540m |
写真を見る |
ここから簡単にお問い合わせをすることができます。
(SSLでの暗号化での送信を希望されるお客さまは
こちら
よりお問い合わせください)
お問い合わせを行う前に
「個人情報の取り扱いについて」を必ずお読みください。
「個人情報の取り扱いについて」に同意いただいた場合は「上記にご同意の上 確認画面へ進む」のボタンをクリックしてください。
個人情報の取り扱いについて
皆さまが送付された個人情報はアットホーム(株)のサーバを経由し、お問い合わせ先の不動産会社にメールまたはFAXにて転送されるためアットホーム(株)にも保管されます。アットホーム(株)で保管された個人情報の取り扱いについては、【こちら】をご覧ください。
また、本画面でご記入いただいた個人情報は、お問い合わせ先の不動産会社でも保管します。 お問い合わせ先の不動産会社が保管する個人情報の取り扱いについては、不動産会社に直接お問い合わせください。
福岡県知事免許(1)第20509号 |
|---|
- 交通:
- JR鹿児島本線/博多駅 徒歩1分
- 福岡県福岡市博多区博多駅中央街5-11 第13泰平ビル3F
- TEL:
- 092-409-2698
- 所属団体:
- (公社)福岡県宅地建物取引業協会会員(一社)九州不動産公正取引協議会加盟
取引態様:仲介  - 80508759
|
- スマートフォンで
この不動産会社を見る

|
- 提携サイト等より掲載されている物件情報につきましては、不動産会社詳細情報にリンクされていないものがあります。
- 物件に関するお問合せは、物件詳細ページの「情報提供会社」に表示されている不動産会社へ直接お願いいたします。
- 間取図は、現況を優先させていただきます。
- 映像は物件の一部を撮影したものです。物件の契約にあたっての最終判断はご自身の判断に基づいて行ってください。
- 仲介手数料について

アットホームは物件情報の適正化に努めております。
内容に誤りがある場合にはこちらへご連絡ください。