東京都中野区江原町2丁目(新江古田駅)の賃貸:物件詳細
交通 所在地 |
駅徒歩 |
賃料 管理費等 |
敷金/保証金 礼金 |
間取り 面積 |
物件種目 築年月 |
|
都営大江戸線/新江古田
東京都中野区江原町2丁目
|
5分
|
13.3万円
5,000円
|
なし / なし
なし
|
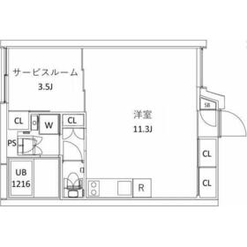
ワンルーム
34.05m²
|
賃貸マンション
2025年12月
|
デザイナーズ、角部屋、二人入居可、24時間換気システム、IT重説対応物件、保証人不要
|
|
間取図
|
外観
|
<
その他の画像
>
|
| 交通 | 都営大江戸線 新江古田駅 徒歩5分 |
|---|
| その他の交通 | 西武池袋線 江古田駅 徒歩13分 西武池袋線 桜台駅 徒歩19分 |
| 所在地 |
東京都中野区江原町2丁目
|
| 物件種目 |
賃貸マンション |
| 賃料 |
13.3万円 |
管理費等 |
5,000円 |
| 敷金 / 保証金 |
なし / なし |
礼金 |
なし |
| 敷引 |
- |
保証金償却 |
- |
| その他一時金 |
なし |
保険等 |
要 |
| 維持費等 |
- |
クレジットカード決済 |
初期費用可 |
| 間取り |
ワンルーム(洋室11.3帖 S3.5帖) |
専有面積 |
34.05m² |
| 築年月 |
2025年12月
|
階建 / 階 |
4階建 / 1階 |
| 建物構造 |
RC |
総戸数 |
11戸 |
| 主要採光面 |
西 |
駐車場 |
無 |
| バイク置き場 |
- |
駐輪場 |
無 |
| 建物名・部屋番号 |
CITY WALK新江古田DUE |
ペット |
-
|
| アピールポイント |
ハウスパートナー池袋駅西口店では池袋駅沿線を中心に豊島区・板橋区・練馬区・文京区エリアの物件をご紹介させていただきます。新築・駅近・ペット相談・分譲賃貸・貸家等お部屋探しのお悩み事があればお気軽にご相談くださいませ。お問い合わせ・ご来店をスタッフ一同心よりお待ち申し上げます。ご提案、内見手配、ご契約まで女性専任スタッフによる安心安全のお部屋探しも実施しております。 |
| リフォーム履歴 |
- |
| リノベーション履歴 |
- |
| 備考 |
賃貸保証等:加入要(初回:総賃料の50% 月額:総賃料の1%)
管理形態/管理員の勤務形態:-/-
IT重説対応物件
保険:18000円/2年 24時間安心サポート:16500円/2年 クリーニング費用:55000円 エアコンクリーニング費用:16500円/台 短期違約金あり:1年未満の解約は総賃料の2ヶ月、2年未満の解約は総賃料の1ヶ月 更新事務手数料:5500円
|
| エネルギー消費性能 |
- |
| 断熱性能 |
- |
| 目安光熱費 |
- |
| バス・トイレ |
バス・トイレ別、浴室乾燥機、追焚機能、洗面所独立 |
| キッチン |
システムキッチン、IHクッキングヒーター、2口コンロ |
| セキュリティー |
モニター付オートロック、オートロック、モニター付インターホン、防犯カメラ |
| 収納 |
収納スペース、クローゼット、シューズボックス |
| 設備・サービス |
室内洗濯機置場、フローリング、都市ガス、エアコン |
| TV・通信 |
インターネット対応、インターネット使用料無料 |
| その他 |
宅配BOX |
| 契約期間 |
2年 |
現況 |
未完成 |
| 条件等 |
- |
入居可能時期 |
2026年1月下旬予定 |
| 更新料 |
新賃料 1ヶ月 |
物件番号 |
1161663515 |
| 情報公開日 |
2025年11月4日 |
次回更新予定日 |
2025年11月19日 |
| ケータイ用バーコード |
- スマートフォンでこの物件を見る
- スマートフォンからもこの物件をご覧になれます。
|
※「-」と表示されている項目については、情報提供会社にご確認ください。
| 周辺施設 |
スーパーみらべる江古田店 |
| 距離 |
590m |
写真を見る |
| 周辺施設 |
ファミリーマート練馬豊中通り店 |
| 距離 |
270m |
写真を見る |
| 周辺施設 |
iterrace落合南長崎 |
| 距離 |
1650m |
写真を見る |
| 周辺施設 |
ココカラファイン江古田駅南口店 |
| 距離 |
830m |
写真を見る |
| 周辺施設 |
練馬警察署江古田駅前交番 |
| 距離 |
970m |
写真を見る |
| 周辺施設 |
医療法人社団仁泉会としま昭和病院 |
| 距離 |
1440m |
写真を見る |
| 周辺施設 |
豊島区立千川彫刻公園 |
| 距離 |
2440m |
写真を見る |
ここから簡単にお問い合わせをすることができます。
(SSLでの暗号化での送信を希望されるお客さまは
こちら
よりお問い合わせください)
お問い合わせを行う前に
「個人情報の取り扱いについて」を必ずお読みください。
「個人情報の取り扱いについて」に同意いただいた場合は「上記にご同意の上 確認画面へ進む」のボタンをクリックしてください。
個人情報の取り扱いについて
皆さまが送付された個人情報はアットホーム(株)のサーバを経由し、お問い合わせ先の不動産会社にメールまたはFAXにて転送されるためアットホーム(株)にも保管されます。アットホーム(株)で保管された個人情報の取り扱いについては、【こちら】をご覧ください。
また、本画面でご記入いただいた個人情報は、お問い合わせ先の不動産会社でも保管します。 お問い合わせ先の不動産会社が保管する個人情報の取り扱いについては、不動産会社に直接お問い合わせください。
国土交通大臣免許(2)第9556号 |
|---|
- 交通:
- JR山手線/池袋駅 徒歩1分
- 東京都豊島区西池袋1丁目14-4 キンズメンビル3階
- TEL:
- 03-5985-0002
- FAX:
- 03-5985-0003
- 所属団体:
- (公社)全日本不動産協会会員(公社)首都圏不動産公正取引協議会加盟
取引態様:仲介  - 00275929
|
- スマートフォンで
この不動産会社を見る

|
- 提携サイト等より掲載されている物件情報につきましては、不動産会社詳細情報にリンクされていないものがあります。
- 物件に関するお問合せは、物件詳細ページの「情報提供会社」に表示されている不動産会社へ直接お願いいたします。
- 間取図は、現況を優先させていただきます。
- 映像は物件の一部を撮影したものです。物件の契約にあたっての最終判断はご自身の判断に基づいて行ってください。
- 仲介手数料について

アットホームは物件情報の適正化に努めております。
内容に誤りがある場合にはこちらへご連絡ください。