東京都世田谷区奥沢2丁目(自由が丘駅)の賃貸:物件詳細
				
					
					
				
														
	
		
			
				| 交通 所在地
 | 駅徒歩 | 賃料 管理費等
 | 敷金/保証金 礼金
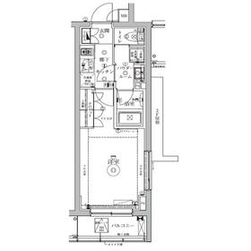
 | 間取り 面積
 | 物件種目 築年月
 | 
		
		
			
								| 東急東横線/自由が丘
												  東京都世田谷区奥沢2丁目 | 7分 | 12.6万円 12,000円 | 1ヶ月 / なし なし | 1K 25.43m² | 賃貸マンション 2014年4月(築11年8ヶ月)
																				 | 
						
				|  ペット相談、デザイナーズ、2面採光、外観タイル張り、保証人不要
 | 
					
	
		
		
		
					| 間取図 | 外観 | 
		
		| 
				
										<
										
						>
							 その他の画像 | 
				
 
	
		
			
																			          | 交通 | 東急東横線 自由が丘駅 徒歩7分 | 
|---|
| その他の交通 | 東急大井町線 自由が丘駅 徒歩7分 東急目黒線 奥沢駅 徒歩3分 | 
|---|
			
				| 所在地 | 東京都世田谷区奥沢2丁目 | 
			
				| 物件種目 | 賃貸マンション | 
		
		
			
				| 賃料 | 12.6万円 | 管理費等 | 12,000円 | 
			
				| 敷金 / 保証金 | 1ヶ月 / なし | 礼金 | なし | 
			
				| 敷引 | - | 保証金償却 | - | 
			
				| その他一時金 | なし | 保険等 | 要 2年 20,000円 | 
						
				| 維持費等 | - | 
					
		
			
				| 間取り | 1K | 専有面積 | 25.43m² | 
			
				| 築年月 | 2014年4月(築11年8ヶ月) | 階建 / 階 | 5階建 / 3階 | 
			
				| 建物構造 | RC | 総戸数 | - | 
			
				| 主要採光面 | 北 | 駐車場 | - | 
			
				| バイク置き場 | 有 | 駐輪場 | 有 | 
			
				| 建物名・部屋番号 | ヴィスタガーデン自由が丘 304 | ペット | 相談 | 
						
				| リフォーム履歴 | - | 
			
				| リノベーション履歴 | - | 
			
				| 備考 | 
																	賃貸保証等:加入要(保証会社必須/~50%)
											管理形態/管理員の勤務形態:-/巡回
 管理人巡回
 ■更新料/新賃料の1.50ヶ月分
 ■保証会社必須/~50%
 | 
		
				
		
		| エネルギー消費性能 | - | 
	
		| 断熱性能 | - | 
	
		| 目安光熱費 | - | 
	
		
									
				| バス・トイレ | バス・トイレ別、浴室乾燥機、追焚機能、洗面台、シャワー、温水洗浄便座、トイレ | 
						
				| キッチン | システムキッチン、2口コンロ | 
						
				| セキュリティー | モニター付オートロック、モニター付インターホン | 
						
				| 収納 | クローゼット、シューズボックス | 
						
				| 設備・サービス | 室内洗濯機置場、給湯、フローリング、都市ガス、エアコン | 
						
				| TV・通信 | CS、BS端子 | 
						
				| その他 | 宅配BOX、バイク置き場、駐輪場、エレベーター | 
					
		
			
				| 契約期間 | 2年 | 現況 | 居住中 | 
			
				| 条件等 | - | 入居可能時期 | 指定有り2025年12月26日 | 
						
				| 仲介手数料 | 不要 |  |  | 
						
				| 更新料 | 新賃料 1.5ヶ月 | 物件番号 | 1161728909 | 
			
				| 情報公開日 | 2025年10月28日 | 次回更新予定日 | 2025年11月11日 | 
						
				| ケータイ用バーコード | 
					
					
						
							スマートフォンでこの物件を見るスマートフォンからもこの物件をご覧になれます。 | 
					
	 
	 									※「-」と表示されている項目については、情報提供会社にご確認ください。
									
												
					
					  ここから簡単にお問い合わせをすることができます。
(SSLでの暗号化での送信を希望されるお客さまは
													こちら
											  よりお問い合わせください)
					  
					
						
						
					
					お問い合わせを行う前に
「個人情報の取り扱いについて」を必ずお読みください。
「個人情報の取り扱いについて」に同意いただいた場合は「上記にご同意の上 確認画面へ進む」のボタンをクリックしてください。 
						個人情報の取り扱いについて
						皆さまが送付された個人情報はアットホーム(株)のサーバを経由し、お問い合わせ先の不動産会社にメールまたはFAXにて転送されるためアットホーム(株)にも保管されます。アットホーム(株)で保管された個人情報の取り扱いについては、【こちら】をご覧ください。
						また、本画面でご記入いただいた個人情報は、お問い合わせ先の不動産会社でも保管します。 お問い合わせ先の不動産会社が保管する個人情報の取り扱いについては、不動産会社に直接お問い合わせください。
					 
				 
				
														
				  
				  
					| 国土交通大臣免許(4)第8023号 | 
|---|
| 交通:JR山手線/恵比寿駅 徒歩5分東京都渋谷区恵比寿4丁目20ー3 恵比寿ガーデンプレイスタワー35階TEL:0120-964-572FAX:03-6837-2843所属団体:(公社)東京都宅地建物取引業協会会員不動産公正取引協議会加盟
 取引態様:仲介 00102525
 | 
							  
								スマートフォンでこの不動産会社を見る
 | 
					  
					 
				 
							
						
												
			
					
- 提携サイト等より掲載されている物件情報につきましては、不動産会社詳細情報にリンクされていないものがあります。
- 物件に関するお問合せは、物件詳細ページの「情報提供会社」に表示されている不動産会社へ直接お願いいたします。
- 間取図は、現況を優先させていただきます。
- 映像は物件の一部を撮影したものです。物件の契約にあたっての最終判断はご自身の判断に基づいて行ってください。
- 仲介手数料について 
アットホームは物件情報の適正化に努めております。
内容に誤りがある場合にはこちらへご連絡ください。