不動産 賃貸 マンション等の住宅情報:埼玉住まい情報


東京都足立区江北4丁目(江北駅)の賃貸:物件詳細

  • 物件詳細
  • 情報の見方
  • 印刷用画面
交通
所在地
駅徒歩 賃料
管理費等
敷金/保証金
礼金
間取り
面積
物件種目
築年月

日暮里舎人ライナー/江北

東京都足立区江北4丁目

5分

7万円

5,000円

なし / なし

なし

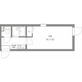
1K

20.11m²

賃貸アパート

2026年2月
新築 

おすすめPOINT角部屋、最上階、IT重説対応物件

おすすめコメント

日暮里舎人ライナー江北駅周辺への引っ越しをお考えなら「BLOOM」。最寄りの公園江北緑道(徒歩6分)。浴室乾燥機を備え付けているので、浴室や洗濯物からスピーディーに湿気を除去してカビを防げます。知らな

間取図

間取図

外観

外観

その他の画像
  • バス/シャワー
  • 設備
  • 販売店
  • コンビニ
    • とりあえず保存
    • お問い合わせ
    交通

    日暮里舎人ライナー 江北駅 徒歩5分

    その他の交通

    日暮里舎人ライナー 高野駅 徒歩9分

    日暮里舎人ライナー 扇大橋駅 徒歩15分

    所在地 東京都足立区江北4丁目
    物件種目 賃貸アパート
    賃料 7万円 管理費等 5,000円
    敷金 / 保証金 なし / なし 礼金 なし
    敷引 保証金償却
    その他一時金 入居者サポート:16,500円、契約時事務手数料:11,000円 保険等 要 2年 20,000円
    維持費等 入居者サポート:16,500円/月 クレジットカード決済 初期費用可
    間取り 1K(洋7.3) 専有面積 20.11m²
    築年月 2026年2月 新築  階建 / 階 3階建 / 3階
    建物構造 木造 総戸数
    主要採光面 南東 駐車場
    バイク置き場 駐輪場
    建物名・部屋番号 BLOOM 301 ペット
    リフォーム履歴
    リノベーション履歴
    備考
    賃貸保証等:加入要(初回、総賃料の50%)
    管理形態/管理員の勤務形態:-/-
    IT重説対応物件
    こだわりポイント満載のBLOOM。室内設備はエアコン・システムキッチンなどが揃っており、とても充実しています。衛生的で見た目もキレイなフローリング設置の物件です。敷金不要の物件です。足立区エリアで住まいをお探しになるなら、ハウス・トゥ・ハウス・ネットサービス/田端店にご連絡下さい。問い合わせは0358152828からお気軽にどうぞ、ご利用下さい。
    短期解約違約金有
    エネルギー消費性能
    断熱性能
    目安光熱費
    バス・トイレ バス・トイレ別、浴室乾燥機、シャワー、トイレ
    キッチン システムキッチン、ガスコンロ可
    セキュリティー オートロック
    収納 収納スペース、クローゼット
    設備・サービス 室内洗濯機置場、洗濯機置場、都市ガス給湯、給湯、フローリング、都市ガス、エアコン
    TV・通信
    その他
    契約期間 2年 現況 未完成
    条件等 入居可能時期 2026年3月上旬予定
    更新料 新賃料 1ヶ月 物件番号 1161900119
    情報公開日 2026年1月16日 次回更新予定日 2026年2月9日
    ケータイ用バーコード

    QRコード

    スマートフォンでこの物件を見る
    スマートフォンからもこの物件をご覧になれます。
    ※「-」と表示されている項目については、情報提供会社にご確認ください。

    この物件の周辺情報

    周辺施設 ライフ 扇大橋駅前店
    距離 1084m
    周辺施設 セブンイレブン 足立扇2丁目店
    距離 720m

    クイックお問い合わせ

    ここから簡単にお問い合わせをすることができます。
    (SSLでの暗号化での送信を希望されるお客さまは こちら よりお問い合わせください)

    お問い合わせ内容(必須)
    お名前(必須) 姓  名 
    メールアドレス(必須)
    ※携帯電話のメールアドレスをご入力される方はこちらをご確認ください
    電話番号(必須)
    - -

    ※入力いただいた電話番号へSMSまたは音声でパスワードをご連絡します。

    携帯電話の番号をご入力の方へ

    携帯電話の番号をご入力の方へ
    確認画面にて送信ボタンをクリックするとSMSが携帯電話に届きます。
    そのSMSに記載のパスワード(認証番号)を入力し、お問い合わせを完了してください。
    尚、SMSの送信者番号は 0005 202 760 となります。
    これはアットホームの固定番号です。

    備考欄 希望条件、物件案内希望日、質問などがございましたらご記入ください。
    お問い合わせを行う前に「個人情報の取り扱いについて」を必ずお読みください。
    「個人情報の取り扱いについて」に同意いただいた場合は「上記にご同意の上 確認画面へ進む」のボタンをクリックしてください。

    個人情報の取り扱いについて

    皆さまが送付された個人情報はアットホーム(株)のサーバを経由し、お問い合わせ先の不動産会社にメールまたはFAXにて転送されるためアットホーム(株)にも保管されます。アットホーム(株)で保管された個人情報の取り扱いについては、【こちら】をご覧ください。
    また、本画面でご記入いただいた個人情報は、お問い合わせ先の不動産会社でも保管します。 お問い合わせ先の不動産会社が保管する個人情報の取り扱いについては、不動産会社に直接お問い合わせください。

    情報提供会社

    情報提供会社

    ハウス・トゥ・ハウス・ネットサービス(株) 田端店

    国土交通大臣免許(4)第7400号

    交通:
    JR山手線/田端駅 徒歩6分
    東京都北区田端1丁目5-5 サンハイム田端1階
    TEL:
    03-5815-2828
    FAX:
    03-5815-2829
    所属団体:
    (公社)東京都宅地建物取引業協会会員
    (公社)首都圏不動産公正取引協議会加盟

    取引態様:仲介

    • 会社情報
    • 00277086
    スマートフォンで
    この不動産会社を見る
    QRコード
    • とりあえず保存
    • お問い合わせ
    • 提携サイト等より掲載されている物件情報につきましては、不動産会社詳細情報にリンクされていないものがあります。
    • 物件に関するお問合せは、物件詳細ページの「情報提供会社」に表示されている不動産会社へ直接お願いいたします。
    • 間取図は、現況を優先させていただきます。
    • 映像は物件の一部を撮影したものです。物件の契約にあたっての最終判断はご自身の判断に基づいて行ってください。
    • 仲介手数料について仲介手数料

    アットホームは物件情報の適正化に努めております。 内容に誤りがある場合にはこちらへご連絡ください。

    【埼玉住まい情報】では、日本全国の物件から賃貸マンションや賃貸アパート・賃貸一戸建て等の賃貸住宅情報、新築マンション・分譲マンションや中古マンション等の売買マンション情報、新築一戸建てや中古一戸建てなどの戸建住宅、 土地など、総合的な不動産住宅情報検索サービスを提供致します。
    【埼玉住まい情報】から、選りすぐりの不動産物件を探してみましょう。

    【免責事項】
    このコーナーの運営はアットホーム株式会社(https://www.athome.co.jp/)が行っています。
    このコーナーに掲載している物件情報は、「アットホーム不動産情報ネットワーク」に加盟する不動産会社等(情報提供元)から提供されています。信頼性の高い情報提供が行えるよう、最大限の努力をしておりますが、その内容を保証するものではありません。 利用者のみなさまと各情報提供元との取引に起因する損害および情報が掲載されたことに起因する損害等については、株式会社イーシティ埼玉、およびアットホームは一切責任を負いません。
    各物件情報の内容や画像等はすべて現況を優先させていただきます。
    お取引等(お取引の準備、資金調達等を含みます)の際には、内容や契約条件等について、各情報提供元より十分な説明を受け、ご自身でご確認の上、判断してください。
    このコーナーへの物件情報のご掲載、その他不動産業務ソリューション等についての不動産会社様のお問合せはこちらからお願いいたします。

    物件画像: