広島県福山市入船町3丁目(福山駅)の賃貸:物件詳細
交通 所在地 |
駅徒歩 |
賃料 管理費等 |
敷金/保証金 礼金 |
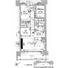
間取り 面積 |
物件種目 築年月 |
|
JR山陽本線/福山
広島県福山市入船町3丁目
|
21分
|
16万円
なし
|
2ヶ月 / なし
2ヶ月
|
2SLDK
66.93m²
|
賃貸マンション
2016年5月(築9年8ヶ月)
|
ペット相談、楽器相談、分譲タイプ、二人入居可
|
|
間取図
|
外観
|
<
その他の画像
>
|
| 交通 | JR山陽本線 福山駅 徒歩21分 |
|---|
| その他の交通 | JR山陽本線 東福山駅 徒歩43分 福塩線 備後本庄駅 徒歩44分 |
| 所在地 |
広島県福山市入船町3丁目
|
| 物件種目 |
賃貸マンション |
| 賃料 |
16万円 |
管理費等 |
なし |
| 敷金 / 保証金 |
2ヶ月 / なし |
礼金 |
2ヶ月 |
| 敷引 |
- |
保証金償却 |
- |
| その他一時金 |
くらしーど24:16,500円、鍵交換代等:22,000円~ |
保険等 |
要 2年 19,000円 |
| 維持費等 |
- |
| 間取り |
2SLDK(和5、洋6、LDK16.1、S3) |
専有面積 |
66.93m² |
| 築年月 |
2016年5月(築9年8ヶ月)
|
階建 / 階 |
14階建 / 12階 |
| 建物構造 |
RC |
総戸数 |
- |
| 主要採光面 |
東 |
駐車場 |
有 14,000円/月 |
| バイク置き場 |
- |
駐輪場 |
- |
| 建物名・部屋番号 |
ソシオ入船 |
ペット |
相談 |
| アピールポイント |
エントランスのオートロックと玄関の鍵で二重にロックできるので防犯対策につながります。室内設備は洗面化粧台・浴室乾燥機など豊富に揃っており、過ごしやすいお部屋になっております。荷物を注文する時に時間を気にしなくてよくなる宅配ボックスを共用部に備えています。収納はシューズボックス・クロゼットなどが備え付けられているので、衣類や日用品の収納に重宝します。駐車スペースプライス月14000円。BSに加入してすぐBSが視聴できるBS受信設備のある物件です。こちらの物件は現在空家です。築9年の設備が充実した物件となっています。ベランダのおかげで、室内の空気を入れ替える際も安心です。二人で生活ができるお住まい、友達、カップル、兄弟など。可愛いペットと一緒に生活できるペット相談の物件はこちらです。 |
| リフォーム履歴 |
- |
| リノベーション履歴 |
- |
| 備考 |
賃貸保証等:加入要(日本賃貸保証 加入要 \\/ 賃貸保証会社:日本賃貸保証株式会社 TRUST初回保証料賃料の50% 月々保証料賃料の1% 手数料330円)
管理形態/管理員の勤務形態:-/-
共用部には宅配ボックスを設置しているため、対面で荷物を受け取る必要がなくなります。安心のオートロックが嬉しい、防犯対策を考慮した物件です。室内設備は洗面化粧台・浴室乾燥機など大変充実しております。収納はシューズボックス・クロゼットなど豊富なので、衣類や履き物の整理がしやすく便利です。追い焚き機能があり、寒さの厳しい日でも体の芯から温められます。TV好きの方にうってつけの、BS対応物件となっています。システムキッチンは天板に隙間がないため水がたまる心配がなく、家事も快適にこなせます。コチラの物件は12階にある物件となっています。女性も安心できる脱衣所が設置されています。楽器の相談にも応じます。お気軽にご相談ください。さみしくない生活ができる2SLDKの間取りで家族がリビングに集合。
|
| エネルギー消費性能 |
- |
| 断熱性能 |
- |
| 目安光熱費 |
- |
| バス・トイレ |
バス・トイレ別、浴室乾燥機、追焚機能、シャワー付洗面化粧台、洗面所独立、洗面所、洗面台、シャワー、温水洗浄便座、トイレ |
| キッチン |
システムキッチン、3口以上コンロ、ガスコンロ可 |
| セキュリティー |
オートロック |
| 収納 |
収納スペース、クローゼット、シューズボックス |
| 設備・サービス |
都市ガス給湯、給湯、都市ガス |
| TV・通信 |
BS端子 |
| その他 |
宅配BOX |
| 契約期間 |
2年 |
現況 |
空家 |
| 条件等 |
- |
入居可能時期 |
即時 |
| 更新料 |
- |
物件番号 |
1162074010 |
| 情報公開日 |
2025年11月1日 |
次回更新予定日 |
2025年12月26日 |
| ケータイ用バーコード |
- スマートフォンでこの物件を見る
- スマートフォンからもこの物件をご覧になれます。
|
※「-」と表示されている項目については、情報提供会社にご確認ください。
| 周辺施設 |
セブンイレブン 福山入船町店 |
| 距離 |
288m |
写真を見る |
| 周辺施設 |
ゆめタウン福山 |
| 距離 |
464m |
写真を見る |
| 周辺施設 |
スーパードラッグひまわり 松浜店 |
| 距離 |
439m |
写真を見る |
| 周辺施設 |
福山市立旭小学校 |
| 距離 |
698m |
写真を見る |
ここから簡単にお問い合わせをすることができます。
(SSLでの暗号化での送信を希望されるお客さまは
こちら
よりお問い合わせください)
お問い合わせを行う前に
「個人情報の取り扱いについて」を必ずお読みください。
「個人情報の取り扱いについて」に同意いただいた場合は「上記にご同意の上 確認画面へ進む」のボタンをクリックしてください。
個人情報の取り扱いについて
皆さまが送付された個人情報はアットホーム(株)のサーバを経由し、お問い合わせ先の不動産会社にメールまたはFAXにて転送されるためアットホーム(株)にも保管されます。アットホーム(株)で保管された個人情報の取り扱いについては、【こちら】をご覧ください。
また、本画面でご記入いただいた個人情報は、お問い合わせ先の不動産会社でも保管します。 お問い合わせ先の不動産会社が保管する個人情報の取り扱いについては、不動産会社に直接お問い合わせください。
広島県知事免許(9)第6576号 |
|---|
- 交通:
- 【バス】 蔵王東バス停 停歩4分
- 広島県福山市南蔵王町5丁目10-12
- TEL:
- 084-940-3601
- FAX:
- 084-940-3602
- 所属団体:
- (公社)広島県宅地建物取引業協会会員中国地区不動産公正取引協議会加盟
取引態様:仲介  - 50026529
|
- スマートフォンで
この不動産会社を見る

|
- 提携サイト等より掲載されている物件情報につきましては、不動産会社詳細情報にリンクされていないものがあります。
- 物件に関するお問合せは、物件詳細ページの「情報提供会社」に表示されている不動産会社へ直接お願いいたします。
- 間取図は、現況を優先させていただきます。
- 映像は物件の一部を撮影したものです。物件の契約にあたっての最終判断はご自身の判断に基づいて行ってください。
- 仲介手数料について

アットホームは物件情報の適正化に努めております。
内容に誤りがある場合にはこちらへご連絡ください。