東京都葛飾区堀切4丁目(堀切菖蒲園駅)の賃貸:物件詳細
				
					
					
				
														
	
		
			
				交通 所在地 | 
				駅徒歩 | 
				賃料 管理費等 | 
				敷金/保証金 礼金 | 
				間取り 面積 | 
				物件種目 築年月 | 
			
		
		
			
								| 
					 京成本線/堀切菖蒲園
												 
											 
					東京都葛飾区堀切4丁目 
				 | 
								
					 2分 
				 | 
								
					 7万円 
					4,000円 
				 | 
								
					 なし / なし 
					1ヶ月 
				 | 
								
					 ワンルーム 
					17.13m² 
				 | 
								
					 賃貸アパート 
					2025年10月
										 
																  
															 
				 | 
			
						
				 デザイナーズ、24時間換気システム、吹抜、IT重説対応物件、保証人不要
  | 
			
					
	
		
		
		
					| 
			 間取図 
			
			
			
			
			
		 | 
		
			 外観 
			
			
			
			
			同一仕様写真 
		 | 
				
		
		
			
				
										<
										
						
							 
							その他の画像
						 
					 
					
										>
									 
				
			 
		 | 
	
				
 
	
		
			
																			          | 交通 | 京成本線 堀切菖蒲園駅 徒歩2分  | 
|---|
| その他の交通 | 東武伊勢崎線 堀切駅 徒歩17分 京成本線 お花茶屋駅 徒歩20分  | 
			
				| 所在地 | 
				
					東京都葛飾区堀切4丁目
				 | 
			
			
				| 物件種目 | 
				賃貸アパート | 
			
		
		
			
				| 賃料 | 
				7万円 | 
				管理費等 | 
				4,000円 | 
			
			
				| 敷金 / 保証金 | 
				なし / なし | 
				礼金 | 
				1ヶ月 | 
			
			
				| 敷引 | 
				- | 
				保証金償却 | 
				- | 
			
			
				| その他一時金 | 
				IoT登録利用料:16,500円、24時間サポート:19,800円、インターネット開通費用:16,500円、除菌・消臭代:19,800円、室内清掃費用:38,500円 | 
				保険等 | 
				要 2年 20,000円 | 
			
						
				| 維持費等 | 
				町会費:300円/月 | 
				クレジットカード決済 | 
				初期費用可 | 
			
					
		
			
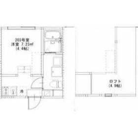
				| 間取り | 
				ワンルーム(洋4.4、他4.9) | 
				専有面積 | 
				17.13m² | 
			
			
				| 築年月 | 
				2025年10月
									  
												 | 
				階建 / 階 | 
				2階建 / 2階 | 
			
			
				| 建物構造 | 
				木造 | 
				総戸数 | 
				- | 
			
			
				| 主要採光面 | 
				北西 | 
				駐車場 | 
				- | 
			
			
				| バイク置き場 | 
				- | 
				駐輪場 | 
				- | 
			
			
				| 建物名・部屋番号 | 
				ノベレア 203 | 
				ペット | 
				
								-
								 | 
			
						
				| リフォーム履歴 | 
				- | 
			
			
				| リノベーション履歴 | 
				- | 
			
			
				| 備考 | 
				
					 
																	賃貸保証等:加入要(初回保証料:保証人ありプラン:30,000円。なしプラン:50,000円)
											 						管理形態/管理員の勤務形態:-/巡回
											 						IT重説対応物件、管理人巡回
											 						契約金のクレジットカード決済が可能です☆ 
掲載されている物件はほんの一部ですので、まずは当店にご来店ください♪
										 
					
				 | 
			
		
				
		
		| エネルギー消費性能 | 
		- | 
	
	
		| 断熱性能 | 
		- | 
	
	
		| 目安光熱費 | 
		- | 
	
	
		
									
				| バス・トイレ | 
				バス・トイレ別、浴室乾燥機、シャワー付洗面化粧台、洗面所独立、洗面所、温水洗浄便座、トイレ | 
			
						
				| キッチン | 
				2口コンロ、ガスコンロ可 | 
			
						
				| セキュリティー | 
				モニター付インターホン、非接触型ICカードキー、カードキー、防犯カメラ | 
			
						
				| 収納 | 
				収納スペース、シューズボックス | 
			
						
				| 設備・サービス | 
				全居室エアコン、室内洗濯機置場、洗濯機置場、ロフト、全居室フローリング、フローリング、室内物干し、エアコン、冷房、照明器具 | 
			
						
				| TV・通信 | 
				インターネット対応、インターネット使用料無料、光ファイバー | 
			
						
				| その他 | 
				宅配BOX | 
			
					
		
			
				| 契約期間 | 
				2年 | 
				現況 | 
				空家 | 
			
			
				| 条件等 | 
				- | 
				入居可能時期 | 
				即時 | 
			
						
				| 更新料 | 
				新賃料 1.5ヶ月 | 
				物件番号 | 
				1162154716 | 
			
			
				| 情報公開日 | 
				2025年11月3日 | 
				次回更新予定日 | 
				2025年11月17日 | 
			
						
				| ケータイ用バーコード | 
				
				
					
					
						
							- スマートフォンでこの物件を見る
 
							- スマートフォンからもこの物件をご覧になれます。
 
						 
					 
				 
				 | 
			
					
	 
	 									※「-」と表示されている項目については、情報提供会社にご確認ください。
						
	
			
			
			
				
					
						
							| 周辺施設 | 
							セブンイレブン 堀切菖蒲園駅前 | 
						
						
							| 距離 | 
							92m | 
							写真を見る | 						
					
				
			 
		 
					
			
				
					
						
							| 周辺施設 | 
							セブンイレブン 堀切菖蒲園駅前店 | 
						
						
							| 距離 | 
							113m | 
							写真を見る | 						
					
				
			 
		 
		 
				
			
			
				
					
						
							| 周辺施設 | 
							まいばすけっと 堀切4丁目店 | 
						
						
							| 距離 | 
							25m | 
							写真を見る | 						
					
				
			 
		 
					
			
				
					
						
							| 周辺施設 | 
							赤札堂 堀切店 | 
						
						
							| 距離 | 
							202m | 
							写真を見る | 						
					
				
			 
		 
		 
				
			
			
				
					
						
							| 周辺施設 | 
							ザ・ダイソー DAISO 赤札堂堀切店 | 
						
						
							| 距離 | 
							202m | 
							写真を見る | 						
					
				
			 
		 
					
			
				
					
						
							| 周辺施設 | 
							どらっぐぱぱす 堀切菖蒲園店 | 
						
						
							| 距離 | 
							168m | 
							写真を見る | 						
					
				
			 
		 
		 
				
			
			
				
					
						
							| 周辺施設 | 
							リトルマーメイド 堀切菖蒲園駅店 | 
						
						
							| 距離 | 
							206m | 
							写真を見る | 						
					
				
			 
		 
					
			
				
					
						
							| 周辺施設 | 
							亀有信用金庫堀切支店 | 
						
						
							| 距離 | 
							330m | 
							写真を見る | 						
					
				
			 
		 
		 
		 									
												
					
					  ここから簡単にお問い合わせをすることができます。
(SSLでの暗号化での送信を希望されるお客さまは
													こちら
											  よりお問い合わせください)
					  
					
						
						
					
					お問い合わせを行う前に
「個人情報の取り扱いについて」を必ずお読みください。
「個人情報の取り扱いについて」に同意いただいた場合は「上記にご同意の上 確認画面へ進む」のボタンをクリックしてください。 
 
					
					
						個人情報の取り扱いについて
						皆さまが送付された個人情報はアットホーム(株)のサーバを経由し、お問い合わせ先の不動産会社にメールまたはFAXにて転送されるためアットホーム(株)にも保管されます。アットホーム(株)で保管された個人情報の取り扱いについては、【こちら】をご覧ください。
						また、本画面でご記入いただいた個人情報は、お問い合わせ先の不動産会社でも保管します。 お問い合わせ先の不動産会社が保管する個人情報の取り扱いについては、不動産会社に直接お問い合わせください。
					 
				 
				
														
				  
				  
					東京都知事免許(2)第100085号  | 
|---|
- 交通:
 - JR山手線/秋葉原駅 徒歩1分
 - 東京都千代田区神田佐久間町1丁目16-1 大橋ビル604
 - TEL:
 - 03-6262-9550
 - FAX:
 - 03-6262-9551
 - 所属団体:
 - (公社)全日本不動産協会会員(公社)首都圏不動産公正取引協議会加盟
 
 取引態様:仲介  - 00262098
 
  | 
						  						  
							
							  
								- スマートフォンで
 この不動産会社を見る 
								    
							   
							 
						   | 
						  						
					  
					 
				   
				 
							
						
												
			
					
- 提携サイト等より掲載されている物件情報につきましては、不動産会社詳細情報にリンクされていないものがあります。
 
- 物件に関するお問合せは、物件詳細ページの「情報提供会社」に表示されている不動産会社へ直接お願いいたします。
 
- 間取図は、現況を優先させていただきます。
 
- 映像は物件の一部を撮影したものです。物件の契約にあたっての最終判断はご自身の判断に基づいて行ってください。
 
- 仲介手数料について

 
アットホームは物件情報の適正化に努めております。
内容に誤りがある場合にはこちらへご連絡ください。