東京都葛飾区白鳥4丁目(お花茶屋駅)の賃貸:物件詳細
交通 所在地 |
駅徒歩 |
賃料 管理費等 |
敷金/保証金 礼金 |
間取り 面積 |
物件種目 築年月 |
|
京成本線/お花茶屋
東京都葛飾区白鳥4丁目
|
12分
|
8万円
15,000円
|
なし / なし
0.5ヶ月
|
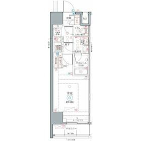
1K
26.10m²
|
賃貸マンション
2024年12月(築1年)
|
デザイナーズ、分譲タイプ、常時ゴミ出し可能、角部屋、二人入居可、24時間換気システム、保証人不要
|
|
間取図
|
外観
|
<
その他の画像
>
|
| 交通 | 京成本線 お花茶屋駅 徒歩12分 |
|---|
| その他の交通 | 京成本線 青砥駅 徒歩17分 京成押上線 京成立石駅 徒歩20分 |
| 所在地 |
東京都葛飾区白鳥4丁目
|
| 物件種目 |
賃貸マンション |
| 賃料 |
8万円 |
管理費等 |
15,000円 |
| 敷金 / 保証金 |
なし / なし |
礼金 |
0.5ヶ月 |
| 敷引 |
- |
保証金償却 |
- |
| その他一時金 |
書類作成代:11,000円、室内清掃費用:55,000円、鍵交換代等:44,000円~ |
保険等 |
要 |
| 維持費等 |
レジデンシャルサポート料:800円/月 |
| 間取り |
1K(洋8.1) |
専有面積 |
26.10m² |
| 築年月 |
2024年12月(築1年)
|
階建 / 階 |
11階建 / 7階 |
| 建物構造 |
RC |
総戸数 |
- |
| 主要採光面 |
北東 |
駐車場 |
- |
| バイク置き場 |
- |
駐輪場 |
有 無料 |
| 建物名・部屋番号 |
クレヴィスタお花茶屋 712 |
ペット |
-
|
| リフォーム履歴 |
- |
| リノベーション履歴 |
- |
| 備考 |
賃貸保証等:加入要(エポスカード 緊急連絡先40%緊急連絡先40%)
管理形態/管理員の勤務形態:-/巡回
バルコニー:3.3m²
管理人巡回
◆初期費用・web内見・入居日交渉などお気軽にご相談下さい◆
【お部屋探しはクレアスレント】★空室の確認は即時返答★LINEで簡単にお部屋探し★営業時間外もご対応可能★インターネットで紹介していない類似物件も多数ご用意、ご案内!お客様のご要望にお応えいたします!仕様・図面・写真等に相違があった場合は現況を優先します。
|
| エネルギー消費性能 |
- |
| 断熱性能 |
- |
| 目安光熱費 |
- |
| バス・トイレ |
バス・トイレ別、浴室乾燥機、シャワー付洗面化粧台、洗面所独立、洗面所、洗面台、シャワー、温水洗浄便座、トイレ |
| キッチン |
システムキッチン、2口コンロ、ガスコンロ可 |
| セキュリティー |
モニター付オートロック、オートロック、モニター付インターホン、ダブルロックドア、防犯カメラ |
| 収納 |
収納スペース、クローゼット、シューズボックス |
| 設備・サービス |
室内洗濯機置場、洗濯機置場、フローリング、都市ガス、エアコン、人感センサー付照明 |
| TV・通信 |
インターネット対応、インターネット使用料無料 |
| その他 |
宅配BOX、バルコニー、駐輪場、エレベーター |
| 契約期間 |
2年 |
現況 |
居住中 |
| 条件等 |
- |
入居可能時期 |
2025年12月中旬予定 |
| 更新料 |
新賃料 1ヶ月 |
物件番号 |
1162215116 |
| 情報公開日 |
2025年11月3日 |
次回更新予定日 |
2025年11月17日 |
| ケータイ用バーコード |
- スマートフォンでこの物件を見る
- スマートフォンからもこの物件をご覧になれます。
|
※「-」と表示されている項目については、情報提供会社にご確認ください。
| 周辺施設 |
お花茶屋公園 |
| 距離 |
892m |
写真を見る |
| 周辺施設 |
chocoZAP(チョコザップ) プロムナードお花茶屋 |
| 距離 |
963m |
写真を見る |
| 周辺施設 |
ザ・ダイソー DAISO いなげやお花茶屋店 |
| 距離 |
838m |
写真を見る |
| 周辺施設 |
まいばすけっと お花茶屋駅前店 |
| 距離 |
989m |
写真を見る |
| 周辺施設 |
ドン・キホーテ青戸店 |
| 距離 |
574m |
写真を見る |
| 周辺施設 |
ファミリーマート お花茶屋駅店 |
| 距離 |
1001m |
写真を見る |
ここから簡単にお問い合わせをすることができます。
(SSLでの暗号化での送信を希望されるお客さまは
こちら
よりお問い合わせください)
お問い合わせを行う前に
「個人情報の取り扱いについて」を必ずお読みください。
「個人情報の取り扱いについて」に同意いただいた場合は「上記にご同意の上 確認画面へ進む」のボタンをクリックしてください。
個人情報の取り扱いについて
皆さまが送付された個人情報はアットホーム(株)のサーバを経由し、お問い合わせ先の不動産会社にメールまたはFAXにて転送されるためアットホーム(株)にも保管されます。アットホーム(株)で保管された個人情報の取り扱いについては、【こちら】をご覧ください。
また、本画面でご記入いただいた個人情報は、お問い合わせ先の不動産会社でも保管します。 お問い合わせ先の不動産会社が保管する個人情報の取り扱いについては、不動産会社に直接お問い合わせください。
国土交通大臣免許(1)第10473号 |
|---|
- 交通:
- JR山手線/上野駅 徒歩1分
- 東京都台東区上野7丁目2-2 東叡堂ビル4階
- TEL:
- 03-6824-9462
- FAX:
- 03-5246-4308
- 所属団体:
- (公社)東京都宅地建物取引業協会会員(公社)首都圏不動産公正取引協議会加盟
取引態様:仲介  - 00265536
|
- スマートフォンで
この不動産会社を見る

|
- 提携サイト等より掲載されている物件情報につきましては、不動産会社詳細情報にリンクされていないものがあります。
- 物件に関するお問合せは、物件詳細ページの「情報提供会社」に表示されている不動産会社へ直接お願いいたします。
- 間取図は、現況を優先させていただきます。
- 映像は物件の一部を撮影したものです。物件の契約にあたっての最終判断はご自身の判断に基づいて行ってください。
- 仲介手数料について

アットホームは物件情報の適正化に努めております。
内容に誤りがある場合にはこちらへご連絡ください。