神奈川県横浜市神奈川区子安通2丁目(新子安駅)の賃貸:物件詳細
交通 所在地 |
駅徒歩 |
賃料 管理費等 |
敷金/保証金 礼金 |
間取り 面積 |
物件種目 築年月 |
|
JR京浜東北線/新子安
神奈川県横浜市神奈川区子安通2丁目
|
3分
|
9.9万円
12,000円
|
なし / なし
なし
|
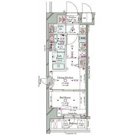
1DK
26.88m²
|
賃貸マンション
2026年1月
|
フリーレント、デザイナーズ、分譲タイプ、常時ゴミ出し可能、角部屋、二人入居可、24時間セキュリティー、2面採光、24時間換気システム、IT重説対応物件、保証人不要
|
|
間取図
☆人気エリアでのお部屋探し/まずはお気軽にご相談ください☆
|
外観
◆今だけ2か月分の賃料無料キャンペーン中◆
|
その他の画像
|
| 交通 | JR京浜東北線 新子安駅 徒歩3分 |
|---|
| その他の交通 | 京急本線 京急新子安駅 徒歩3分 JR横浜線 大口駅 徒歩19分 |
| 所在地 |
神奈川県横浜市神奈川区子安通2丁目
|
| 物件種目 |
賃貸マンション |
| 賃料 |
9.9万円 |
管理費等 |
12,000円 |
| 敷金 / 保証金 |
なし / なし |
礼金 |
なし |
| 敷引 |
- |
保証金償却 |
- |
| その他一時金 |
口座振替サービス料:5,280円、室内抗菌代:16,500円 |
保険等 |
要 |
| 維持費等 |
- |
クレジットカード決済 |
初期費用可 |
| 間取り |
1DK(DK6、洋4.3) |
専有面積 |
26.88m² |
| 築年月 |
2026年1月
|
階建 / 階 |
11階建 / 4階 |
| 建物構造 |
RC |
総戸数 |
- |
| 主要採光面 |
北 |
駐車場 |
- |
| バイク置き場 |
- |
駐輪場 |
- |
| 建物名・部屋番号 |
コンシェリア横濱 SHINKOYASU |
ペット |
-
|
| アピールポイント |
☆新築☆今だけ2ヶ月分の賃料無料&敷金礼金ゼロさらにネット無料☆当社専任で紹介可能なお部屋です☆ |
| リフォーム履歴 |
- |
| リノベーション履歴 |
- |
| 備考 |
賃貸保証等:加入要(アーバンプライム 初回保証委託料総賃料70%年間保証委託料1万円)
管理形態/管理員の勤務形態:-/-
バルコニー:3.52m²
フリーレント:2ヶ月
IT重説対応物件、二重床・二重天井
テレワークにオススメ
退去時クリーニング費49500円。安心入居パック39600円。ファストドクターの入居者サポート付、仕様・図面・写真等に相違があった場合は現況優先。エアコン内部洗浄特約16500円
|
| エネルギー消費性能 |
- |
| 断熱性能 |
- |
| 目安光熱費 |
- |
| バス・トイレ |
バス・トイレ別、浴室乾燥機、シャワー付洗面化粧台、洗面所独立、洗面所、洗面台、シャワー、温水洗浄便座、トイレ |
| キッチン |
システムキッチン、2口コンロ、ガスコンロ可 |
| セキュリティー |
モニター付オートロック、オートロック、モニター付インターホン、ダブルロックドア、防犯カメラ |
| 収納 |
収納スペース、クローゼット、シューズボックス |
| 設備・サービス |
室内洗濯機置場、二重床、洗濯機置場、都市ガス給湯、給湯、フローリング、室内物干し、都市ガス、エアコン、人感センサー付照明、照明器具 |
| TV・通信 |
インターネット対応、インターネット使用料無料、CS、BS端子 |
| その他 |
宅配BOX、バルコニー、エレベーター |
| 契約期間 |
2年 |
現況 |
空家 |
| 条件等 |
- |
入居可能時期 |
2026年1月下旬予定 |
| 更新料 |
新賃料 1.5ヶ月 |
物件番号 |
1162217316 |
| 情報公開日 |
2025年11月3日 |
次回更新予定日 |
2025年11月17日 |
| ケータイ用バーコード |
- スマートフォンでこの物件を見る
- スマートフォンからもこの物件をご覧になれます。
|
※「-」と表示されている項目については、情報提供会社にご確認ください。
| 周辺施設 |
そうてつローゼンオルト新子安店 |
| 距離 |
428m |
写真を見る |
| 周辺施設 |
オルトヨコハマ |
| 距離 |
351m |
写真を見る |
| 周辺施設 |
セブンイレブン 横浜子安通2丁目店 |
| 距離 |
72m |
写真を見る |
| 周辺施設 |
ハックドラッグ新子安店 |
| 距離 |
375m |
写真を見る |
| 周辺施設 |
マクドナルド 15号新子安店 |
| 距離 |
319m |
写真を見る |
| 周辺施設 |
横浜新子安郵便局 |
| 距離 |
453m |
写真を見る |
ここから簡単にお問い合わせをすることができます。
(SSLでの暗号化での送信を希望されるお客さまは
こちら
よりお問い合わせください)
お問い合わせを行う前に
「個人情報の取り扱いについて」を必ずお読みください。
「個人情報の取り扱いについて」に同意いただいた場合は「上記にご同意の上 確認画面へ進む」のボタンをクリックしてください。
個人情報の取り扱いについて
皆さまが送付された個人情報はアットホーム(株)のサーバを経由し、お問い合わせ先の不動産会社にメールまたはFAXにて転送されるためアットホーム(株)にも保管されます。アットホーム(株)で保管された個人情報の取り扱いについては、【こちら】をご覧ください。
また、本画面でご記入いただいた個人情報は、お問い合わせ先の不動産会社でも保管します。 お問い合わせ先の不動産会社が保管する個人情報の取り扱いについては、不動産会社に直接お問い合わせください。
国土交通大臣免許(1)第10473号 |
|---|
- 交通:
- JR京浜東北線/横浜駅 徒歩8分
- 神奈川県横浜市神奈川区台町17-1 マストビル7階
- TEL:
- 045-412-3530
- 所属団体:
- (公社)神奈川県宅地建物取引業協会会員(公社)首都圏不動産公正取引協議会加盟
取引態様:仲介  - 00275825
|
- スマートフォンで
この不動産会社を見る

|
- 提携サイト等より掲載されている物件情報につきましては、不動産会社詳細情報にリンクされていないものがあります。
- 物件に関するお問合せは、物件詳細ページの「情報提供会社」に表示されている不動産会社へ直接お願いいたします。
- 間取図は、現況を優先させていただきます。
- 映像は物件の一部を撮影したものです。物件の契約にあたっての最終判断はご自身の判断に基づいて行ってください。
- 仲介手数料について

アットホームは物件情報の適正化に努めております。
内容に誤りがある場合にはこちらへご連絡ください。