東京都板橋区高島平9丁目(西台駅)の賃貸:物件詳細
交通 所在地 |
駅徒歩 |
賃料 管理費等 |
敷金/保証金 礼金 |
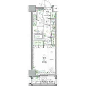
間取り 面積 |
物件種目 築年月 |
|
都営三田線/西台
東京都板橋区高島平9丁目
|
9分
|
8.05万円
15,000円
|
なし / なし
0.5ヶ月
|
1K
25.62m²
|
賃貸マンション
2017年2月(築8年10ヶ月)
|
ペット相談、分譲タイプ、常時ゴミ出し可能、24時間換気システム、外観タイル張り、IT重説対応物件、保証人不要
|
|
間取図
|
外観
|
<
その他の画像
>
|
| 交通 | 都営三田線 西台駅 徒歩9分 |
|---|
| その他の交通 | 都営三田線 高島平駅 徒歩11分 都営三田線 蓮根駅 徒歩21分 |
| 所在地 |
東京都板橋区高島平9丁目
|
| 物件種目 |
賃貸マンション |
| 賃料 |
8.05万円 |
管理費等 |
15,000円 |
| 敷金 / 保証金 |
なし / なし |
礼金 |
0.5ヶ月 |
| 敷引 |
- |
保証金償却 |
- |
| その他一時金 |
書類作成代:11,000円、室内清掃費用:55,000円、鍵交換代等:44,000円~ |
保険等 |
要 |
| 維持費等 |
火災保険:800円/月 |
| 間取り |
1K(洋7.7) |
専有面積 |
25.62m² |
| 築年月 |
2017年2月(築8年10ヶ月)
|
階建 / 階 |
10階建 / 2階 |
| 建物構造 |
RC |
総戸数 |
- |
| 主要採光面 |
北 |
駐車場 |
- |
| バイク置き場 |
- |
駐輪場 |
有 |
| 建物名・部屋番号 |
|
ペット |
小型犬可・ 猫可 |
| アピールポイント |
室内設備は浴室乾燥機・洗面所独立など豊富に揃っており、過ごしやすいお部屋になっております。収納はクロゼット・シューズボックスなどが備え付けられているので、衣類や日用品の収納に重宝します。共用部にはゴミ出し24時間OK・宅配ボックスなどが揃っております。セキュリティ面は、オートロック・TVインターホンなど充実しているので安心して生活できます。共用設備の充実している、楽しく生活できるマンションです。システムキッチンなので、お掃除も楽々です。パソコン作業が多い方にはもってこいの物件マンション、光回線導入済み。気軽にごみを捨てることができて便利な敷地内ごみ置き場つきの物件です。住みやすい環境が嬉しい賃貸物件です。過ごしやすい環境を実現する、エアコン付きのマンションです。二口コンロが付いている物件です。 |
| リフォーム履歴 |
- |
| リノベーション履歴 |
- |
| 備考 |
賃貸保証等:加入要(初回保証料:総賃料の40%)
管理形態/管理員の勤務形態:-/巡回
IT重説対応物件、管理人巡回
インターネット上で他にも気になるお部屋がございましたら、当社でまとめてご案内可能です。ご不明な点やご質問などございましたら、お気軽に何でもお問い合わせ下さいませ。
収納はクロゼット・シューズボックスなどが備え付けられているので、衣類や日用品の収納に重宝します。共用部には宅配ボックス・ゴミ出し24時間OKなどが揃っております。室内設備は洗面化粧台・浴室乾燥機など充実した設備を備え付けています。セキュリティ面は、オートロック・TVインターホンなどを備え付けているので安心して暮らせます。マンションタイプのお部屋です。光回線を繋げていますので通信が早く快適にパソコンが使えます。マンションの不備も定期的にメンテナンスしてくれるので安心。新しい日々を送るにふさわしい、きれいな室内です。こちらはペット相談可の物件です。お気軽にご相談ください。2口コンロが付いているので、忙しい朝でも短い時間で一気に料理ができます。フローリング仕様のマンションです。
|
| エネルギー消費性能 |
- |
| 断熱性能 |
- |
| 目安光熱費 |
- |
| バス・トイレ |
バス・トイレ別、浴室乾燥機、シャワー付洗面化粧台、洗面所独立、洗面所、洗面台、シャワー、温水洗浄便座、トイレ |
| キッチン |
システムキッチン、2口コンロ、ガスコンロ可、グリル |
| セキュリティー |
モニター付オートロック、オートロック、モニター付インターホン、ディンプルキー、ダブルロックドア、防犯カメラ |
| 収納 |
収納スペース、クローゼット、シューズボックス |
| 設備・サービス |
室内洗濯機置場、洗濯機置場、都市ガス給湯、給湯、フローリング、都市ガス、エアコン、冷房、人感センサー付照明、照明器具 |
| TV・通信 |
インターネット対応、インターネット使用料無料、光ファイバー、ケーブルTV、CS、BS端子 |
| その他 |
宅配BOX、バルコニー、駐輪場、エレベーター |
| 契約期間 |
2年 |
現況 |
居住中 |
| 条件等 |
- |
入居可能時期 |
相談 |
| 更新料 |
新賃料 1ヶ月 |
物件番号 |
1162596616 |
| 情報公開日 |
2025年11月3日 |
次回更新予定日 |
2025年11月17日 |
| ケータイ用バーコード |
- スマートフォンでこの物件を見る
- スマートフォンからもこの物件をご覧になれます。
|
※「-」と表示されている項目については、情報提供会社にご確認ください。
| 周辺施設 |
ココカラファイン 高島平店 |
| 距離 |
293m |
写真を見る |
| 周辺施設 |
セブンイレブン 板橋高島平9丁目店 |
| 距離 |
403m |
写真を見る |
| 周辺施設 |
板橋西台駅前郵便局 |
| 距離 |
552m |
写真を見る |
| 周辺施設 |
ファミリーマート 板橋市場通り店 |
| 距離 |
606m |
写真を見る |
| 周辺施設 |
なか卯 高島平店 |
| 距離 |
641m |
写真を見る |
| 周辺施設 |
板橋高島平八郵便局 |
| 距離 |
744m |
写真を見る |
| 周辺施設 |
スギ薬局 西台店 |
| 距離 |
1405m |
写真を見る |
ここから簡単にお問い合わせをすることができます。
(SSLでの暗号化での送信を希望されるお客さまは
こちら
よりお問い合わせください)
お問い合わせを行う前に
「個人情報の取り扱いについて」を必ずお読みください。
「個人情報の取り扱いについて」に同意いただいた場合は「上記にご同意の上 確認画面へ進む」のボタンをクリックしてください。
個人情報の取り扱いについて
皆さまが送付された個人情報はアットホーム(株)のサーバを経由し、お問い合わせ先の不動産会社にメールまたはFAXにて転送されるためアットホーム(株)にも保管されます。アットホーム(株)で保管された個人情報の取り扱いについては、【こちら】をご覧ください。
また、本画面でご記入いただいた個人情報は、お問い合わせ先の不動産会社でも保管します。 お問い合わせ先の不動産会社が保管する個人情報の取り扱いについては、不動産会社に直接お問い合わせください。
東京都知事免許(1)第111656号 |
|---|
- 交通:
- JR山手線/池袋駅
- 東京都豊島区東池袋1丁目42-14 28山京ビル7階8号室
- TEL:
- 03-6820-4263
- 所属団体:
- (公社)全日本不動産協会会員(公社)首都圏不動産公正取引協議会加盟
取引態様:仲介  - 00278775
|
- スマートフォンで
この不動産会社を見る

|
- 提携サイト等より掲載されている物件情報につきましては、不動産会社詳細情報にリンクされていないものがあります。
- 物件に関するお問合せは、物件詳細ページの「情報提供会社」に表示されている不動産会社へ直接お願いいたします。
- 間取図は、現況を優先させていただきます。
- 映像は物件の一部を撮影したものです。物件の契約にあたっての最終判断はご自身の判断に基づいて行ってください。
- 仲介手数料について

アットホームは物件情報の適正化に努めております。
内容に誤りがある場合にはこちらへご連絡ください。