東京都荒川区西日暮里2丁目(西日暮里駅)の賃貸:物件詳細
交通 所在地 |
駅徒歩 |
賃料 管理費等 |
敷金/保証金 礼金 |
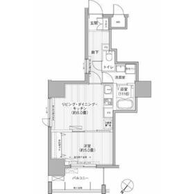
間取り 面積 |
物件種目 築年月 |
|
東京メトロ千代田線/西日暮里
東京都荒川区西日暮里2丁目
|
3分
|
15.2万円
6,000円
|
1ヶ月 / なし
1ヶ月
|
1LDK
35.05m²
|
賃貸マンション
2020年3月(築5年9ヶ月)
|
二人入居可
|
|
間取図
|
外観
|
その他の画像
|
| 交通 | 東京メトロ千代田線 西日暮里駅 徒歩3分 |
|---|
| その他の交通 | JR山手線 日暮里駅 徒歩6分 JR常磐線 三河島駅 徒歩13分 |
| 所在地 |
東京都荒川区西日暮里2丁目
|
| 物件種目 |
賃貸マンション |
| 賃料 |
15.2万円 |
管理費等 |
6,000円 |
| 敷金 / 保証金 |
1ヶ月 / なし |
礼金 |
1ヶ月 |
| 敷引 |
- |
保証金償却 |
- |
| その他一時金 |
なし、鍵交換代等:22,000円~ |
保険等 |
要 2年 21,500円 |
| 維持費等 |
- |
| 間取り |
1LDK(LDK8、洋5) |
専有面積 |
35.05m² |
| 築年月 |
2020年3月(築5年9ヶ月)
|
階建 / 階 |
14階建 / 5階 |
| 建物構造 |
RC |
総戸数 |
- |
| 主要採光面 |
南東 |
駐車場 |
- |
| バイク置き場 |
- |
駐輪場 |
有 無料 |
| 建物名・部屋番号 |
Grandeur Fuji(グランデュール富士) 503 |
ペット |
-
|
| リフォーム履歴 |
- |
| リノベーション履歴 |
- |
| 備考 |
賃貸保証等:加入要(①個人:大和ハウスフィナンシャル【初回総賃料の35%、毎月1%、更新料1%/2年】 ②法人:SBI【初回総賃料の40%、更新料8,000円/1年】※大手法人様はご相談ください ③外国籍:GTN【初回総)
管理形態/管理員の勤務形態:-/巡回
管理人巡回
「Grandeur Fuji(グランデュール富士)」のここがイチオシ。荷物を受け取れないときは宅配ボックスに届けられるので、外出や入浴など私生活中に配達時間を気にする必要はありません。洗濯物を急いで乾かしたいときには、この物件に備わっている浴室乾燥機が役立ちます。快適な住まいを手に入れるなら、当社にお任せください!当社では西日暮里周辺の賃貸情報を多種多様に取り扱っております。
「Grandeur Fuji(グランデュール富士)」のここがイチオシ。外干しできない時も居室の一部を物干しスペースにしなくて済む、浴室乾燥機があります。セキュリティ面は、TVインターホン・オートロックなどを備え付けているので安心して暮らせます。専有面積は35.05平米です。西日暮里周辺の地域情報をお求めならお任せください!地元密着の当社が、お客様のお部屋探しを全力でお手伝い致します。
|
| エネルギー消費性能 |
- |
| 断熱性能 |
- |
| 目安光熱費 |
- |
| バス・トイレ |
バス・トイレ別、浴室乾燥機、オートバス、追焚機能、温水洗浄便座、トイレ |
| キッチン |
システムキッチン、IHクッキングヒーター、3口以上コンロ、グリル |
| セキュリティー |
モニター付オートロック、オートロック、モニター付インターホン、防犯カメラ |
| 収納 |
収納スペース、クローゼット |
| 設備・サービス |
室内洗濯機置場、洗濯機置場、フローリング、エアコン |
| TV・通信 |
インターネット対応、光ファイバー、CS、BS端子 |
| その他 |
宅配BOX、バルコニー、駐輪場、エレベーター |
| 契約期間 |
2年 |
現況 |
空家 |
| 条件等 |
- |
入居可能時期 |
相談 |
| 更新料 |
新賃料 1ヶ月 |
物件番号 |
1162674116 |
| 情報公開日 |
2025年11月3日 |
次回更新予定日 |
2025年11月17日 |
| ケータイ用バーコード |
- スマートフォンでこの物件を見る
- スマートフォンからもこの物件をご覧になれます。
|
※「-」と表示されている項目については、情報提供会社にご確認ください。
ここから簡単にお問い合わせをすることができます。
(SSLでの暗号化での送信を希望されるお客さまは
こちら
よりお問い合わせください)
お問い合わせを行う前に
「個人情報の取り扱いについて」を必ずお読みください。
「個人情報の取り扱いについて」に同意いただいた場合は「上記にご同意の上 確認画面へ進む」のボタンをクリックしてください。
個人情報の取り扱いについて
皆さまが送付された個人情報はアットホーム(株)のサーバを経由し、お問い合わせ先の不動産会社にメールまたはFAXにて転送されるためアットホーム(株)にも保管されます。アットホーム(株)で保管された個人情報の取り扱いについては、【こちら】をご覧ください。
また、本画面でご記入いただいた個人情報は、お問い合わせ先の不動産会社でも保管します。 お問い合わせ先の不動産会社が保管する個人情報の取り扱いについては、不動産会社に直接お問い合わせください。
国土交通大臣免許(9)第3517号 |
|---|
- 交通:
- 東京メトロ千代田線/北千住駅 徒歩2分
- 東京都足立区千住2丁目22-14
- TEL:
- 03-3870-8000
- FAX:
- 03-3870-8010
- 所属団体:
- (公社)東京都宅地建物取引業協会会員不動産公正取引協議会加盟
取引態様:仲介  - 00018682
|
- スマートフォンで
この不動産会社を見る

|
- 提携サイト等より掲載されている物件情報につきましては、不動産会社詳細情報にリンクされていないものがあります。
- 物件に関するお問合せは、物件詳細ページの「情報提供会社」に表示されている不動産会社へ直接お願いいたします。
- 間取図は、現況を優先させていただきます。
- 映像は物件の一部を撮影したものです。物件の契約にあたっての最終判断はご自身の判断に基づいて行ってください。
- 仲介手数料について

アットホームは物件情報の適正化に努めております。
内容に誤りがある場合にはこちらへご連絡ください。