東京都豊島区池袋本町1丁目(北池袋駅)の賃貸:物件詳細
交通 所在地 |
駅徒歩 |
賃料 管理費等 |
敷金/保証金 礼金 |
間取り 面積 |
物件種目 築年月 |
|
東武東上線/北池袋
東京都豊島区池袋本町1丁目
|
8分
|
11.2万円
14,000円
|
なし / なし
1ヶ月
|
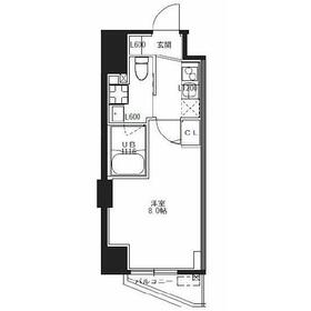
1K
25.67m²
|
賃貸マンション
2018年12月(築6年11ヶ月)
|
ペット相談、外観タイル張り、保証人不要
|
|
間取図
|
外観
|
<
その他の画像
>
|
| 交通 | 東武東上線 北池袋駅 徒歩8分 |
|---|
| その他の交通 | JR山手線 池袋駅 徒歩12分 東武東上線 下板橋駅 徒歩13分 |
| 所在地 |
東京都豊島区池袋本町1丁目
|
| 物件種目 |
賃貸マンション |
| 賃料 |
11.2万円 |
管理費等 |
14,000円 |
| 敷金 / 保証金 |
なし / なし |
礼金 |
1ヶ月 |
| 敷引 |
- |
保証金償却 |
- |
| その他一時金 |
なし |
保険等 |
要 2年 18,000円 |
| 維持費等 |
口座振替手数料:330円/月 |
| 間取り |
1K(洋8) |
専有面積 |
25.67m² |
| 築年月 |
2018年12月(築6年11ヶ月)
|
階建 / 階 |
11階建 / 4階 |
| 建物構造 |
RC |
総戸数 |
- |
| 主要採光面 |
南西 |
駐車場 |
- |
| バイク置き場 |
- |
駐輪場 |
有 無料 |
| 建物名・部屋番号 |
S-RESIDENCE池袋Norte |
ペット |
小型犬可・ 猫可 |
| リフォーム履歴 |
- |
| リノベーション履歴 |
- |
| 備考 |
賃貸保証等:加入要(初回保証料:総賃料の50%更新料:12,000円/年)
管理形態/管理員の勤務形態:-/巡回
管理人巡回
・退去時費用:鍵交換代 33,000円(税込)/クリーニング代 49,500円(税込)/エアコンクリーニング代 16,500円(税込)
・短期解約違約金あり
・法人契約は礼金+1カ月/敷金+1カ月
※写真・図面と現況が異なる場合、現況を優先させていただきます。
・ペット飼育:敷金1カ月・礼金25,000円+賃料総額:犬 3,000円/月 猫 10,000円/月(小型犬or猫1匹迄)
|
| エネルギー消費性能 |
- |
| 断熱性能 |
- |
| 目安光熱費 |
- |
| バス・トイレ |
バス・トイレ別、浴室乾燥機、洗面所独立、洗面所、シャワー、温水洗浄便座、トイレ |
| キッチン |
システムキッチン、2口コンロ、ガスコンロ可 |
| セキュリティー |
モニター付オートロック、オートロック、モニター付インターホン、ダブルロックドア、防犯カメラ |
| 収納 |
収納スペース、クローゼット、シューズボックス |
| 設備・サービス |
全居室エアコン、室内洗濯機置場、洗濯機置場、全居室フローリング、フローリング、都市ガス、エアコン、ダウンライト、照明器具 |
| TV・通信 |
インターネット対応、インターネット使用料無料 |
| その他 |
宅配BOX、バルコニー、駐輪場、エレベーター |
| 契約期間 |
2年 |
現況 |
空家 |
| 条件等 |
- |
入居可能時期 |
相談 |
| 更新料 |
新賃料 1ヶ月 |
物件番号 |
1162688313 |
| 情報公開日 |
2025年10月29日 |
次回更新予定日 |
2025年11月12日 |
| ケータイ用バーコード |
- スマートフォンでこの物件を見る
- スマートフォンからもこの物件をご覧になれます。
|
※「-」と表示されている項目については、情報提供会社にご確認ください。
| 周辺施設 |
みんなのイチバ池袋2丁目店 |
| 距離 |
429m |
写真を見る |
| 周辺施設 |
miniピアゴ 池袋2丁目店 |
| 距離 |
429m |
写真を見る |
| 周辺施設 |
ファミリーマート 池袋本町1丁目店 |
| 距離 |
254m |
写真を見る |
| 周辺施設 |
ローソンストア100池袋本町一丁目店 |
| 距離 |
297m |
写真を見る |
| 周辺施設 |
セブンイレブン 池袋西口 |
| 距離 |
336m |
写真を見る |
| 周辺施設 |
マツモトキヨシ南池袋店 |
| 距離 |
980m |
写真を見る |
| 周辺施設 |
スギ薬局池袋本町店 |
| 距離 |
677m |
写真を見る |
| 周辺施設 |
池袋四郵便局 |
| 距離 |
209m |
写真を見る |
ここから簡単にお問い合わせをすることができます。
(SSLでの暗号化での送信を希望されるお客さまは
こちら
よりお問い合わせください)
お問い合わせを行う前に
「個人情報の取り扱いについて」を必ずお読みください。
「個人情報の取り扱いについて」に同意いただいた場合は「上記にご同意の上 確認画面へ進む」のボタンをクリックしてください。
個人情報の取り扱いについて
皆さまが送付された個人情報はアットホーム(株)のサーバを経由し、お問い合わせ先の不動産会社にメールまたはFAXにて転送されるためアットホーム(株)にも保管されます。アットホーム(株)で保管された個人情報の取り扱いについては、【こちら】をご覧ください。
また、本画面でご記入いただいた個人情報は、お問い合わせ先の不動産会社でも保管します。 お問い合わせ先の不動産会社が保管する個人情報の取り扱いについては、不動産会社に直接お問い合わせください。
東京都知事免許(3)第96228号 |
|---|
- 交通:
- 東京メトロ有楽町線/池袋駅 徒歩3分
- 東京都豊島区池袋2丁目53-1
- TEL:
- 03-5927-1172
- FAX:
- 03-5927-1173
- 所属団体:
- (公社)東京都宅地建物取引業協会会員(公社)首都圏不動産公正取引協議会加盟
取引態様:仲介  - 00279020
|
- スマートフォンで
この不動産会社を見る

|
- 提携サイト等より掲載されている物件情報につきましては、不動産会社詳細情報にリンクされていないものがあります。
- 物件に関するお問合せは、物件詳細ページの「情報提供会社」に表示されている不動産会社へ直接お願いいたします。
- 間取図は、現況を優先させていただきます。
- 映像は物件の一部を撮影したものです。物件の契約にあたっての最終判断はご自身の判断に基づいて行ってください。
- 仲介手数料について

アットホームは物件情報の適正化に努めております。
内容に誤りがある場合にはこちらへご連絡ください。