兵庫県明石市西明石町5丁目(西明石駅)の賃貸:物件詳細
交通 所在地 |
駅徒歩 |
賃料 管理費等 |
敷金/保証金 礼金 |
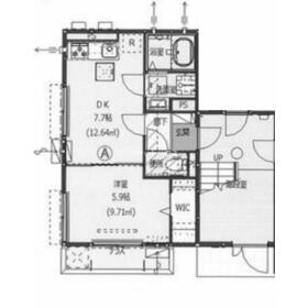
間取り 面積 |
物件種目 築年月 |
JR山陽本線/西明石
兵庫県明石市西明石町5丁目
|
10分
|
8.3万円
5,000円
|
なし / なし
1ヶ月
|
1DK
30.30m²
|
賃貸アパート
2023年10月(築2年1ヶ月)
|
角部屋、南向き、24時間換気システム、IT重説対応物件
|
間取図
|
外観
|
<
その他の画像
>
|
交通 | JR山陽本線 西明石駅 徒歩10分 |
---|
その他の交通 | 山陽電鉄本線 林崎松江海岸駅 徒歩26分 山陽電鉄本線 藤江駅 徒歩29分 |
所在地 |
兵庫県明石市西明石町5丁目
|
物件種目 |
賃貸アパート |
賃料 |
8.3万円 |
管理費等 |
5,000円 |
敷金 / 保証金 |
なし / なし |
礼金 |
1ヶ月 |
敷引 |
- |
保証金償却 |
- |
その他一時金 |
なし |
保険等 |
要 2年 18,000円 |
維持費等 |
- |
クレジットカード決済 |
初期費用可 |
間取り |
1DK |
専有面積 |
30.30m² |
築年月 |
2023年10月(築2年1ヶ月)
|
階建 / 階 |
3階建 / 2階 |
建物構造 |
軽量鉄骨造 |
総戸数 |
- |
主要採光面 |
南 |
駐車場 |
- |
バイク置き場 |
- |
駐輪場 |
有 |
建物名・部屋番号 |
エスターテ西明石 |
ペット |
-
|
アピールポイント |
物件情報ページをご覧いただき誠にありがとうございます!インターネットで募集中の物件は全て弊社でご紹介可能です!もちろんまとめてご案内も可能です!また、他社様でご紹介されている物件も弊社でご紹介の場合、様々な交渉が可能な物件も多数ございます。お問い合わせは【TEL:078-855-9599】 までお電話ください!※当日のご内見予約も可能!是非、ピタットハウス垂水店へお越しください!
|
リフォーム履歴 |
- |
リノベーション履歴 |
- |
備考 |
賃貸保証等:加入要(初回総賃料50% 更新有:1年10,000円 更新無:初回総賃料100%)
管理形態/管理員の勤務形態:-/-
IT重説対応物件
|
エネルギー消費性能 |
- |
断熱性能 |
- |
目安光熱費 |
- |
バス・トイレ |
バス・トイレ別、追焚機能、洗面所独立、洗面台、シャワー、温水洗浄便座、トイレ |
キッチン |
システムキッチン、3口以上コンロ、ガスコンロ付、グリル |
セキュリティー |
オートロック、モニター付インターホン、カードキー、防犯カメラ |
収納 |
ウォークインクローゼット、収納スペース、クローゼット、シューズボックス |
設備・サービス |
室内洗濯機置場、洗濯機置場、給湯、全居室フローリング、フローリング、都市ガス、エアコン、暖房、冷房 |
TV・通信 |
インターネット対応、インターネット使用料無料 |
その他 |
宅配BOX、バルコニー、駐輪場 |
契約期間 |
2年 |
現況 |
空家 |
条件等 |
- |
入居可能時期 |
即時 |
更新料 |
- |
物件番号 |
1162977811 |
情報公開日 |
2025年9月21日 |
次回更新予定日 |
2025年10月6日 |
ケータイ用バーコード |
- スマートフォンでこの物件を見る
- スマートフォンからもこの物件をご覧になれます。
|
※「-」と表示されている項目については、情報提供会社にご確認ください。
周辺施設 |
マックスバリュ 西明石南店 |
距離 |
1037m |
写真を見る |
周辺施設 |
マルアイ 貴崎店 |
距離 |
2069m |
写真を見る |
周辺施設 |
マルアイ 王塚台店 |
距離 |
1183m |
写真を見る |
周辺施設 |
めぐみの郷枝吉店 |
距離 |
1091m |
写真を見る |
周辺施設 |
山本内科医院 |
距離 |
1224m |
写真を見る |
周辺施設 |
セブンイレブン 神戸森友2丁目店 |
距離 |
1418m |
写真を見る |
ここから簡単にお問い合わせをすることができます。
(SSLでの暗号化での送信を希望されるお客さまは
こちら
よりお問い合わせください)
お問い合わせを行う前に
「個人情報の取り扱いについて」を必ずお読みください。
「個人情報の取り扱いについて」に同意いただいた場合は「上記にご同意の上 確認画面へ進む」のボタンをクリックしてください。
個人情報の取り扱いについて
皆さまが送付された個人情報はアットホーム(株)のサーバを経由し、お問い合わせ先の不動産会社にメールまたはFAXにて転送されるためアットホーム(株)にも保管されます。アットホーム(株)で保管された個人情報の取り扱いについては、【こちら】をご覧ください。
また、本画面でご記入いただいた個人情報は、お問い合わせ先の不動産会社でも保管します。 お問い合わせ先の不動産会社が保管する個人情報の取り扱いについては、不動産会社に直接お問い合わせください。
兵庫県知事免許(1)第12246号 |
---|
- 交通:
- JR山陽本線/垂水駅 徒歩2分
- 兵庫県神戸市垂水区宮本町3-13
- TEL:
- 078-855-9599
- 所属団体:
- (公社)全日本不動産協会会員(公社)近畿地区不動産公正取引協議会加盟
取引態様:仲介  - 50106497
|
- スマートフォンで
この不動産会社を見る

|
- 提携サイト等より掲載されている物件情報につきましては、不動産会社詳細情報にリンクされていないものがあります。
- 物件に関するお問合せは、物件詳細ページの「情報提供会社」に表示されている不動産会社へ直接お願いいたします。
- 間取図は、現況を優先させていただきます。
- 映像は物件の一部を撮影したものです。物件の契約にあたっての最終判断はご自身の判断に基づいて行ってください。
- 仲介手数料について

アットホームは物件情報の適正化に努めております。
内容に誤りがある場合にはこちらへご連絡ください。