東京都江東区永代1丁目(門前仲町駅)の賃貸:物件詳細
交通 所在地 |
駅徒歩 |
賃料 管理費等 |
敷金/保証金 礼金 |
間取り 面積 |
物件種目 築年月 |
|
東京メトロ東西線/門前仲町
東京都江東区永代1丁目
|
7分
|
11.8万円
12,000円
|
なし / なし
1ヶ月
|
1K
26.55m²
|
賃貸マンション
2023年2月(築2年10ヶ月)
|
デザイナーズ、分譲タイプ、常時ゴミ出し可能、角部屋、二人入居可、24時間セキュリティー、24時間換気システム、IT重説対応物件、保証人不要
|
|
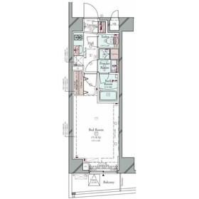
間取図
☆門前仲町の静かな隠れ家/直接の管理会社クレアスレント☆
|
外観
人気の門前仲町エリアの分譲マンション
|
<
その他の画像
>
|
| 交通 | 東京メトロ東西線 門前仲町駅 徒歩7分 |
|---|
| その他の交通 | JR京葉線 越中島駅 徒歩10分 東京メトロ半蔵門線 水天宮前駅 徒歩18分 |
| 所在地 |
東京都江東区永代1丁目
|
| 物件種目 |
賃貸マンション |
| 賃料 |
11.8万円 |
管理費等 |
12,000円 |
| 敷金 / 保証金 |
なし / なし |
礼金 |
1ヶ月 |
| 敷引 |
- |
保証金償却 |
- |
| その他一時金 |
口座振替サービス料:5,280円、室内抗菌代:16,500円、鍵交換代等:32,450円~ |
保険等 |
要 |
| 維持費等 |
- |
クレジットカード決済 |
初期費用可 |
| 間取り |
1K(洋8.5、K2) |
専有面積 |
26.55m² |
| 築年月 |
2023年2月(築2年10ヶ月)
|
階建 / 階 |
9階建 / 2階 |
| 建物構造 |
RC |
総戸数 |
- |
| 主要採光面 |
南東 |
駐車場 |
- |
| バイク置き場 |
- |
駐輪場 |
- |
| 建物名・部屋番号 |
コンシェリア門前仲町 AQUA VERT |
ペット |
-
|
| アピールポイント |
☆インターネット無料/都心直結の利便性と、分譲仕様の快適さ/直接の管理会社クレアスレント☆ |
| リフォーム履歴 |
- |
| リノベーション履歴 |
- |
| 備考 |
賃貸保証等:加入要(アーバンプライム 初回保証委託料総賃料70%年間保証委託料1万円)
管理形態/管理員の勤務形態:-/-
バルコニー:3.99m²
IT重説対応物件
テレワークにオススメ
退去時クリーニング費49500円。安心入居パック39600円。2名入居時賃料5000円増額(1年未満解約違約金1か月)ファストドクターの入居者サポート付、仕様・図面・写真等に相違があった場合は現況優先
|
| エネルギー消費性能 |
- |
| 断熱性能 |
- |
| 目安光熱費 |
- |
| バス・トイレ |
バス・トイレ別、浴室乾燥機、オートバス、追焚機能、シャワー付洗面化粧台、洗面所独立、洗面所、洗面台、シャワー、温水洗浄便座、トイレ |
| キッチン |
システムキッチン、浄水器、2口コンロ、ガスコンロ可 |
| セキュリティー |
モニター付オートロック、オートロック、モニター付インターホン、ダブルロックドア、防犯カメラ |
| 収納 |
収納スペース、クローゼット、シューズボックス |
| 設備・サービス |
室内洗濯機置場、洗濯機置場、都市ガス給湯、給湯、フローリング、室内物干し、都市ガス、エアコン、人感センサー付照明、ダウンライト、照明器具 |
| TV・通信 |
インターネット対応、インターネット使用料無料、CS、BS端子 |
| その他 |
宅配BOX、バルコニー、エレベーター |
| 契約期間 |
2年 |
現況 |
居住中 |
| 条件等 |
- |
入居可能時期 |
2026年1月上旬予定 |
| 更新料 |
新賃料 1.5ヶ月 |
物件番号 |
1162982516 |
| 情報公開日 |
2025年11月4日 |
次回更新予定日 |
2025年11月19日 |
| ケータイ用バーコード |
- スマートフォンでこの物件を見る
- スマートフォンからもこの物件をご覧になれます。
|
※「-」と表示されている項目については、情報提供会社にご確認ください。
| 周辺施設 |
ローソン 永代橋店 |
| 距離 |
361m |
写真を見る |
| 周辺施設 |
まいばすけっと江東永代2丁目店 |
| 距離 |
455m |
写真を見る |
| 周辺施設 |
セブンイレブン 門前仲町駅西店 |
| 距離 |
379m |
写真を見る |
| 周辺施設 |
セブンイレブン 江東佐賀1丁目店 |
| 距離 |
416m |
写真を見る |
| 周辺施設 |
江東永代郵便局 |
| 距離 |
409m |
写真を見る |
| 周辺施設 |
すき家 新川永代橋店 |
| 距離 |
562m |
写真を見る |
ここから簡単にお問い合わせをすることができます。
(SSLでの暗号化での送信を希望されるお客さまは
こちら
よりお問い合わせください)
お問い合わせを行う前に
「個人情報の取り扱いについて」を必ずお読みください。
「個人情報の取り扱いについて」に同意いただいた場合は「上記にご同意の上 確認画面へ進む」のボタンをクリックしてください。
個人情報の取り扱いについて
皆さまが送付された個人情報はアットホーム(株)のサーバを経由し、お問い合わせ先の不動産会社にメールまたはFAXにて転送されるためアットホーム(株)にも保管されます。アットホーム(株)で保管された個人情報の取り扱いについては、【こちら】をご覧ください。
また、本画面でご記入いただいた個人情報は、お問い合わせ先の不動産会社でも保管します。 お問い合わせ先の不動産会社が保管する個人情報の取り扱いについては、不動産会社に直接お問い合わせください。
国土交通大臣免許(1)第10473号 |
|---|
- 交通:
- JR山手線/上野駅 徒歩1分
- 東京都台東区上野7丁目2-2 東叡堂ビル4階
- TEL:
- 03-6824-9462
- FAX:
- 03-5246-4308
- 所属団体:
- (公社)東京都宅地建物取引業協会会員(公社)首都圏不動産公正取引協議会加盟
取引態様:仲介  - 00265536
|
- スマートフォンで
この不動産会社を見る

|
- 提携サイト等より掲載されている物件情報につきましては、不動産会社詳細情報にリンクされていないものがあります。
- 物件に関するお問合せは、物件詳細ページの「情報提供会社」に表示されている不動産会社へ直接お願いいたします。
- 間取図は、現況を優先させていただきます。
- 映像は物件の一部を撮影したものです。物件の契約にあたっての最終判断はご自身の判断に基づいて行ってください。
- 仲介手数料について

アットホームは物件情報の適正化に努めております。
内容に誤りがある場合にはこちらへご連絡ください。