東京都中央区八丁堀3丁目(八丁堀駅)の賃貸:物件詳細
交通 所在地 |
駅徒歩 |
賃料 管理費等 |
敷金/保証金 礼金 |
間取り 面積 |
物件種目 築年月 |
|
東京メトロ日比谷線/八丁堀
東京都中央区八丁堀3丁目
|
4分
|
18.3万円
10,000円
|
1ヶ月 / なし
1ヶ月
|
1LDK
41.70m²
|
賃貸マンション
2004年8月(築21年8ヶ月)
|
常時ゴミ出し可能、保証人不要
|
|
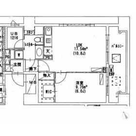
間取図
Qタイプ
|
外観
2022年11月撮影
|
<
その他の画像
>
|
| 交通 | 東京メトロ日比谷線 八丁堀駅 徒歩4分 |
|---|
| その他の交通 | 都営浅草線 宝町駅 徒歩4分 |
| 所在地 |
東京都中央区八丁堀3丁目
|
| 物件種目 |
賃貸マンション |
| 賃料 |
18.3万円 |
管理費等 |
10,000円 |
| 敷金 / 保証金 |
1ヶ月 / なし |
礼金 |
1ヶ月 |
| 敷引 |
- |
保証金償却 |
- |
| その他一時金 |
入居時鍵交換費用:38,500円、M-REALプレミアム会費2年:19,800円 |
保険等 |
要 2年 32,000円 |
| 維持費等 |
- |
| 間取り |
1LDK(LDK10.8、洋6) |
専有面積 |
41.70m² |
| 築年月 |
2004年8月(築21年8ヶ月)
|
階建 / 階 |
地上13階地下1階建 / 9階 |
| 建物構造 |
SRC |
総戸数 |
- |
| 主要採光面 |
東 |
駐車場 |
無 |
| バイク置き場 |
- |
駐輪場 |
- |
| 建物名・部屋番号 |
|
ペット |
-
|
| リフォーム履歴 |
- |
| リノベーション履歴 |
- |
| 備考 |
賃貸保証等:加入要(当社指定:初期費用は賃料等の50%、月次保証料は賃料等の1%。その他保証会社条件有)
管理形態/管理員の勤務形態:-/巡回
管理人巡回
セキュリティ面は、TVインターホン・オートロックなどを設置しているので安全面でも優れております。共用部にはゴミ出し24時間OK・宅配ボックスなどが揃っております。日中でなくても洗濯物を干せるため毎日忙しい人にもおすすめの浴室乾燥機があります。住まいを探すにあたって、中央区へお引っ越しを検討しているのであれば、クレディフォルムにお任せください。
セキュリティ面は、TVインターホン・オートロックなど充実しているので、防犯対策もばっちりです。浴室乾燥機を設置しているので、すぐに湿気を除去できてカビや雑菌などの発生が抑えられます。バルコニーがある物件です。次の住まいは、日比谷線八丁堀近辺を候補地にいかがでしょうか。気になる方は03-6228-5878までご連絡下さい。是非クレディフォルムにお任せ下さい。
|
| エネルギー消費性能 |
- |
| 断熱性能 |
- |
| 目安光熱費 |
- |
| バス・トイレ |
バス・トイレ別、浴室乾燥機、トイレ |
| キッチン |
システムキッチン |
| セキュリティー |
モニター付オートロック、オートロック、モニター付インターホン、防犯カメラ |
| 収納 |
収納スペース、シューズボックス |
| 設備・サービス |
全居室エアコン、室内洗濯機置場、洗濯機置場、フローリング、都市ガス、エアコン |
| TV・通信 |
インターネット対応、BS端子 |
| その他 |
宅配BOX、バルコニー、エレベーター |
| 契約期間 |
2年 |
現況 |
空家 |
| 条件等 |
- |
入居可能時期 |
指定有り2026年3月31日 |
| 更新料 |
新賃料 1ヶ月 |
物件番号 |
1163029122 |
| 情報公開日 |
2026年3月7日 |
次回更新予定日 |
2026年3月21日 |
| ケータイ用バーコード |
- スマートフォンでこの物件を見る
- スマートフォンからもこの物件をご覧になれます。
|
※「-」と表示されている項目については、情報提供会社にご確認ください。
| 周辺施設 |
築地川公園 |
| 距離 |
1182m |
写真を見る |
ここから簡単にお問い合わせをすることができます。
(SSLでの暗号化での送信を希望されるお客さまは
こちら
よりお問い合わせください)
お問い合わせを行う前に
「個人情報の取り扱いについて」を必ずお読みください。
「個人情報の取り扱いについて」に同意いただいた場合は「上記にご同意の上 確認画面へ進む」のボタンをクリックしてください。
個人情報の取り扱いについて
皆さまが送付された個人情報はアットホーム(株)のサーバを経由し、お問い合わせ先の不動産会社にメールまたはFAXにて転送されるためアットホーム(株)にも保管されます。アットホーム(株)で保管された個人情報の取り扱いについては、【こちら】をご覧ください。
また、本画面でご記入いただいた個人情報は、お問い合わせ先の不動産会社でも保管します。 お問い合わせ先の不動産会社が保管する個人情報の取り扱いについては、不動産会社に直接お問い合わせください。
東京都知事免許(4)第90149号 |
|---|
- 交通:
- 東京メトロ銀座線/銀座駅 徒歩2分
- 東京都中央区銀座6丁目12-15 いちご銀座612ビル4F
- TEL:
- 03-6228-5878
- FAX:
- 03-3573-3444
- 所属団体:
- (公社)東京都宅地建物取引業協会会員(公社)首都圏不動産公正取引協議会加盟
取引態様:仲介  - 00611602
|
- スマートフォンで
この不動産会社を見る

|
- 提携サイト等より掲載されている物件情報につきましては、不動産会社詳細情報にリンクされていないものがあります。
- 物件に関するお問合せは、物件詳細ページの「情報提供会社」に表示されている不動産会社へ直接お願いいたします。
- 間取図は、現況を優先させていただきます。
- 映像は物件の一部を撮影したものです。物件の契約にあたっての最終判断はご自身の判断に基づいて行ってください。
- 仲介手数料について

アットホームは物件情報の適正化に努めております。
内容に誤りがある場合にはこちらへご連絡ください。