東京都東久留米市幸町5丁目(東久留米駅)の賃貸:物件詳細
交通 所在地 |
駅徒歩 |
賃料 管理費等 |
敷金/保証金 礼金 |
間取り 面積 |
物件種目 築年月 |
|
西武池袋線/東久留米
東京都東久留米市幸町5丁目
|
26分
|
18.5万円
なし
|
1ヶ月 / なし
1ヶ月
|
3LDK
76.59m²
|
賃貸一戸建て
2026年7月
|
ペット相談、駐車場2台分、角部屋、南向き、振分、二人入居可、事務所使用可、2面採光
|
|
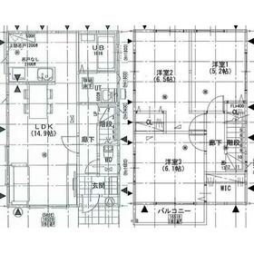
間取図
|
外観
|
その他の画像
|
| 交通 | 西武池袋線 東久留米駅 徒歩26分 |
|---|
| その他の交通 | 西武池袋線 清瀬駅 徒歩22分 西武池袋線 ひばりヶ丘駅 徒歩48分 |
| 所在地 |
東京都東久留米市幸町5丁目
|
| 物件種目 |
賃貸一戸建て |
| 賃料 |
18.5万円 |
管理費等 |
なし |
| 敷金 / 保証金 |
1ヶ月 / なし |
礼金 |
1ヶ月 |
| 敷引 |
- |
保証金償却 |
- |
| その他一時金 |
ホームマイスター24:16,500円 |
保険等 |
要 |
| 維持費等 |
- |
クレジットカード決済 |
初期費用可 |
| 間取り |
3LDK(洋室6.5洋室6.1洋室5.2) |
専有面積 |
76.59m² |
| 築年月 |
2026年7月
|
階建 / 階 |
2階建 |
| 建物構造 |
木造 |
総戸数 |
1戸 |
| 主要採光面 |
南 |
駐車場 |
有 無料 |
| バイク置き場 |
有 無料 |
駐輪場 |
有 無料 |
| 建物名・部屋番号 |
|
ペット |
相談 |
| アピールポイント |
☆当店の強みをお伝えします☆
①クレジットカードの初期費用分割払いを、喜んでお受けいたします(クレジットカード以外もOK)
②他社様がネットに掲載されている物件は、全てお調べし、【好条件】でご紹介いたします
他社様で「お申込み」された物件でも、【好条件】でご紹介できる場合がございます
③「審査が不安…」「保証人がいない…」「値段交渉をして欲しい…」などなど、
どのようなご条件でも、遠慮なくご相談いただけます
④ご検討されている「エリア」「沿線」が「広範囲」「複数」でも、一度で漏れなくお探しいただけます
ポータルサイトや他社サイトで気になるお部屋がございましたらお気軽にご相談ください
お客様のご来店を心よりお待ちしております |
| リフォーム履歴 |
- |
| リノベーション履歴 |
- |
| 備考 |
賃貸保証等:加入要(初回:賃料等の100%、継続保証料:1年毎に賃料等の15%)
管理形態/管理員の勤務形態:-/-
保険料 2年間 18000円/スマートキー1650円月額/短期解約違約金(1年未満/賃料の1ヶ月分)/退去時清掃費¥105000/ペット飼育時敷金1ヶ月分の積み増し/ホームマイスター2416500円/鍵交換代借主負担/駐輪場代借主負担(使用時)/バイク置場代借主負担(使用時)
|
| エネルギー消費性能 |
- |
| 断熱性能 |
- |
| 目安光熱費 |
- |
| バス・トイレ |
バス・トイレ別、浴室暖房、浴室乾燥機、オートバス、追焚機能、シャワー付洗面化粧台、洗面所独立、洗面台、シャワー、温水洗浄便座、トイレ |
| キッチン |
カウンターキッチン、システムキッチン、IHクッキングヒーター、3口以上コンロ、グリル |
| セキュリティー |
モニター付インターホン、ディンプルキー、シャッター雨戸 |
| 収納 |
全居室収納、ウォークインクローゼット |
| 設備・サービス |
室内洗濯機置場、給湯、全居室フローリング、フローリング、都市ガス、エアコン |
| TV・通信 |
インターネット対応、光ファイバー |
| その他 |
バイク置き場、バルコニー、駐輪場 |
| 契約期間 |
2年 |
現況 |
未完成 |
| 条件等 |
- |
入居可能時期 |
2026年7月中旬予定 |
| 更新料 |
- |
物件番号 |
1163062925 |
| 情報公開日 |
2026年3月18日 |
次回更新予定日 |
2026年4月8日 |
| ケータイ用バーコード |
- スマートフォンでこの物件を見る
- スマートフォンからもこの物件をご覧になれます。
|
※「-」と表示されている項目については、情報提供会社にご確認ください。
| 周辺施設 |
東久留米ショッピングセンタークルネ |
| 距離 |
651m |
写真を見る |
| 周辺施設 |
業務スーパー 東久留米店 |
| 距離 |
214m |
写真を見る |
| 周辺施設 |
セブン-イレブン 東久留米幸町4丁目店 |
| 距離 |
335m |
写真を見る |
| 周辺施設 |
ウエルシア東久留米SCクルネ店 |
| 距離 |
654m |
写真を見る |
| 周辺施設 |
カレーハウス CoCo壱番屋 東久留米幸町店 |
| 距離 |
335m |
写真を見る |
| 周辺施設 |
東久留米市立久留米中学校 |
| 距離 |
370m |
写真を見る |
| 周辺施設 |
東久留米市立小山小学校 |
| 距離 |
979m |
写真を見る |
| 周辺施設 |
東久留米市立はちまん保育園 |
| 距離 |
596m |
写真を見る |
ここから簡単にお問い合わせをすることができます。
(SSLでの暗号化での送信を希望されるお客さまは
こちら
よりお問い合わせください)
お問い合わせを行う前に
「個人情報の取り扱いについて」を必ずお読みください。
「個人情報の取り扱いについて」に同意いただいた場合は「上記にご同意の上 確認画面へ進む」のボタンをクリックしてください。
個人情報の取り扱いについて
皆さまが送付された個人情報はアットホーム(株)のサーバを経由し、お問い合わせ先の不動産会社にメールまたはFAXにて転送されるためアットホーム(株)にも保管されます。アットホーム(株)で保管された個人情報の取り扱いについては、【こちら】をご覧ください。
また、本画面でご記入いただいた個人情報は、お問い合わせ先の不動産会社でも保管します。 お問い合わせ先の不動産会社が保管する個人情報の取り扱いについては、不動産会社に直接お問い合わせください。
国土交通大臣免許(3)第8522号 |
|---|
- 交通:
- 西武池袋線/所沢駅 徒歩1分
- 埼玉県所沢市日吉町11-20 フジビル 6階
- TEL:
- 04-2903-2355
- FAX:
- 04-2903-2356
- 所属団体:
- (公社)全日本不動産協会会員(公社)首都圏不動産公正取引協議会加盟
取引態様:仲介  - 00785863
|
- スマートフォンで
この不動産会社を見る

|
- 提携サイト等より掲載されている物件情報につきましては、不動産会社詳細情報にリンクされていないものがあります。
- 物件に関するお問合せは、物件詳細ページの「情報提供会社」に表示されている不動産会社へ直接お願いいたします。
- 間取図は、現況を優先させていただきます。
- 映像は物件の一部を撮影したものです。物件の契約にあたっての最終判断はご自身の判断に基づいて行ってください。
- 仲介手数料について

アットホームは物件情報の適正化に努めております。
内容に誤りがある場合にはこちらへご連絡ください。