東京都世田谷区上馬3丁目(駒沢大学駅)の賃貸:物件詳細
交通 所在地 |
駅徒歩 |
賃料 管理費等 |
敷金/保証金 礼金 |
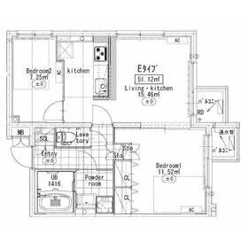
間取り 面積 |
物件種目 築年月 |
|
東急田園都市線/駒沢大学
東京都世田谷区上馬3丁目
|
4分
|
26.4万円
15,000円
|
1ヶ月 / なし
なし
|
2LDK
51.12m²
|
賃貸マンション
2023年9月(築2年4ヶ月)
|
角部屋、高齢者相談、2面採光、24時間換気システム、保証人不要
|
|
間取図
|
外観
|
<
その他の画像
>
|
| 交通 | 東急田園都市線 駒沢大学駅 徒歩4分 |
|---|
| その他の交通 | 東急世田谷線 西太子堂駅 徒歩21分 東急田園都市線 三軒茶屋駅 徒歩19分 |
| 所在地 |
東京都世田谷区上馬3丁目
|
| 物件種目 |
賃貸マンション |
| 賃料 |
26.4万円 |
管理費等 |
15,000円 |
| 敷金 / 保証金 |
1ヶ月 / なし |
礼金 |
なし |
| 敷引 |
- |
保証金償却 |
- |
| その他一時金 |
安心入居サポート(税込・必須):22,000円、鍵交換費用(税込・必須):27,500円 |
保険等 |
要 2年 23,000円 |
| 維持費等 |
- |
| 間取り |
2LDK |
専有面積 |
51.12m² |
| 築年月 |
2023年9月(築2年4ヶ月)
|
階建 / 階 |
地上4階地下1階建 / 3階 |
| 建物構造 |
RC |
総戸数 |
- |
| 主要採光面 |
東 |
駐車場 |
- |
| バイク置き場 |
- |
駐輪場 |
有 |
| 建物名・部屋番号 |
プライマル駒沢大学 301 |
ペット |
-
|
| リフォーム履歴 |
- |
| リノベーション履歴 |
- |
| 備考 |
賃貸保証等:加入要(初回保証委託料:50% 月額保証料:1,000円)
管理形態/管理員の勤務形態:-/-
ユニクロ駒沢自由通り店まで徒歩4分です。室内設備はBS・追い焚き・エアコンなどが揃っており、とても充実しています。耐久性の高いシステムキッチンが備え付けられております。当社スタッフが地域の賃貸情報をご提供いたします。お客様のこだわりやご要望などございましたら、お気軽に当社へお問い合わせ下さい。
世田谷区エリアでの住まいなら、住み心地も快適な「プライマル駒沢大学」はいかがでしょうか。オオゼキ 野沢店まで346mです。エアコン付きなので、室内の温度調整が簡単です。お湯を温め直せる追い焚き機能付きです。当社スタッフが地域の賃貸情報をご提供いたします。お客様のこだわりやご要望などございましたら、お気軽に当社へお問い合わせ下さい。
|
| エネルギー消費性能 |
- |
| 断熱性能 |
- |
| 目安光熱費 |
- |
| バス・トイレ |
バス・トイレ別、浴室乾燥機、追焚機能、洗面所独立、洗面所、洗面台、シャワー、温水洗浄便座、トイレ |
| キッチン |
システムキッチン、3口以上コンロ、ガスコンロ可 |
| セキュリティー |
オートロック、ディンプルキー、防犯カメラ |
| 収納 |
収納スペース、クローゼット、シューズボックス |
| 設備・サービス |
室内洗濯機置場、洗濯機置場、給湯、エアコン、人感センサー付照明 |
| TV・通信 |
インターネット使用料無料、CS、BS端子 |
| その他 |
宅配BOX、駐輪場 |
| 契約期間 |
2年 |
現況 |
居住中 |
| 条件等 |
- |
入居可能時期 |
2025年12月31日予定 |
| 更新料 |
新賃料 1ヶ月 |
物件番号 |
1163167316 |
| 情報公開日 |
2025年12月7日 |
次回更新予定日 |
2025年12月21日 |
| ケータイ用バーコード |
- スマートフォンでこの物件を見る
- スマートフォンからもこの物件をご覧になれます。
|
※「-」と表示されている項目については、情報提供会社にご確認ください。
| 周辺施設 |
オオゼキ 野沢店 |
| 距離 |
346m |
写真を見る |
| 周辺施設 |
ユニクロ駒沢自由通り店 |
| 距離 |
273m |
写真を見る |
ここから簡単にお問い合わせをすることができます。
(SSLでの暗号化での送信を希望されるお客さまは
こちら
よりお問い合わせください)
お問い合わせを行う前に
「個人情報の取り扱いについて」を必ずお読みください。
「個人情報の取り扱いについて」に同意いただいた場合は「上記にご同意の上 確認画面へ進む」のボタンをクリックしてください。
個人情報の取り扱いについて
皆さまが送付された個人情報はアットホーム(株)のサーバを経由し、お問い合わせ先の不動産会社にメールまたはFAXにて転送されるためアットホーム(株)にも保管されます。アットホーム(株)で保管された個人情報の取り扱いについては、【こちら】をご覧ください。
また、本画面でご記入いただいた個人情報は、お問い合わせ先の不動産会社でも保管します。 お問い合わせ先の不動産会社が保管する個人情報の取り扱いについては、不動産会社に直接お問い合わせください。
東京都知事免許(1)第106938号 |
|---|
- 交通:
- 東急田園都市線/三軒茶屋駅 徒歩1分
- 東京都世田谷区三軒茶屋1丁目37-8 ワコーレ三軒茶屋64ビル3A-5
- TEL:
- 03-6450-7277
- FAX:
- 03-6850-7600
- 所属団体:
- (公社)全日本不動産協会会員(公社)首都圏不動産公正取引協議会加盟
取引態様:仲介  - 00271188
|
- スマートフォンで
この不動産会社を見る

|
- 提携サイト等より掲載されている物件情報につきましては、不動産会社詳細情報にリンクされていないものがあります。
- 物件に関するお問合せは、物件詳細ページの「情報提供会社」に表示されている不動産会社へ直接お願いいたします。
- 間取図は、現況を優先させていただきます。
- 映像は物件の一部を撮影したものです。物件の契約にあたっての最終判断はご自身の判断に基づいて行ってください。
- 仲介手数料について

アットホームは物件情報の適正化に努めております。
内容に誤りがある場合にはこちらへご連絡ください。